← Adur & Worthing Councils

Status

Registered House extension
Received
05 Jan 2026
New homes
0

Full proposal

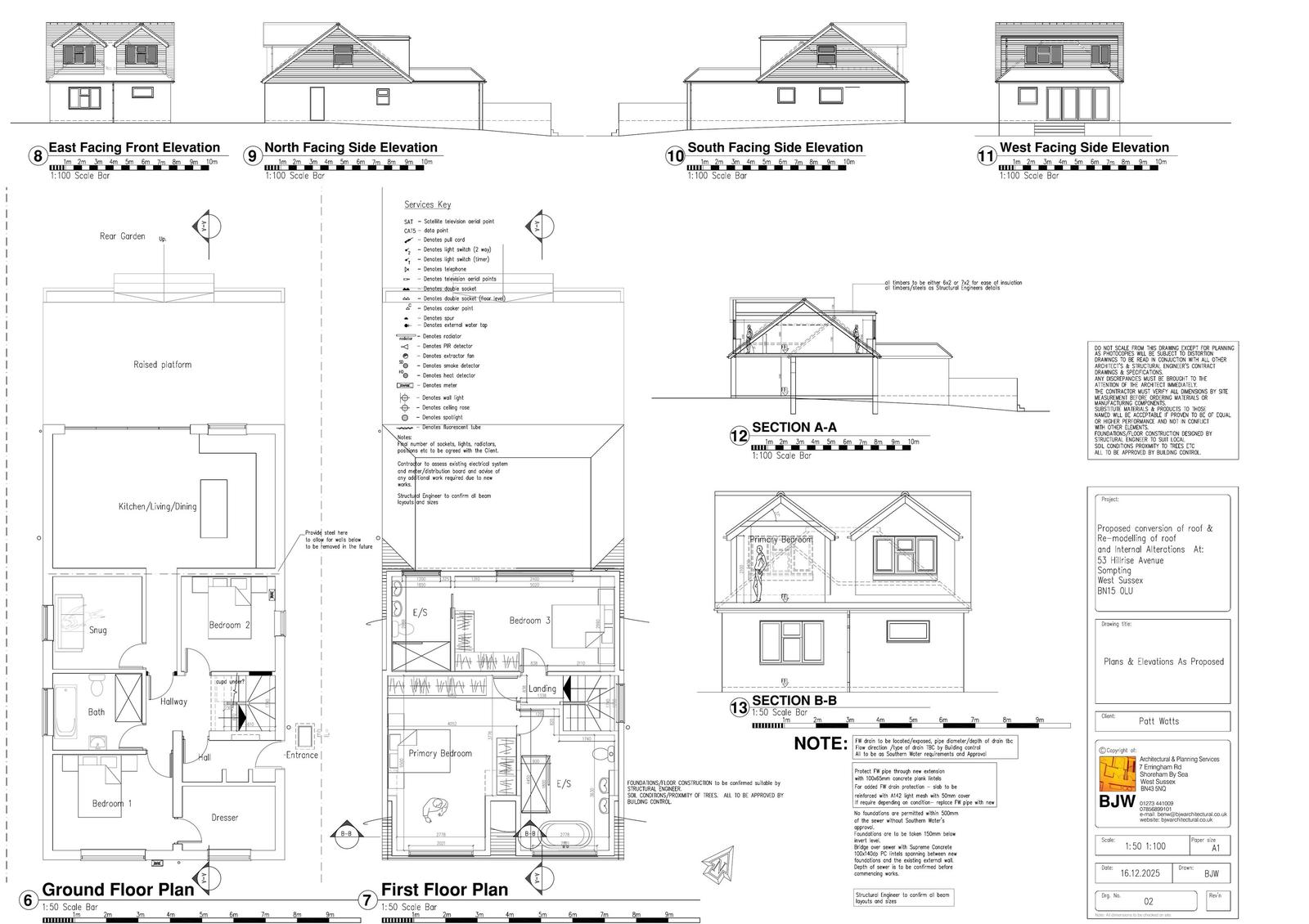
Proposed remodelling of roof to allow roof conversion, including raising of ridge height and hip to gable extensions, proposed 2no. front dormers with 1no.dormer to rear

Documents

004
Site Location/Block Plan
Archived · Original link
01
Latest plan
Archived · Original link
02
Latest plan
Archived · Original link
Application Form
Archived · Original link
Consultation Response
Archived · Original link
Consultation Response
Archived · Original link
Consultation Response
Archived · Original link

Have your say

Your comment matters. Councils must consider every representation that raises material planning considerations.

Write a comment