← Adur & Worthing Councils

Status

Registered New housing
Received
05 Jan 2026
New homes
2

Full proposal

Removal of roof and erection of additional storey to provide two residential units (Use Class C3)

Documents

28/01/2026
Consultation Response
Not yet archived · Original link
APPLICATION FORM
Application Form
Not yet archived · Original link
DESIGN & ACCESS STATEMENT
Design and Access Statement
Not yet archived · Original link
ENVIRONMENTAL HEALTH
Consultation Response
Not yet archived · Original link
EXISTING EAST & NORTH ELEVATIONS
Latest plan
Not yet archived · Original link
EXISTING FIRST FLOOR & ROOF PLAN
Latest plan
Not yet archived · Original link
EXISTING GROUND FLOOR PLAN
Latest plan
Not yet archived · Original link
Latest plan
Archived · Original link
EXISTING WEST & SOUTH ELEVATIONS
Latest plan
Not yet archived · Original link
Linzi Quinnell
Representation
Not yet archived · Original link
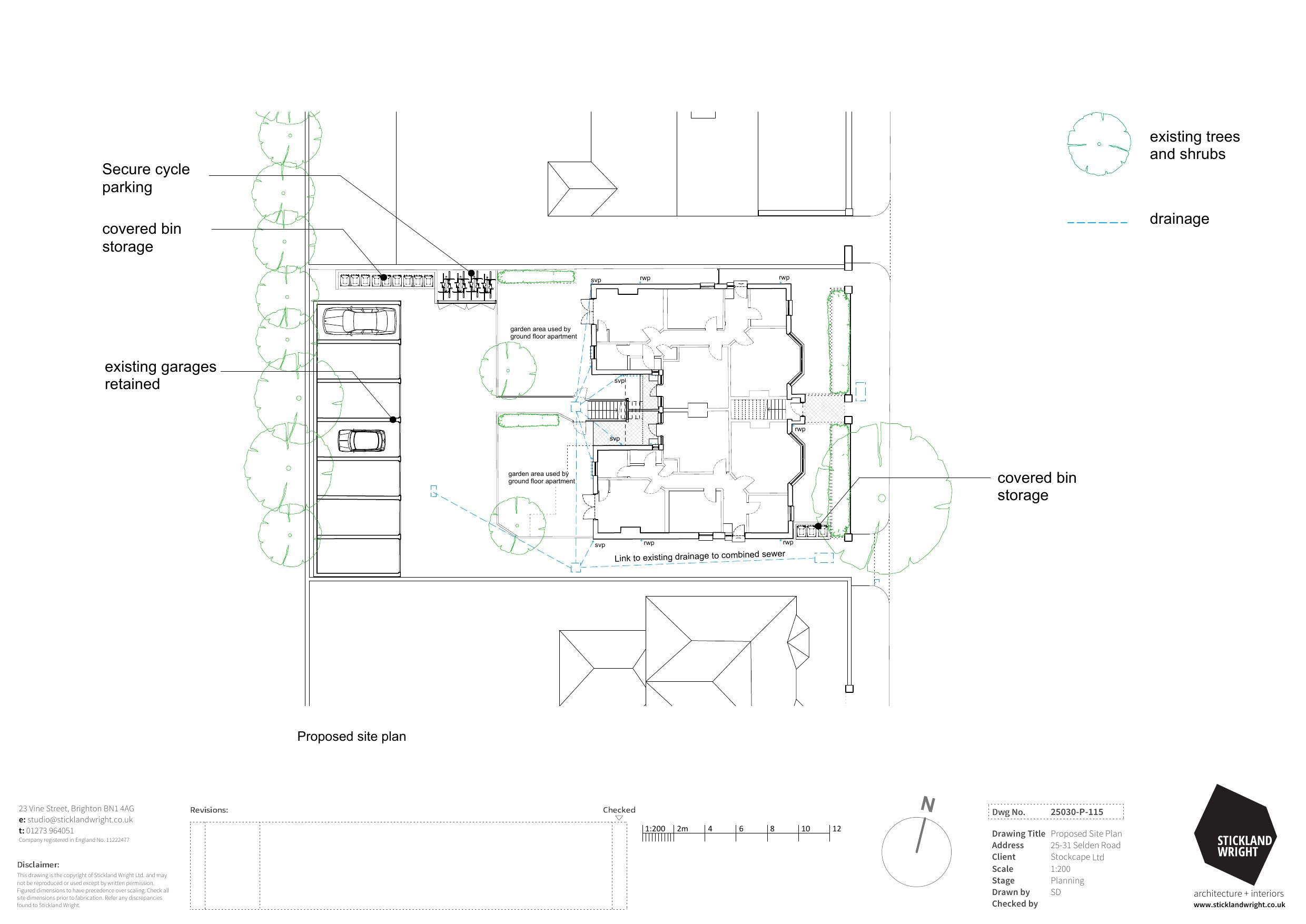
LOCATION & BLOCK PLAN
Site Location/Block Plan
Not yet archived · Original link
Map
Consultation Response
Not yet archived · Original link
Miss Emily McCunn
Representation
Not yet archived · Original link
Miss Linzi Quinnell
Representation
Not yet archived · Original link
Mr Dan Hawes
Representation
Not yet archived · Original link
Nicola Strickland
Representation
Not yet archived · Original link
PROPOSED EAST & NORTH ELEVATIONS
Latest plan
Not yet archived · Original link
PROPOSED FIRST FLOOR PLAN
Latest plan
Not yet archived · Original link
PROPOSED GROUND FLOOR PLAN
Latest plan
Not yet archived · Original link
PROPOSED SECOND FLOOR & ROOF PLANS
Latest plan
Not yet archived · Original link
PROPOSED SECTIONS
Latest plan
Not yet archived · Original link
Latest plan
Archived · Original link
PROPOSED WEST & SOUTH ELEVATIONS
Latest plan
Not yet archived · Original link
Response Letter
Consultation Response
Not yet archived · Original link
WSP response
Consultation Response
Not yet archived · Original link

Have your say

Your comment matters. Councils must consider every representation that raises material planning considerations.

Write a comment