← Adur & Worthing Councils

Status

Registered Change of use
Received
28 Jan 2026
New homes
0

Full proposal

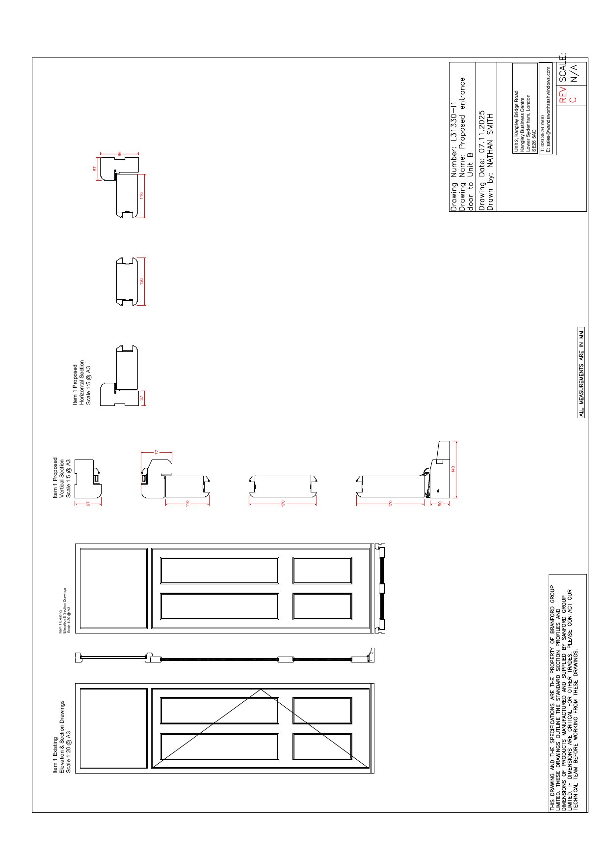
Shopfront alterations to include separate residential entrance; change of use of part of ground floor from retail and first floor residential unit to small house in multiple occupation (Use Class C4); replacement windows, new rear door and other associated alterations including refuse stores and cycle spaces (Nos 39, 39A and 39B)

Documents

Latest plan
Archived · Original link
Latest plan
Archived · Original link
Latest plan
Archived · Original link
Latest plan
Archived · Original link
CIL
CIL
Archived · Original link
Consultation Response
Archived · Original link
Supporting Statement
Archived · Original link
Latest plan
Archived · Original link
Consultation Response
Archived · Original link
Map
Consultation Response
Archived · Original link
Neighbours Notified
Archived · Original link
Supporting Statement
Archived · Original link
Latest plan
Archived · Original link
Application Form
Archived · Original link
Latest plan
Archived · Original link
Consultation Response
Archived · Original link

Have your say

Your comment matters. Councils must consider every representation that raises material planning considerations.

Write a comment