← Adur & Worthing Councils

Status

Registered House extension
Received
28 Jan 2026
New homes
0

Full proposal

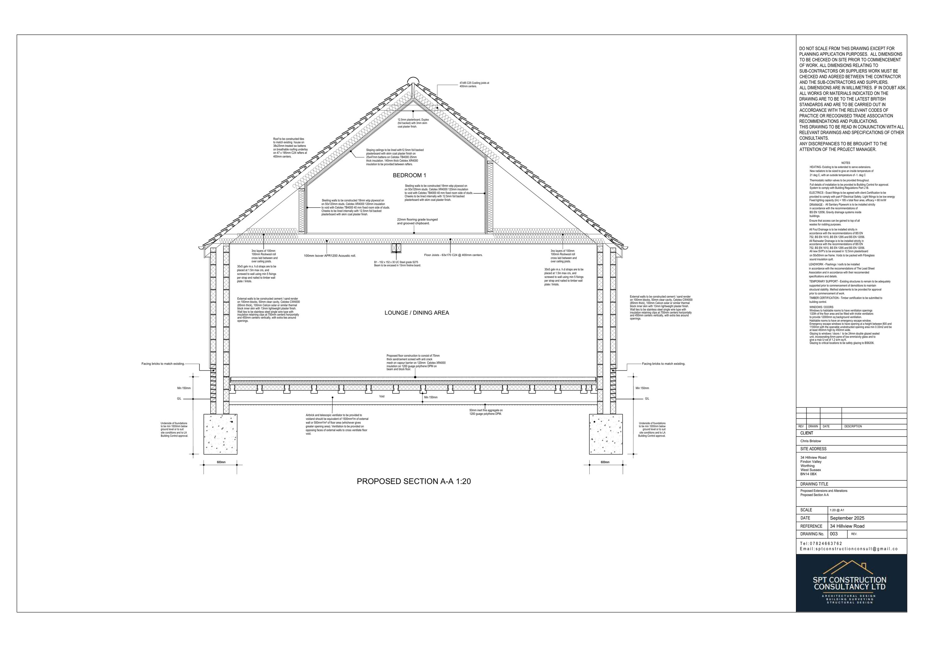
Proposed rooms in the roof consisting of side dormers and hip to gable to front (east) elevation. Single storey rear extension.

Have your say

Your comment matters. Councils must consider every representation that raises material planning considerations.

Write a comment