← Adur & Worthing Councils

Status

Registered House extension
Received
30 Jan 2026
New homes
0

Full proposal

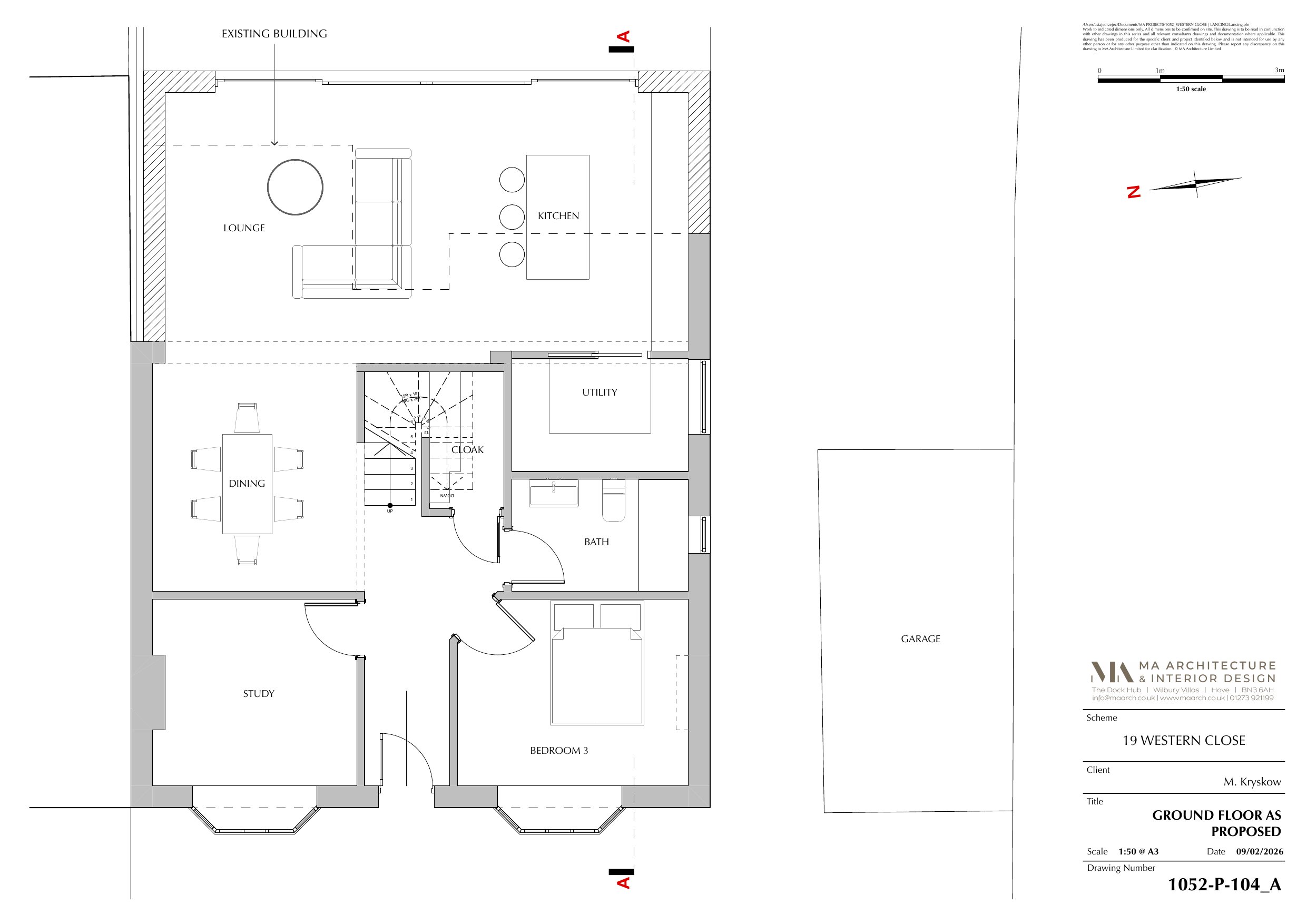
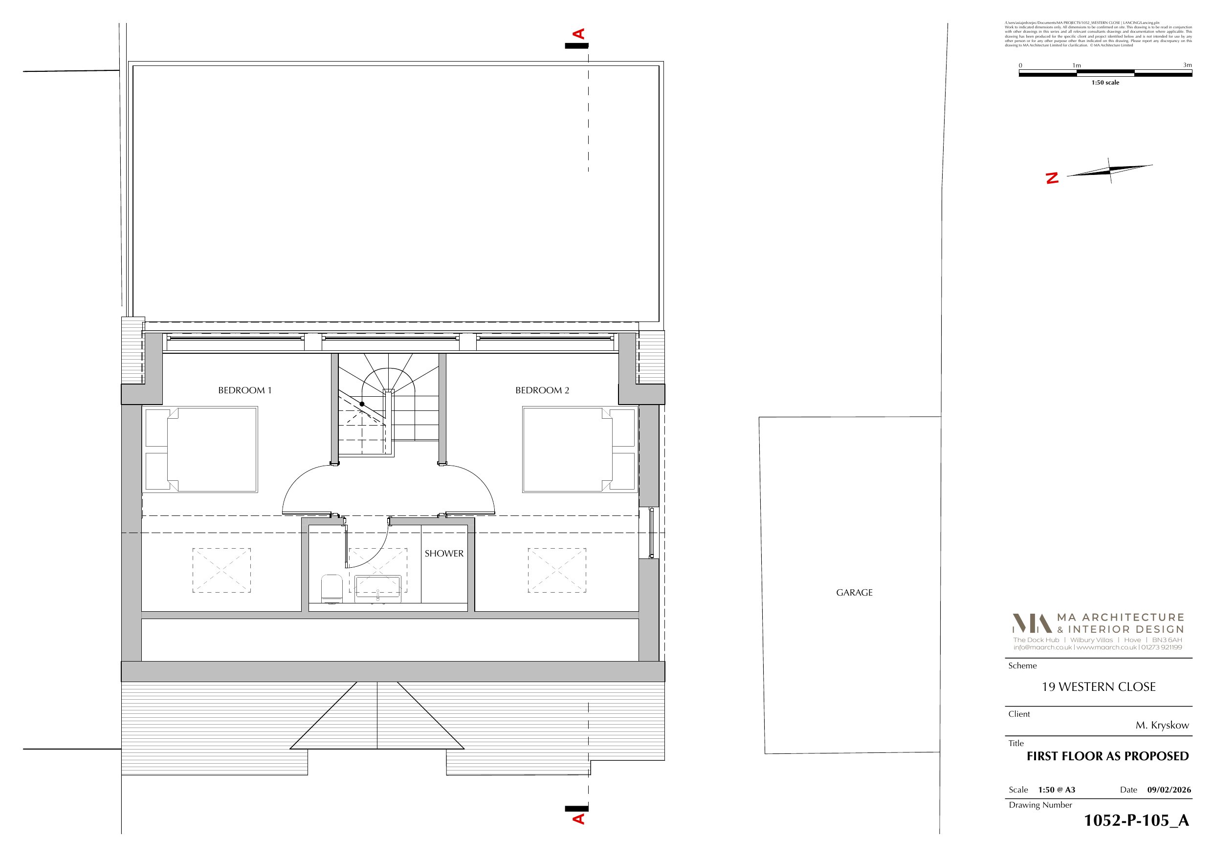
Proposed single storey rear extension, rooms in roof consisting of hip to gable-end, rear dormer and front roof lights.

Documents

Application Form
Archived · Original link
Design and Access Statement
Archived · Original link
Latest plan
Archived · Original link
Latest plan
Archived · Original link
Latest plan
Archived · Original link
Latest plan
Archived · Original link
General Document
Archived · Original link
Latest plan
Archived · Original link
Latest plan
Archived · Original link
Consultation Response
Archived · Original link
Site Location/Block Plan
Archived · Original link
Latest plan
Archived · Original link
Representation
Archived · Original link
Latest plan
Archived · Original link
Consultation Response
Archived · Original link

Have your say

Your comment matters. Councils must consider every representation that raises material planning considerations.

Write a comment