← Adur & Worthing Councils

Status

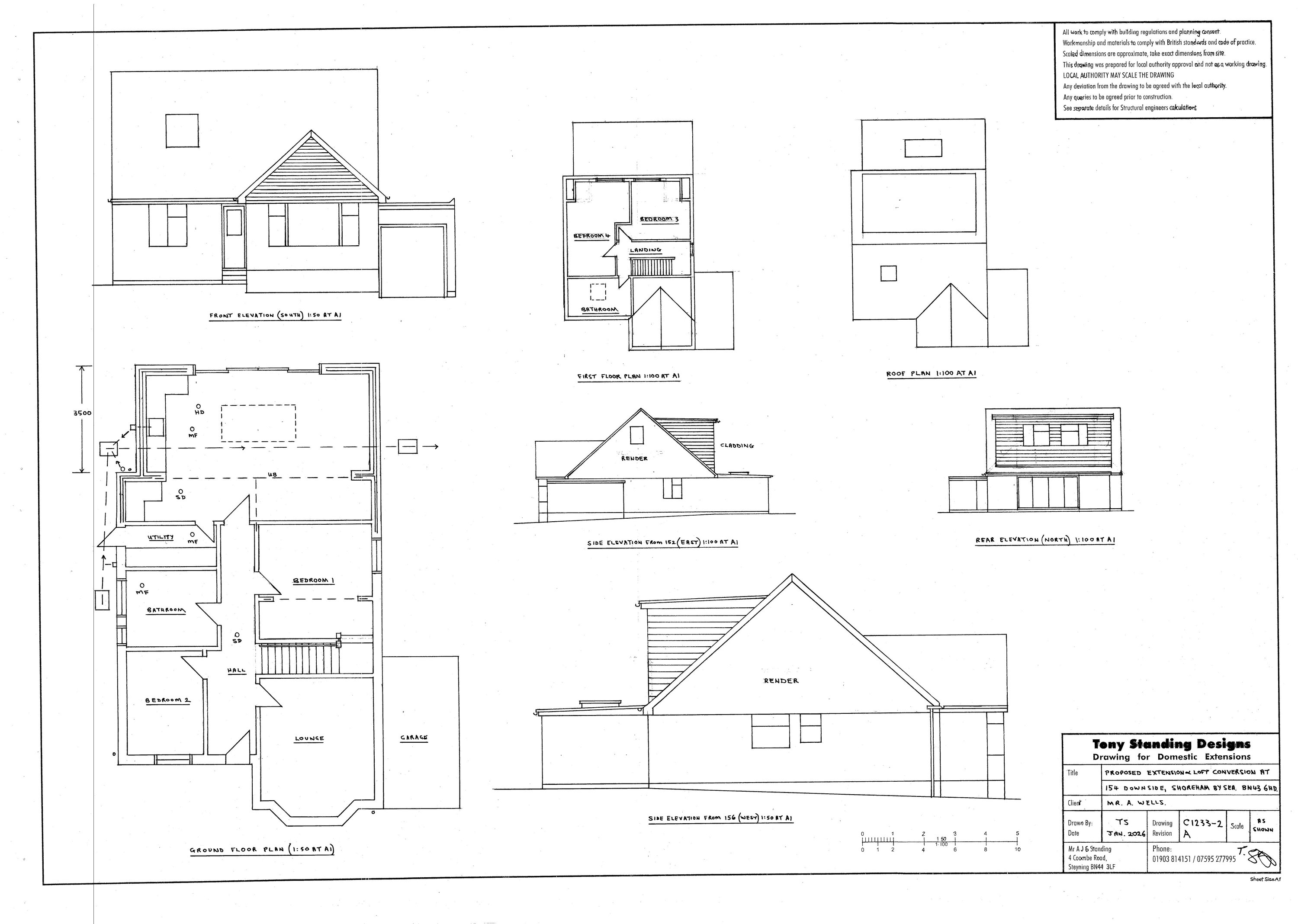
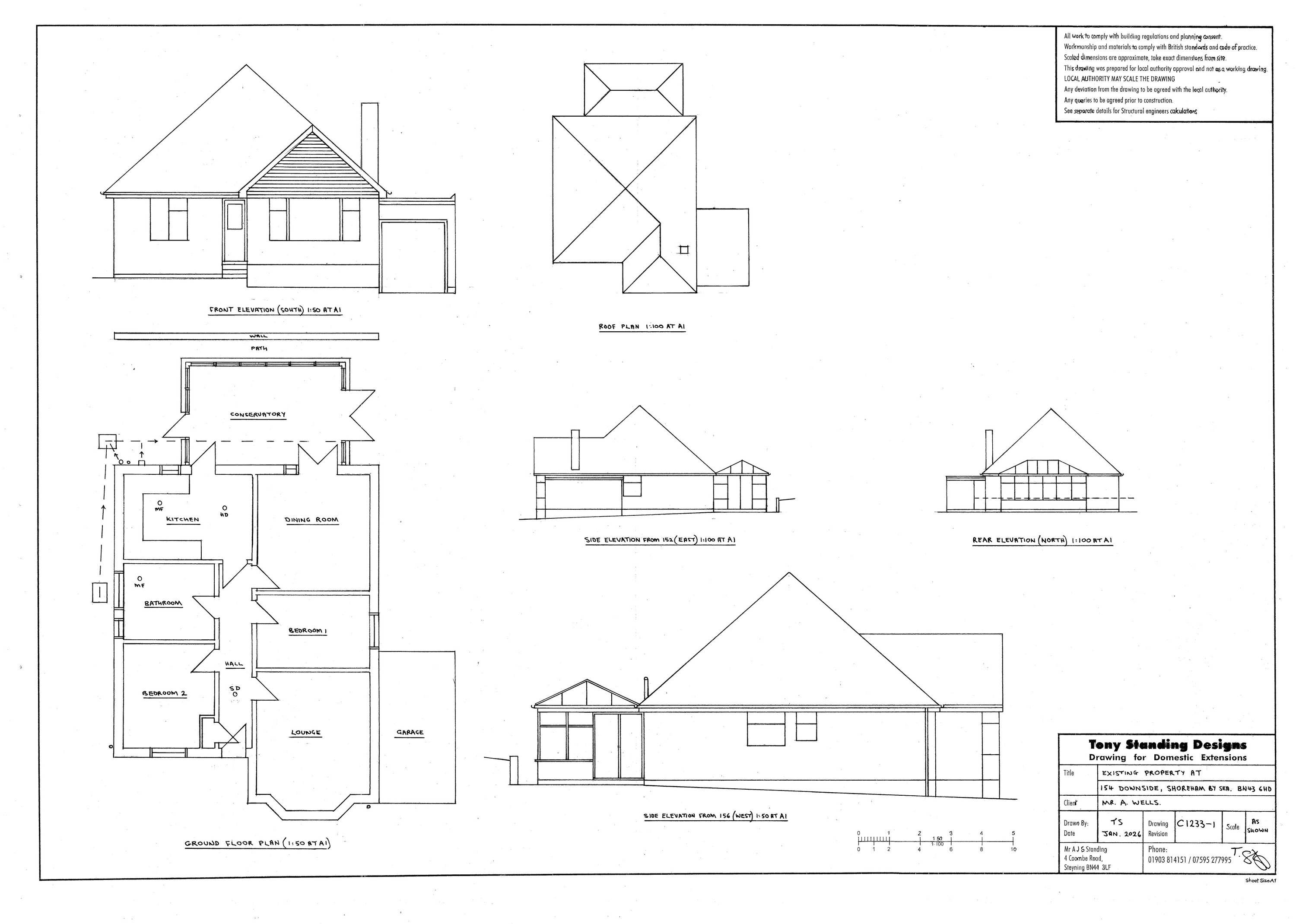
Registered House extension
Received
Last month
New homes
0

Full proposal

Proposed single storey extension and loft conversion including rear dormer, front rooflight and side window

Documents

Latest plan
Archived · Original link
Latest plan
Archived · Original link
Latest plan
Archived · Original link
Neighbours Notified
Archived · Original link

Have your say

Your comment matters. Councils must consider every representation that raises material planning considerations.

Write a comment