← Adur & Worthing Councils

Status

Registered House extension
Received
Last month
New homes
0

Full proposal

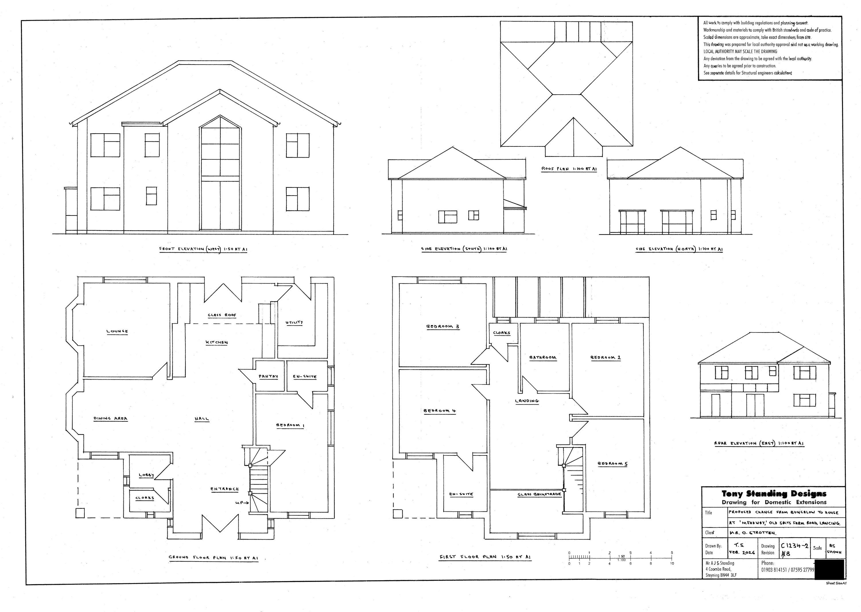
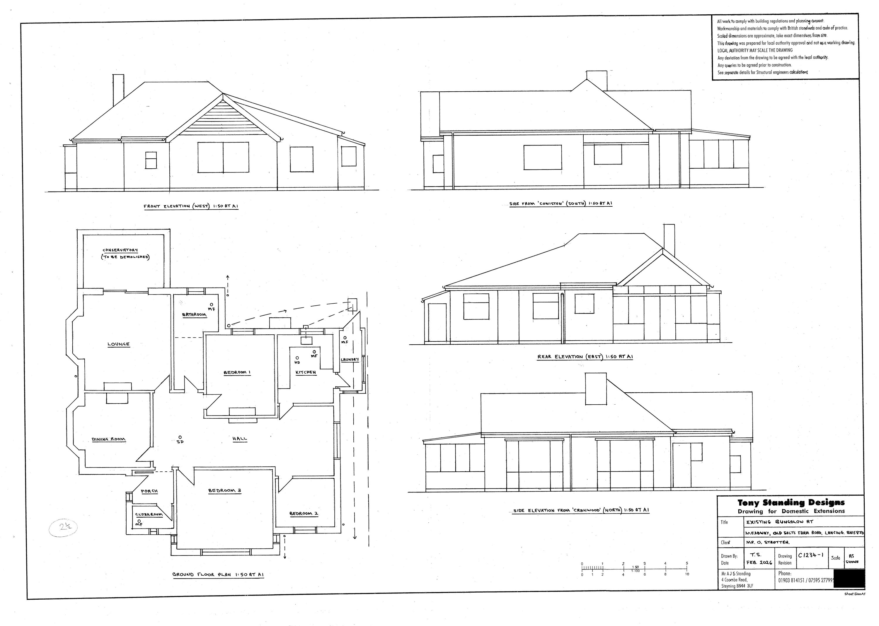
Conversion of bungalow to a two storey house, including extensions to front and rear and addition of first floor and new pitched roof

Documents

Application Form
Archived · Original link
Site Location/Block Plan
Archived · Original link
Latest plan
Archived · Original link
Site Location/Block Plan
Archived · Original link
Neighbours Notified
Archived · Original link

Have your say

Your comment matters. Councils must consider every representation that raises material planning considerations.

Write a comment