← Adur & Worthing Councils

Status

Registered House extension
Received
Last month
New homes
0

Full proposal

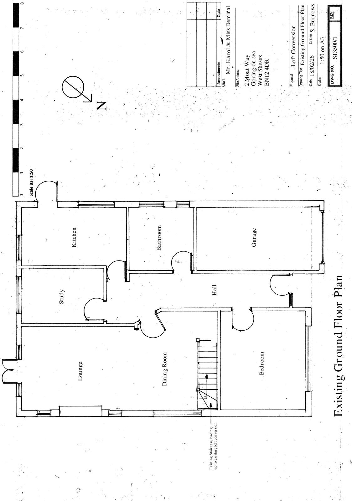
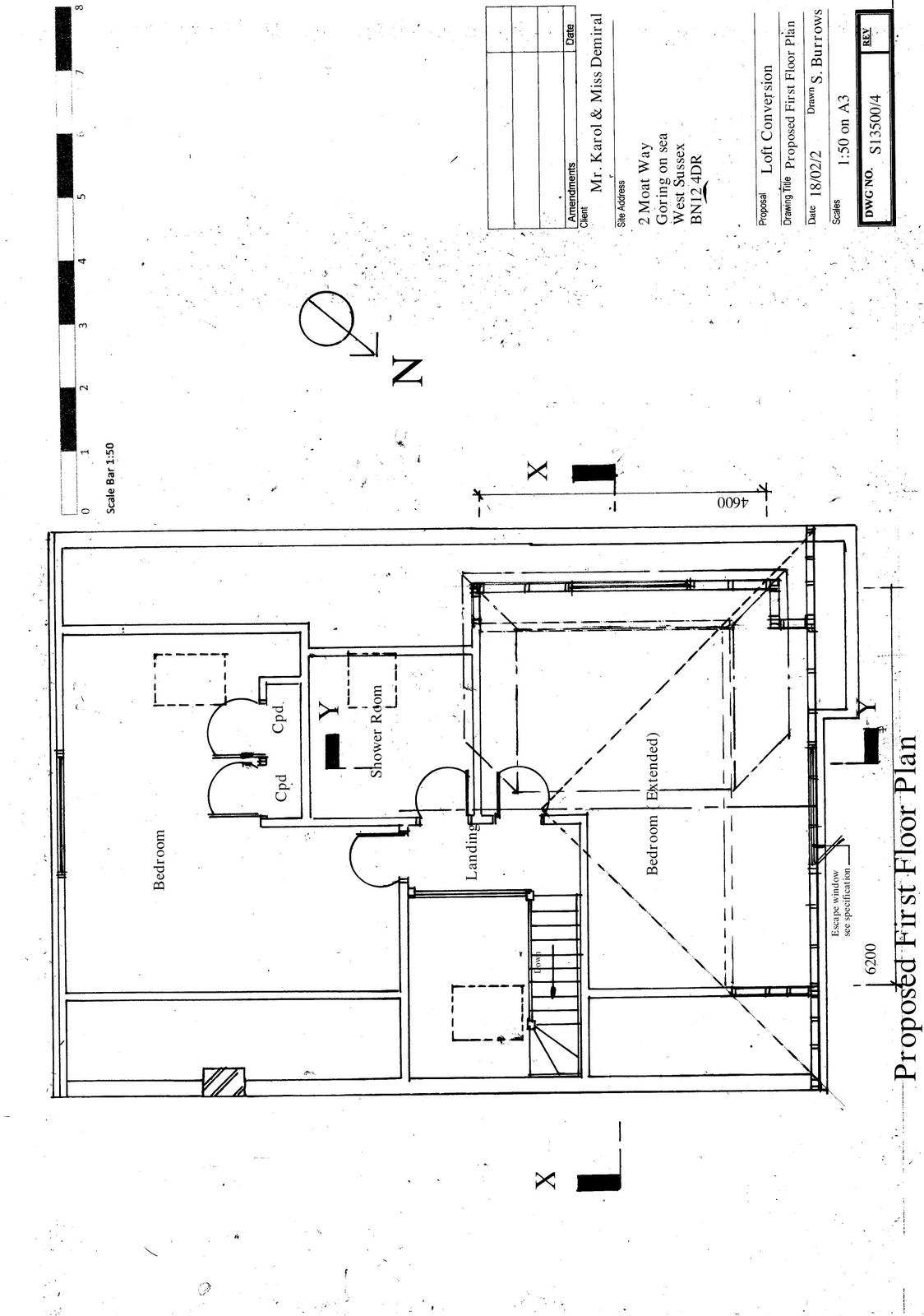
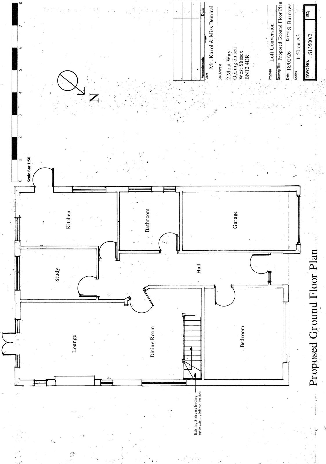
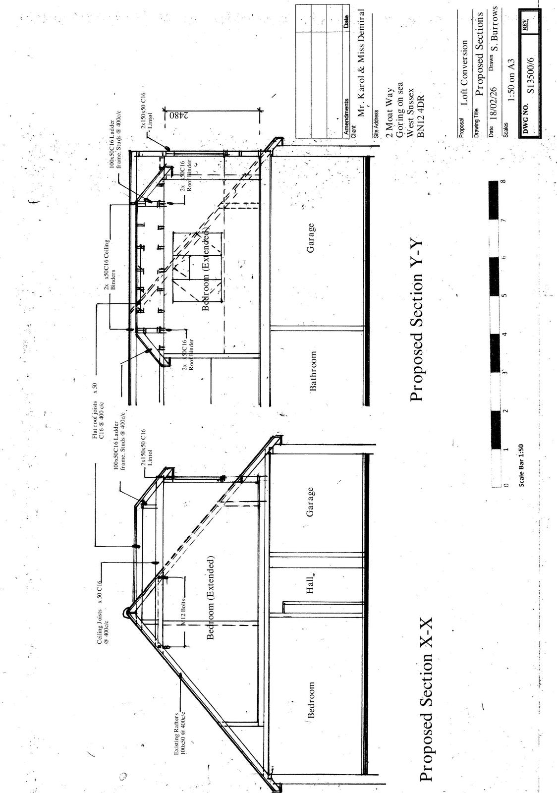
Front hip to gable roof extension with dormer to West side roofslope

Documents

Site Location/Block Plan
Archived · Original link
Latest plan
Archived · Original link
Latest plan
Archived · Original link
Latest plan
Archived · Original link
Site Location/Block Plan
Archived · Original link
Latest plan
Archived · Original link
Latest plan
Archived · Original link
Latest plan
Archived · Original link
Application Form
Archived · Original link

Have your say

Your comment matters. Councils must consider every representation that raises material planning considerations.

Write a comment