← Adur & Worthing Councils

Status

Registered New housing
Received
28 days ago
New homes
1

Full proposal

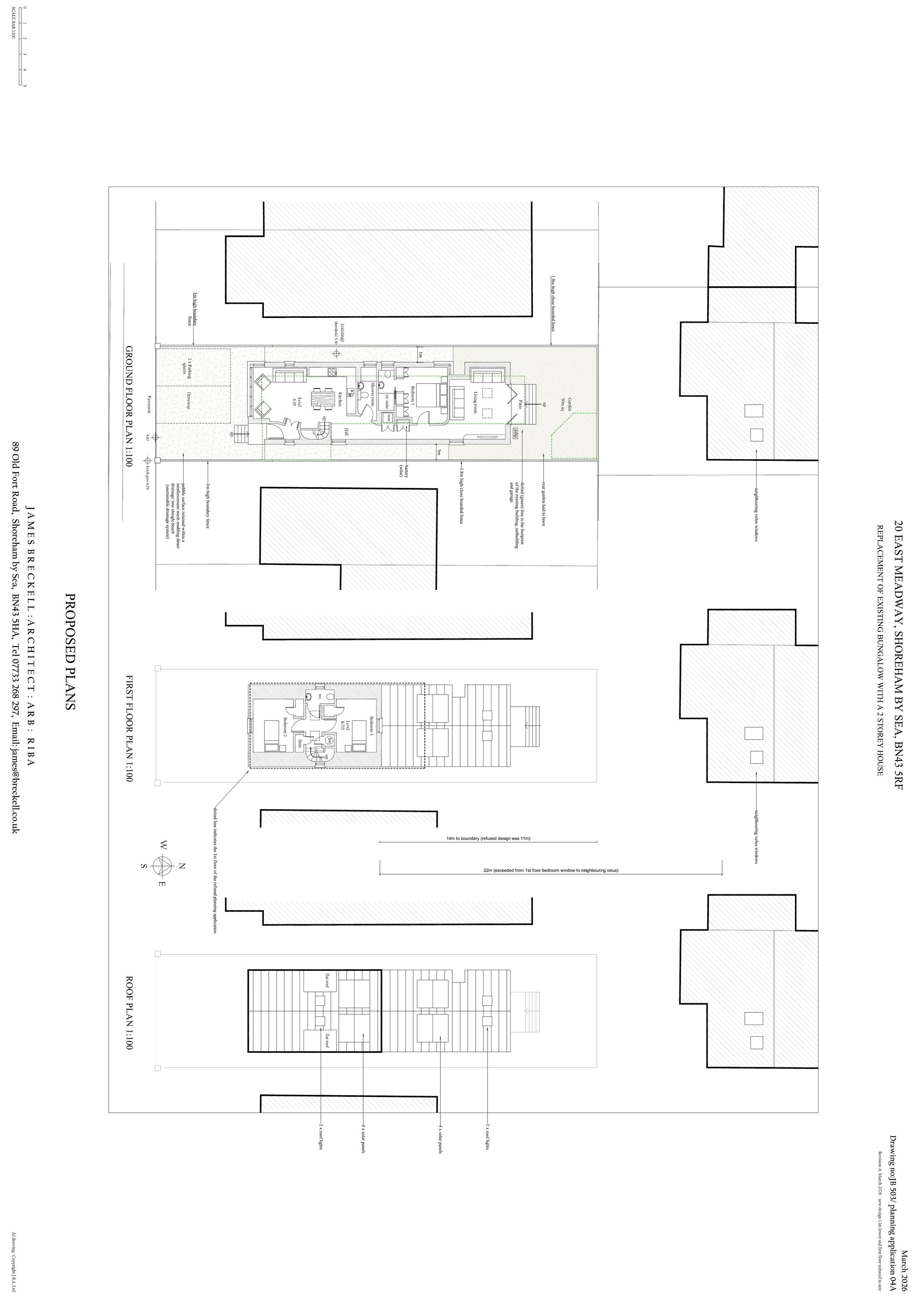
Replacement of the existing bungalow with a 2 storey house

Documents

Supporting Statement
Archived · Original link
Site Location/Block Plan
Archived · Original link
Supporting Statement
Archived · Original link
Consultation Response
Archived · Original link
Latest plan
Archived · Original link
Supporting Statement
Archived · Original link
Site Location/Block Plan
Archived · Original link
Neighbours Notified
Archived · Original link
Latest plan
Archived · Original link
Latest plan
Archived · Original link
Application Form
Archived · Original link
Consultation Response
Archived · Original link

Have your say

Your comment matters. Councils must consider every representation that raises material planning considerations.

Write a comment