← Adur & Worthing Councils

Status

Registered Change of use
Received
Last month
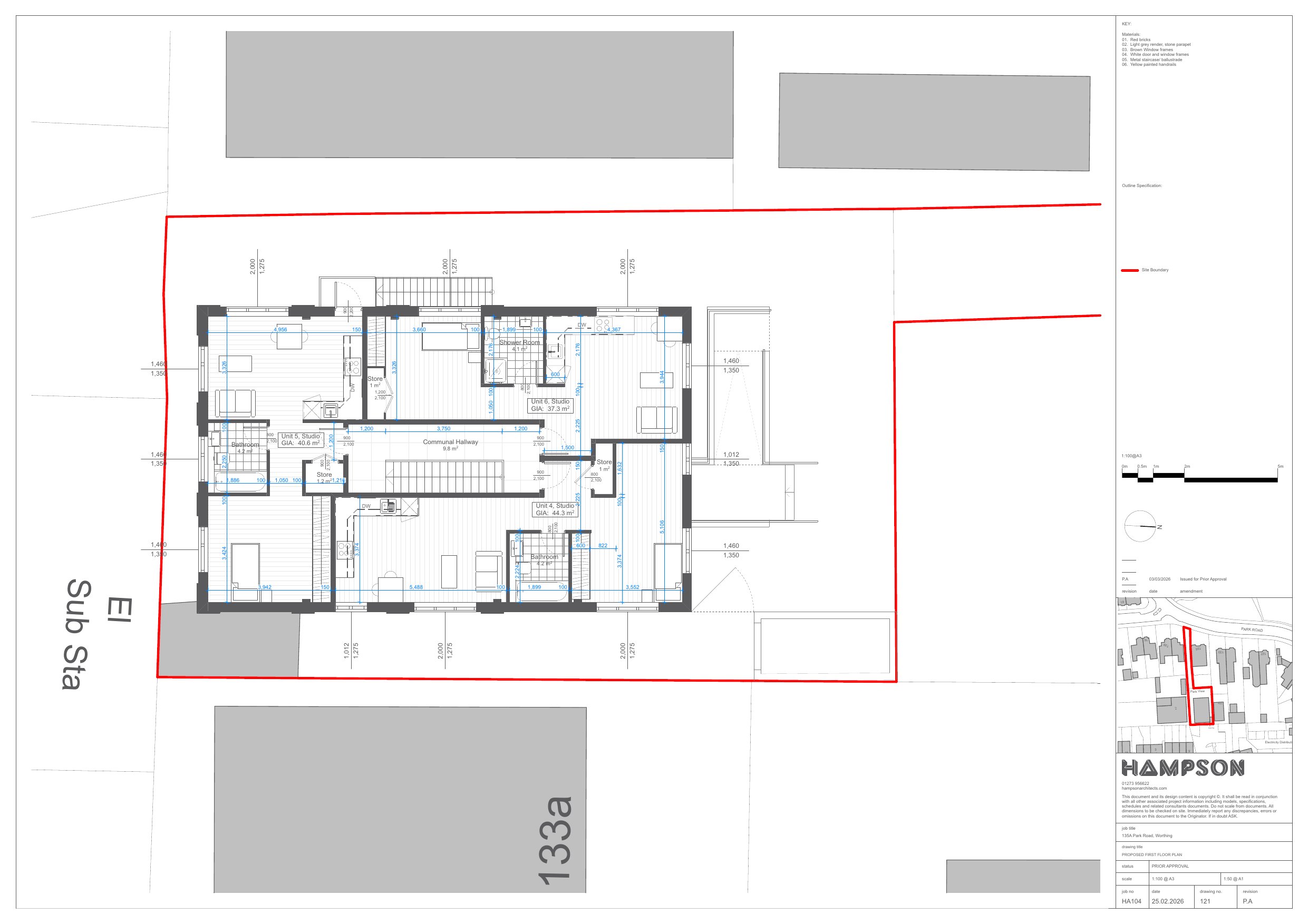
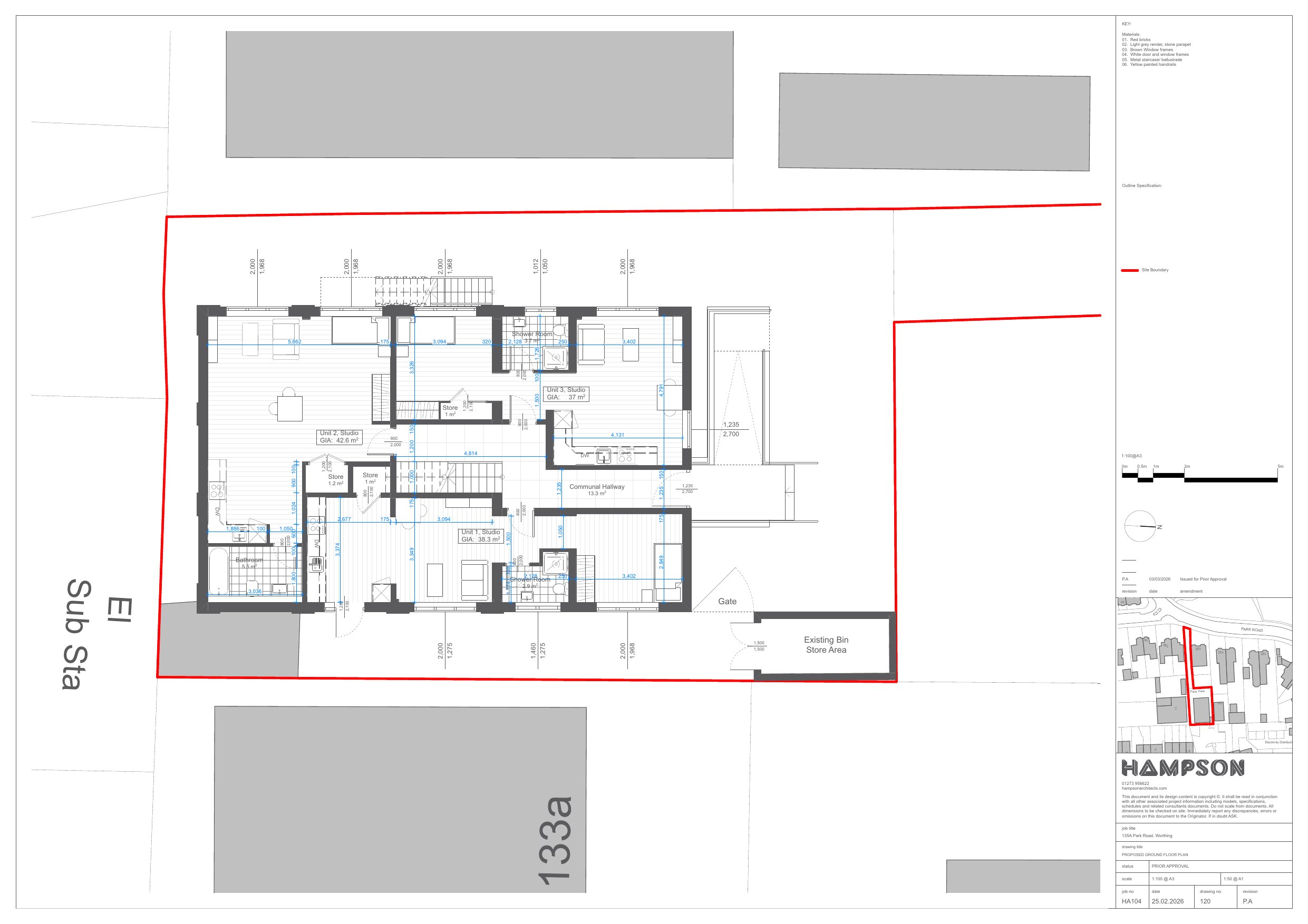
New homes
6

Full proposal

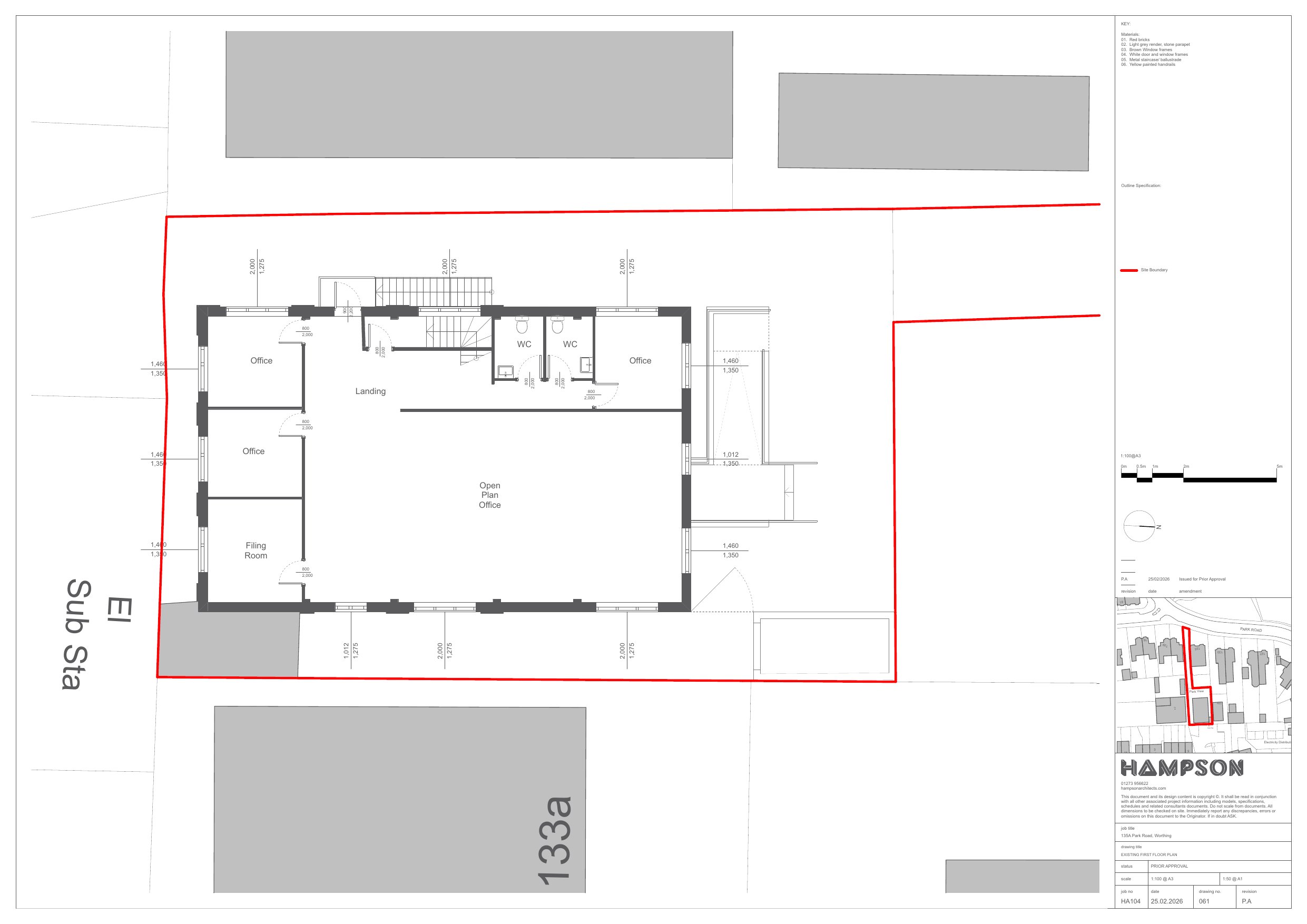
Application for prior approval for proposed change of use from commercial (Use Class E) to six self-contained residential units (Use Class C3)

Documents

Application Form
Archived · Original link
Latest plan
Archived · Original link
Latest plan
Archived · Original link
Latest plan
Archived · Original link
Latest plan
Archived · Original link
Latest plan
Archived · Original link
Latest plan
Archived · Original link
Site Location/Block Plan
Archived · Original link
Latest plan
Archived · Original link
Latest plan
Archived · Original link
Neighbours Notified
Archived · Original link
General Document
Archived · Original link
Latest plan
Archived · Original link
Latest plan
Archived · Original link
Latest plan
Archived · Original link
Latest plan
Archived · Original link
Latest plan
Archived · Original link
Latest plan
Archived · Original link
Site Location/Block Plan
Archived · Original link
Latest plan
Archived · Original link
Latest plan
Archived · Original link
Site Location/Block Plan
Archived · Original link
Consultation Response
Archived · Original link
Consultation Response
Archived · Original link

Have your say

Your comment matters. Councils must consider every representation that raises material planning considerations.

Write a comment