← Adur & Worthing Councils

Status

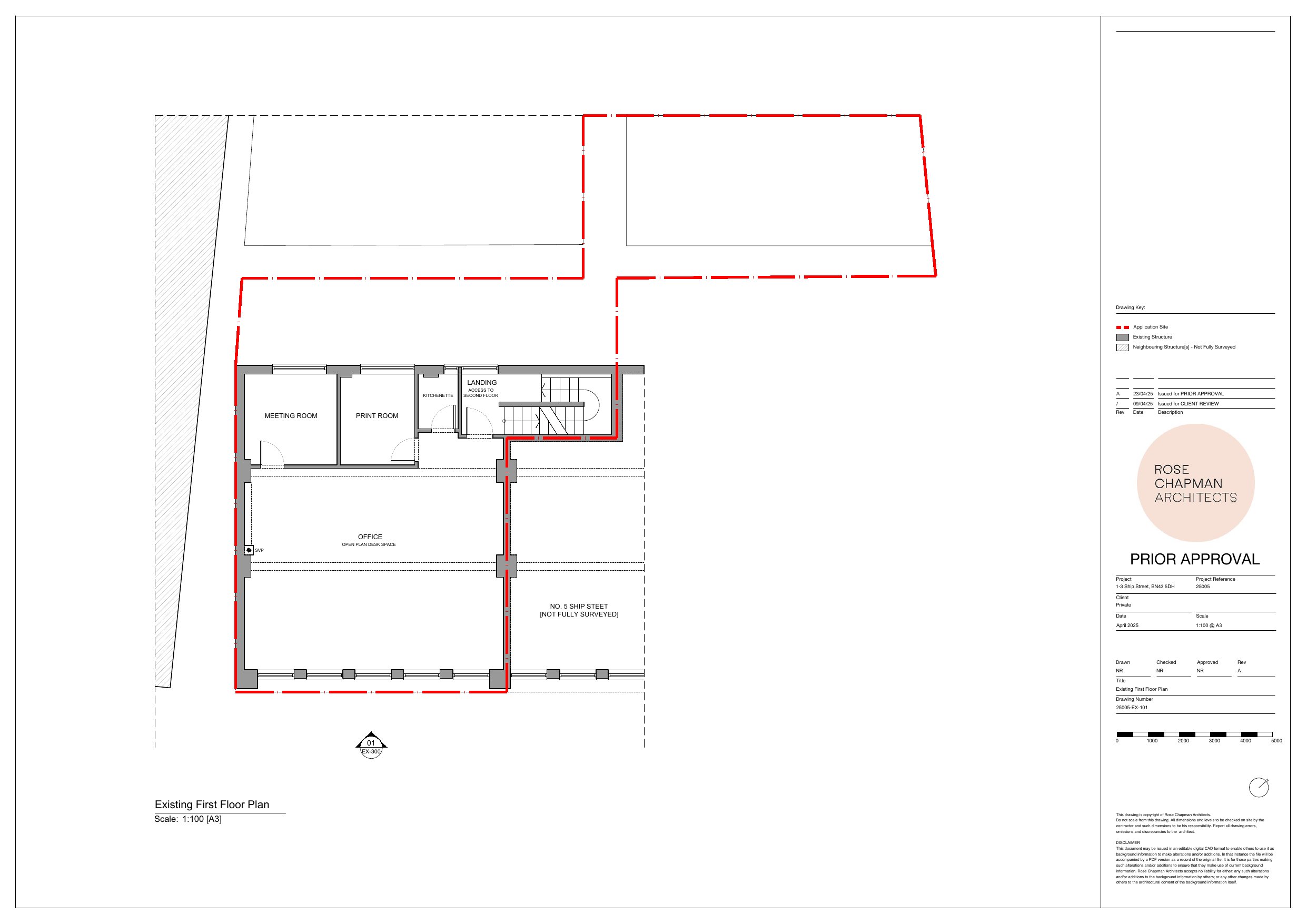
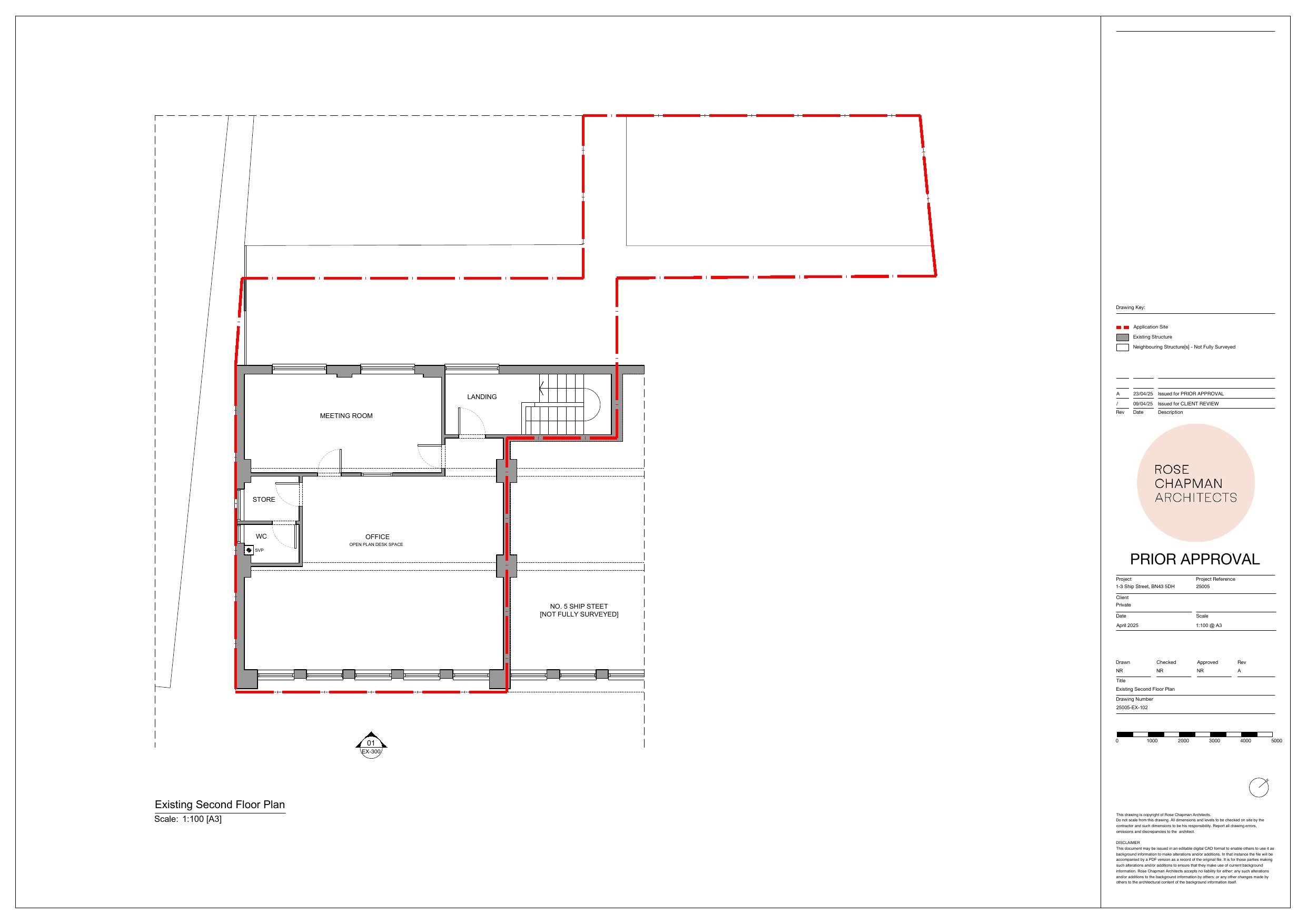
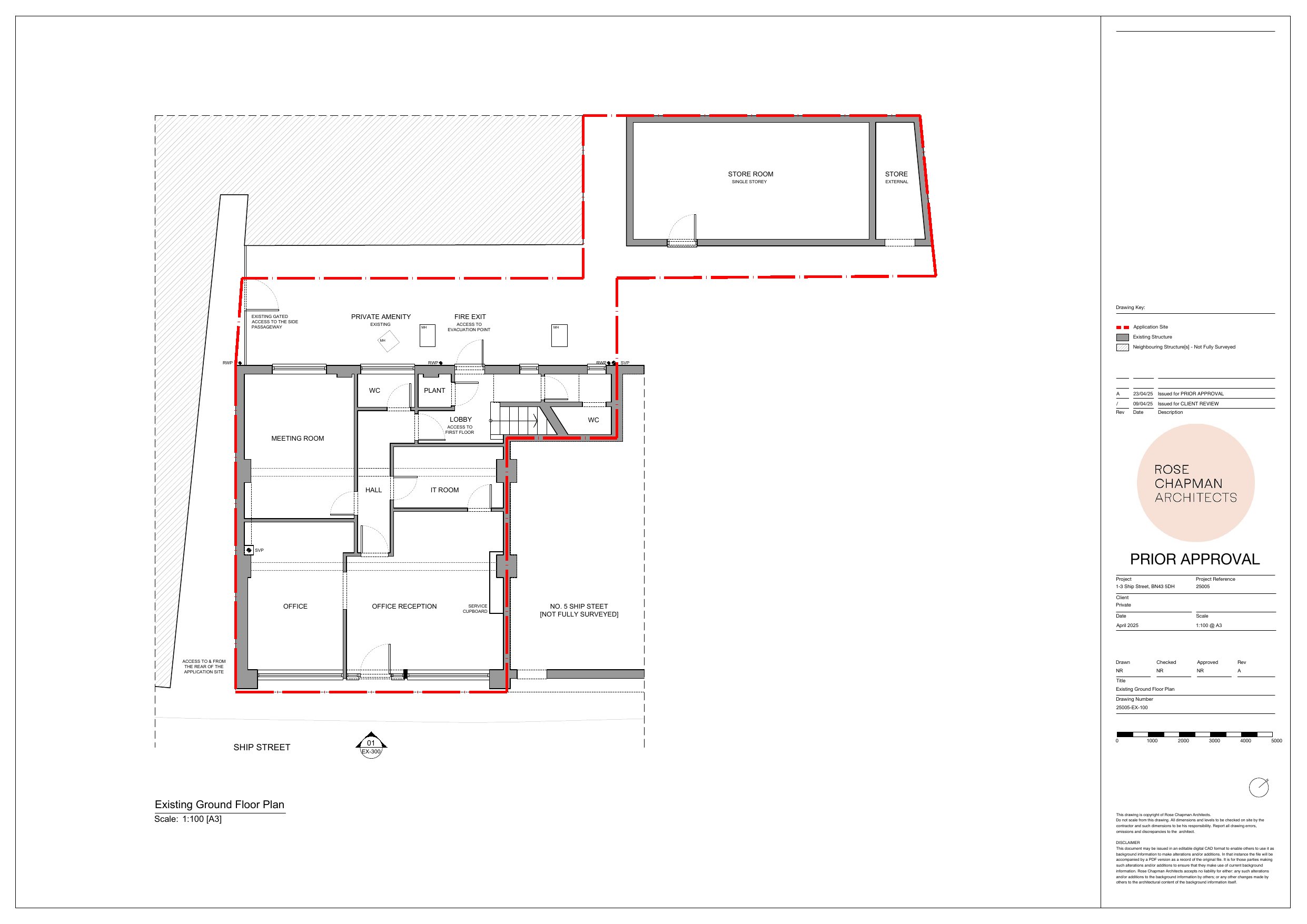
Unknown Change of use
Received
30 Apr 2025
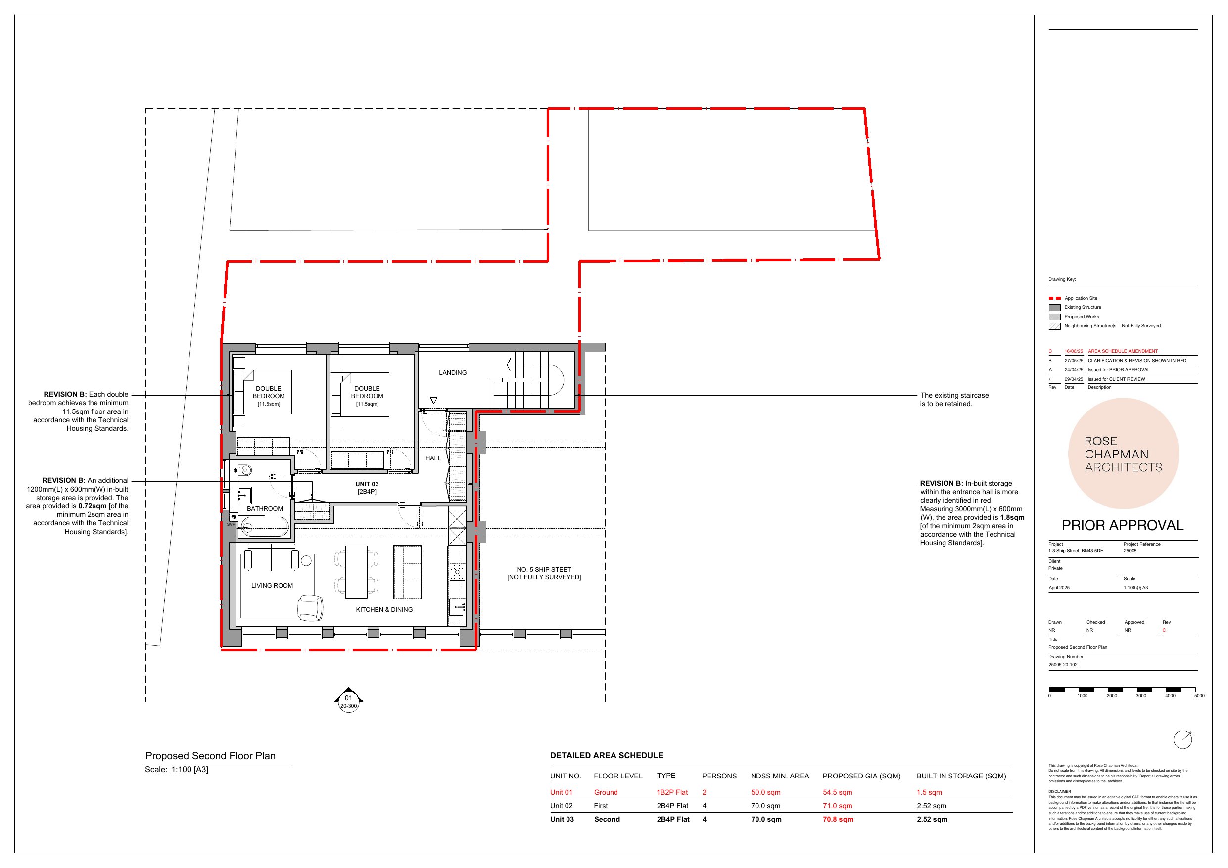
New homes
3

Full proposal

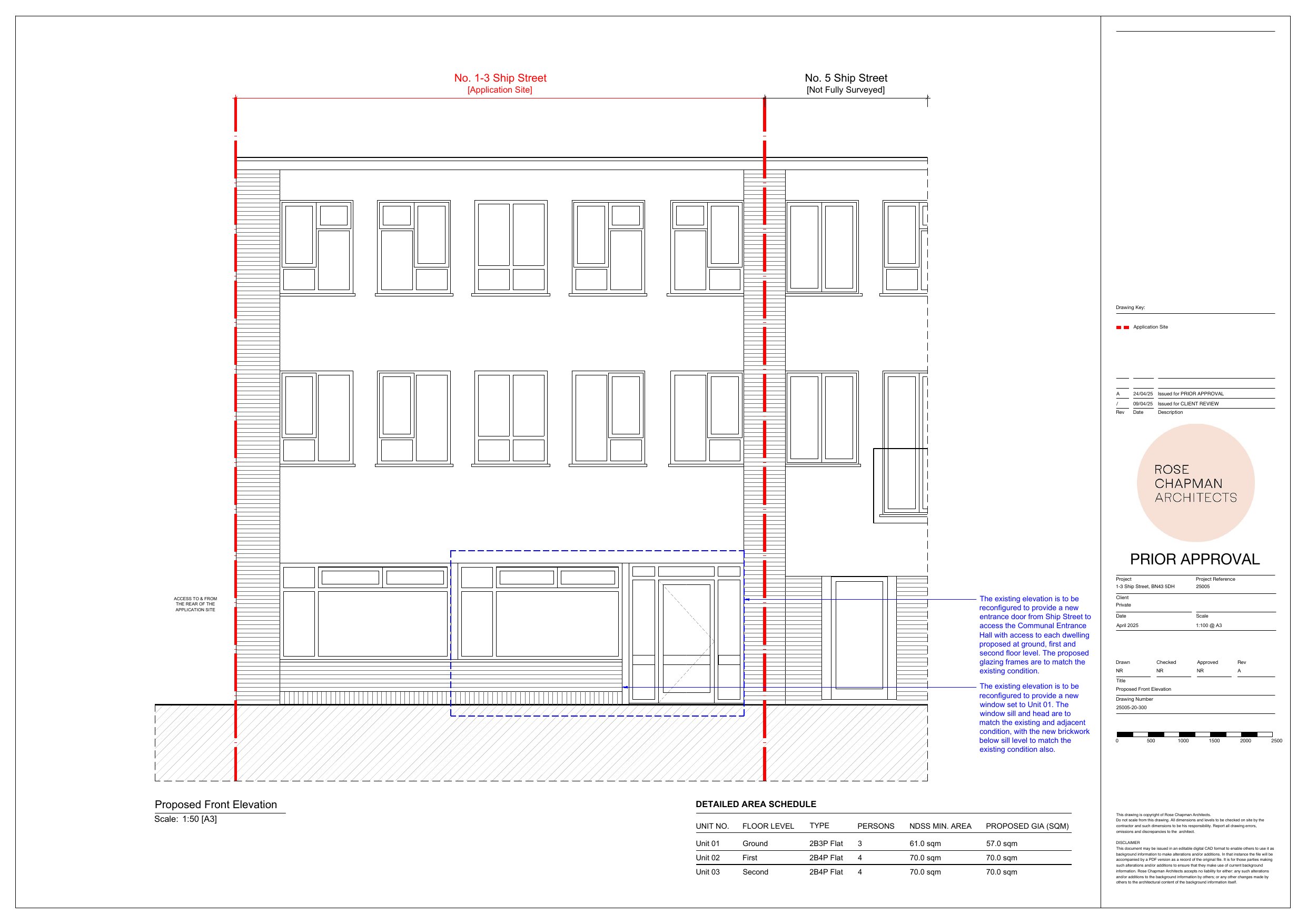
Application for Prior Approval for Proposed Change of use from commercial office (Use Class E) to 3no. independent dwellings (Use Class C3). 1no. two bed, three person ground floor dwelling and 1no. two bed, four person dwelling at each first and second floor

Documents

Application Form
Archived · Original link
Decision Notice
Archived · Original link
Report / Recommendation
Archived · Original link
Site Location/Block Plan
Archived · Original link
Latest plan
Archived · Original link
Latest plan
Archived · Original link
Latest plan
Archived · Original link
Latest plan
Archived · Original link
Latest plan
Archived · Original link
Consultation Response
Archived · Original link
Site Location/Block Plan
Archived · Original link
Map
Consultation Response
Archived · Original link
Consultation Response
Archived · Original link
Representation
Archived · Original link
Representation
Archived · Original link
Neighbours Notified
Archived · Original link
Latest plan
Archived · Original link
Latest plan
Archived · Original link
Latest plan
Archived · Original link
Latest plan
Archived · Original link
Latest plan
Archived · Original link
Consultation Response
Archived · Original link
WSP
Consultation Response
Archived · Original link

Have your say

Your comment matters. Councils must consider every representation that raises material planning considerations.

Write a comment