← Adur & Worthing Councils

Status

Unknown Change of use
Received
30 Oct 2024
New homes
2

Full proposal

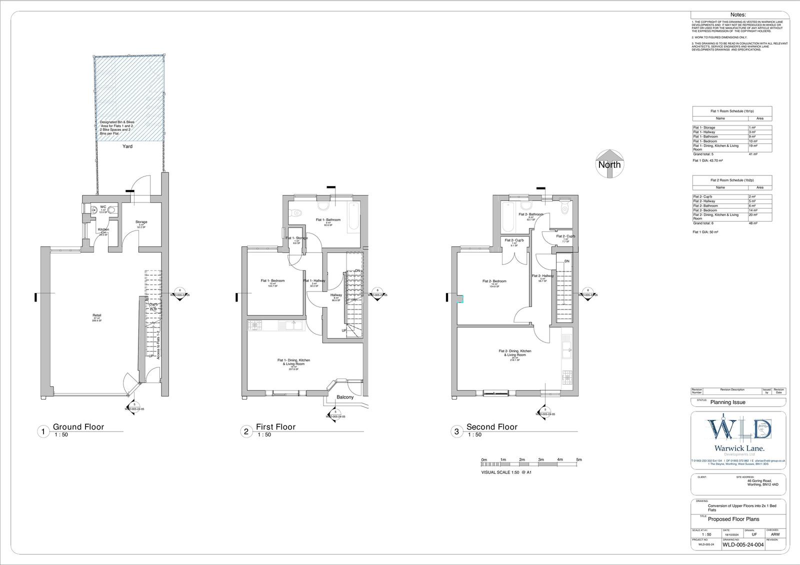
Change of use of from Class E (commercial/business/service) to Class C3 (dwelling houses) to create 2no. 1-bed apartments

Documents

APPLICATION FORM
Application Form
Not yet archived · Original link
COVERING LETTER & PLANNING STATEMENT (Redacted)
Supporting Statement
Not yet archived · Original link
DECISION NOTICE
Decision Notice
Not yet archived · Original link
Site Location/Block Plan
Archived · Original link
EXISTING PLANS & ELEVATIONS
Latest plan
Not yet archived · Original link
Highways
Consultation Response
Not yet archived · Original link
PROPOSED ELEVATIONS & SECTIONS
Latest plan
Not yet archived · Original link
Latest plan
Archived · Original link
Site Location/Block Plan
Archived · Original link
Public Health
Consultation Response
Not yet archived · Original link
Report
Report / Recommendation
Not yet archived · Original link
S/S PROPOSED ELEVATIONS & SECTIONS
Superseded Plan
Not yet archived · Original link
Superseded Plan
Archived · Original link
Southern Water
Consultation Response
Not yet archived · Original link
Southern Water
Consultation Response
Not yet archived · Original link
Water Risk Management
Consultation Response
Not yet archived · Original link

Have your say

Your comment matters. Councils must consider every representation that raises material planning considerations.

Write a comment