← Arun District Council

Status

Pending House extension
Received
Not recorded
New homes
0

Summary

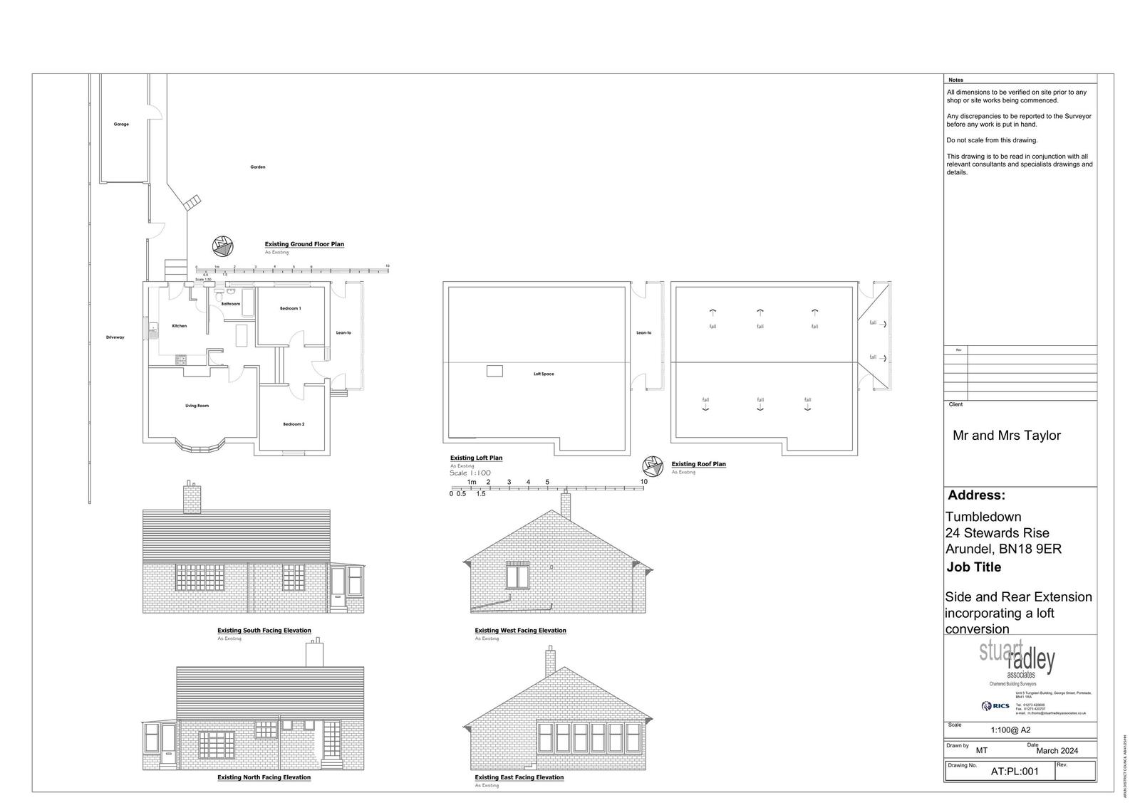
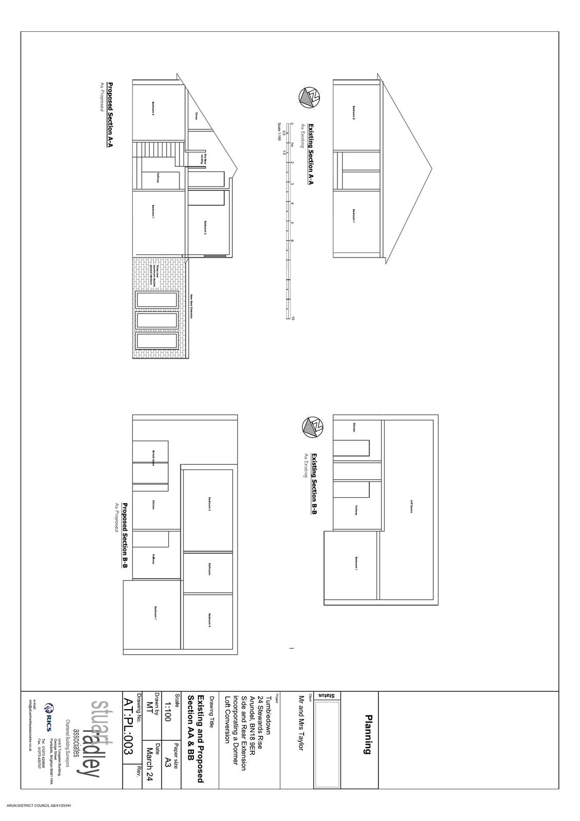
Single-storey side/rear extension, terrace, loft conversion with dormer and rooflights.

Full proposal

Single storey side/rear extension with terrace/patio and conversion of loft to habitable use including installation of 1 No. rear dormer and front rooflights, following demolition of existing detached garage and lean-to.

Documents

Document
Archived · Original link
Document
Archived · Original link
Document
Archived · Original link
Document
Archived · Original link
Document
Archived · Original link
Document
Archived · Original link
Document
Archived · Original link
Document
Archived · Original link
Document
Archived · Original link
Document
Archived · Original link
Document
Archived · Original link
Document
Archived · Original link
Document
Archived · Original link
Document
Archived · Original link
Document
Archived · Original link
Document
Archived · Original link
Document
Archived · Original link
Document
Archived · Original link

Have your say

Your comment matters. Councils must consider every representation that raises material planning considerations.

Write a comment