← Arun District Council

Status

Pending House extension
Received
Not recorded
New homes
0

Summary

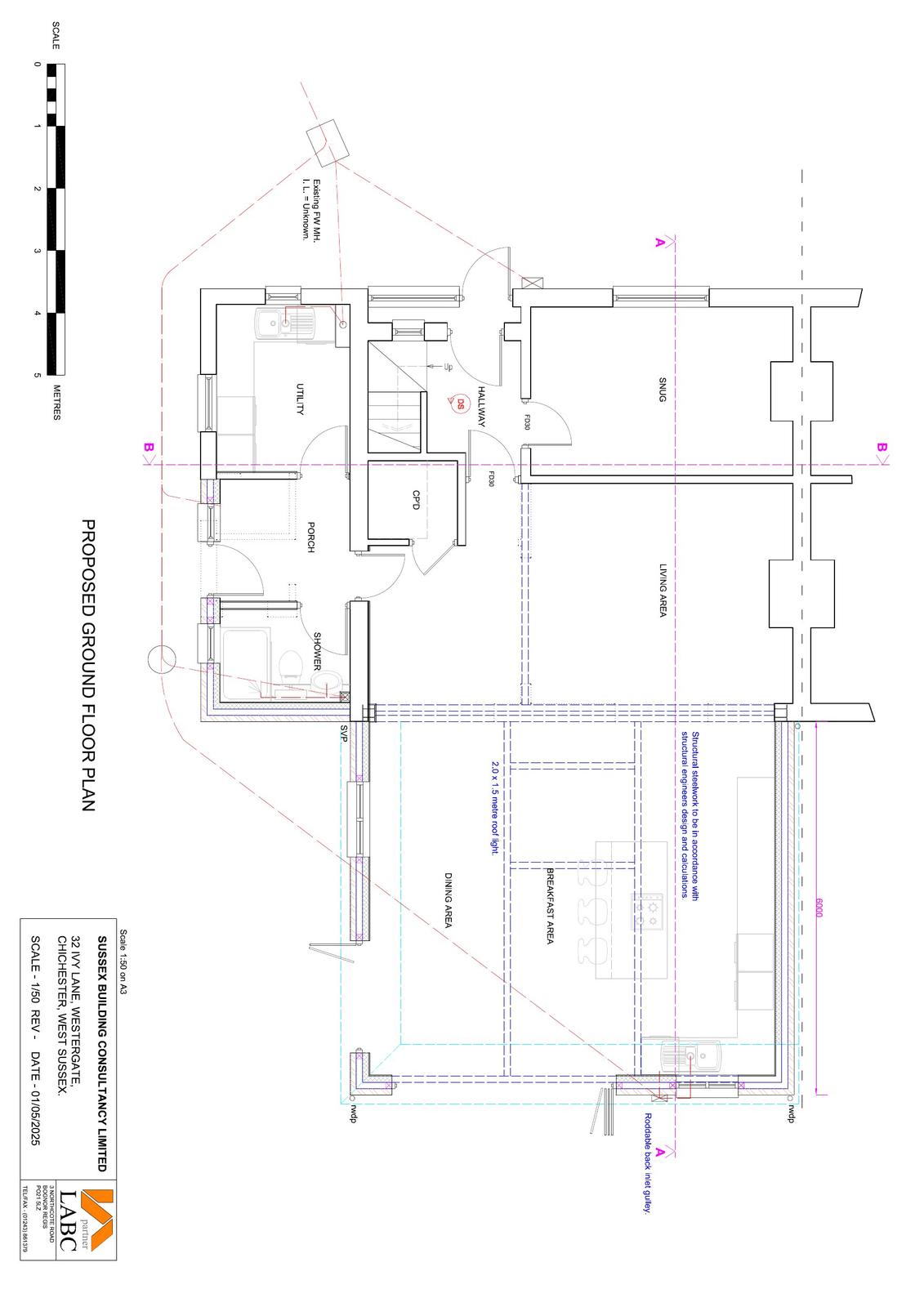
Notification for permitted development single-storey rear extension (6m depth).

Full proposal

Notification under extended permitted development rights for a single storey rear extension measuring 6m from beyond the rear wall of the original dwelling house, with a maximum height of 3.4m and an eaves height of 2.8m

Documents

Document
Archived · Original link
Document
Archived · Original link
Document
Archived · Original link
Document
Archived · Original link
Document
Archived · Original link
Document
Archived · Original link
Document
Archived · Original link
Document
Archived · Original link

Have your say

Your comment matters. Councils must consider every representation that raises material planning considerations.

Write a comment