← Arun District Council

Status

Pending House extension
Received
Not recorded
New homes
0

Full proposal

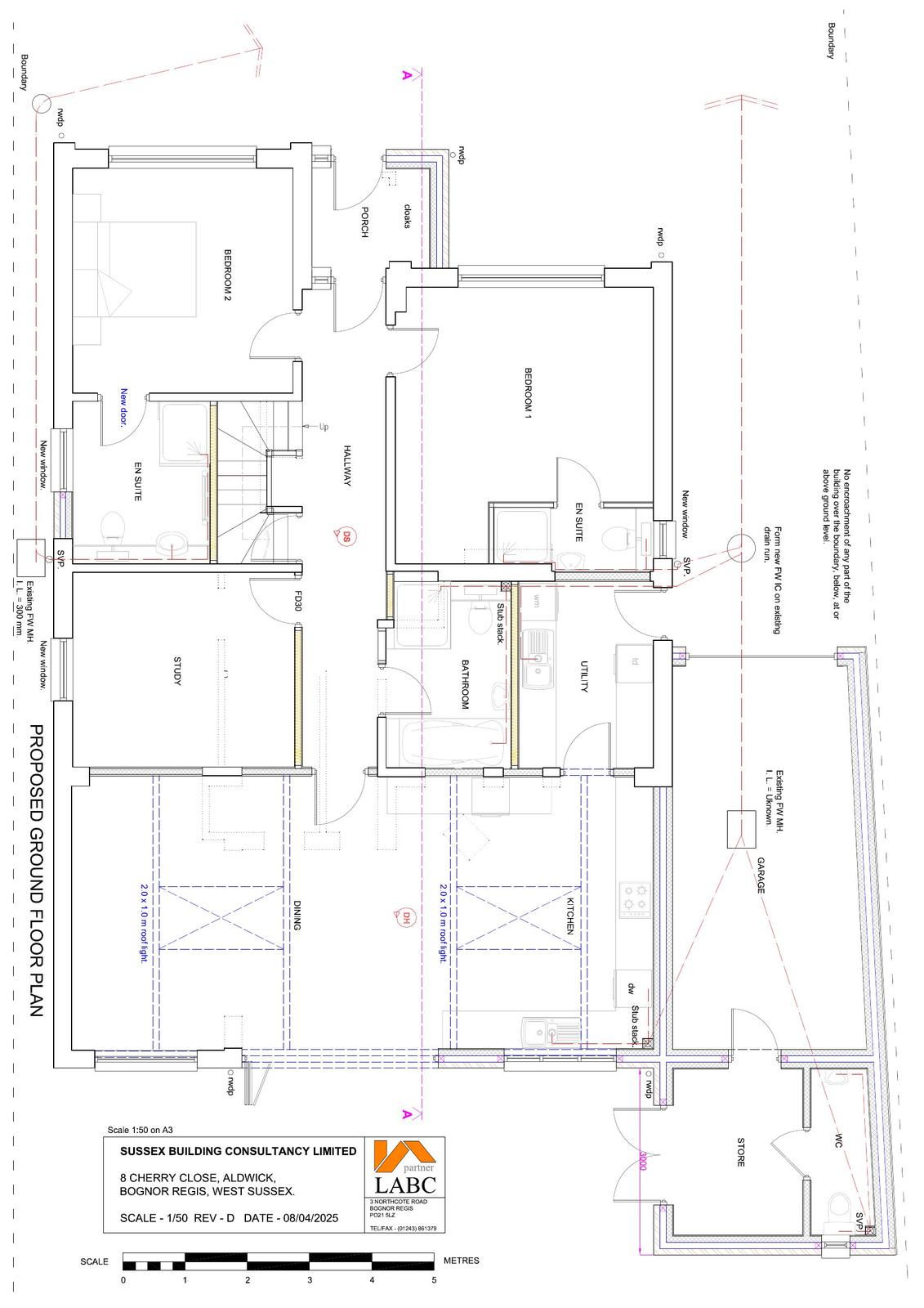
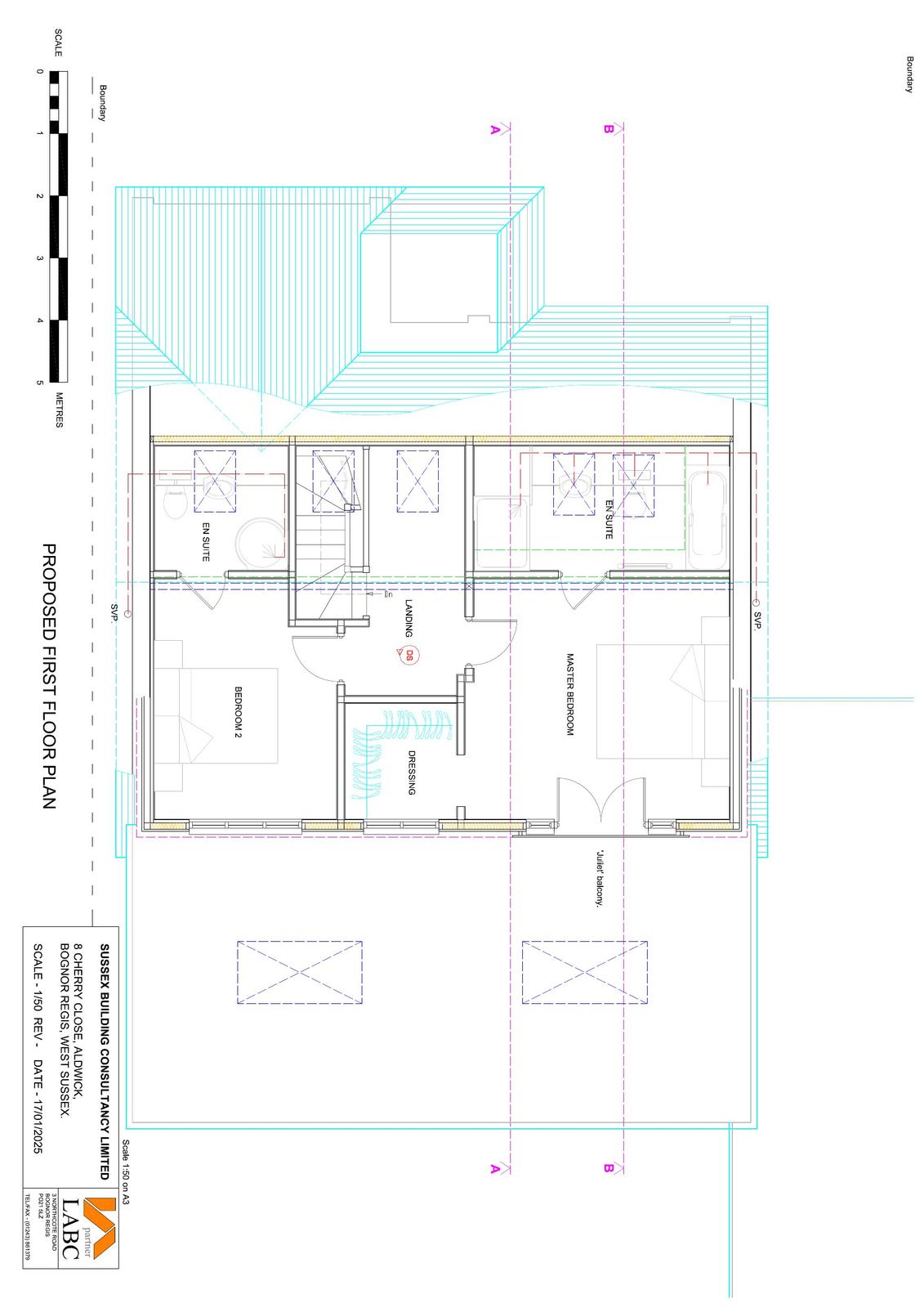
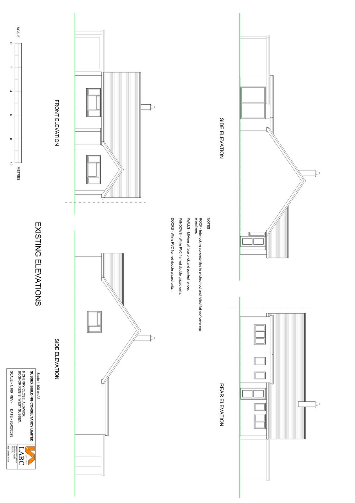
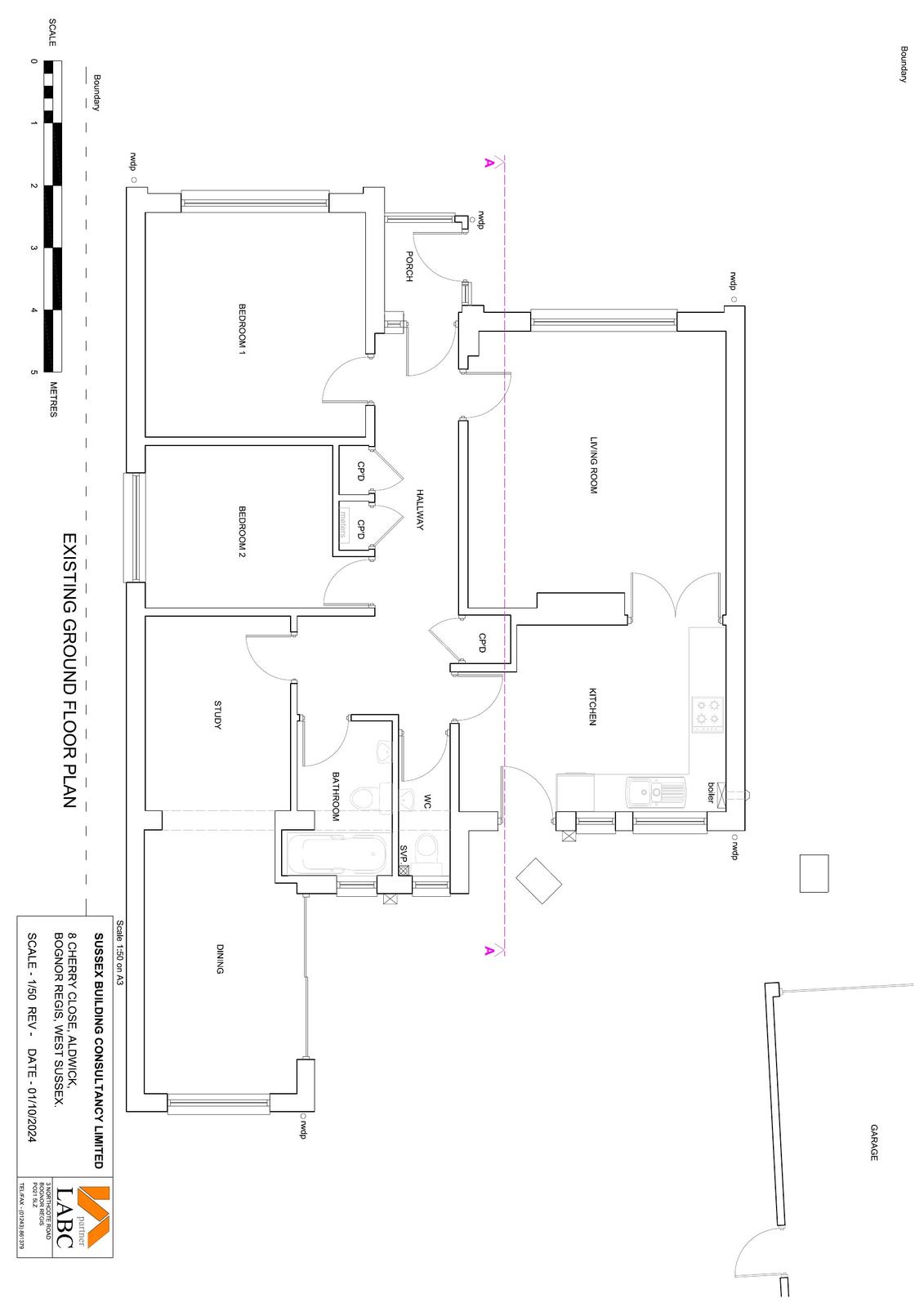
Re-submission of AW/299/24/HH - Demolition of the existing porch and detached garage. New rear/side flat roof extension, front porch extension. Conversion of the first floor roof space with new rear dormer. Installation of 2 x side windows.

Documents

Document
Archived · Original link
Document
Archived · Original link
Document
Archived · Original link
Document
Archived · Original link
Document
Archived · Original link
Document
Archived · Original link
Document
Archived · Original link
Document
Archived · Original link
Document
Archived · Original link
Document
Archived · Original link
Document
Archived · Original link
Document
Archived · Original link
Document
Archived · Original link
Document
Archived · Original link
Document
Archived · Original link
Document
Archived · Original link
Document
Archived · Original link

Have your say

Your comment matters. Councils must consider every representation that raises material planning considerations.

Write a comment