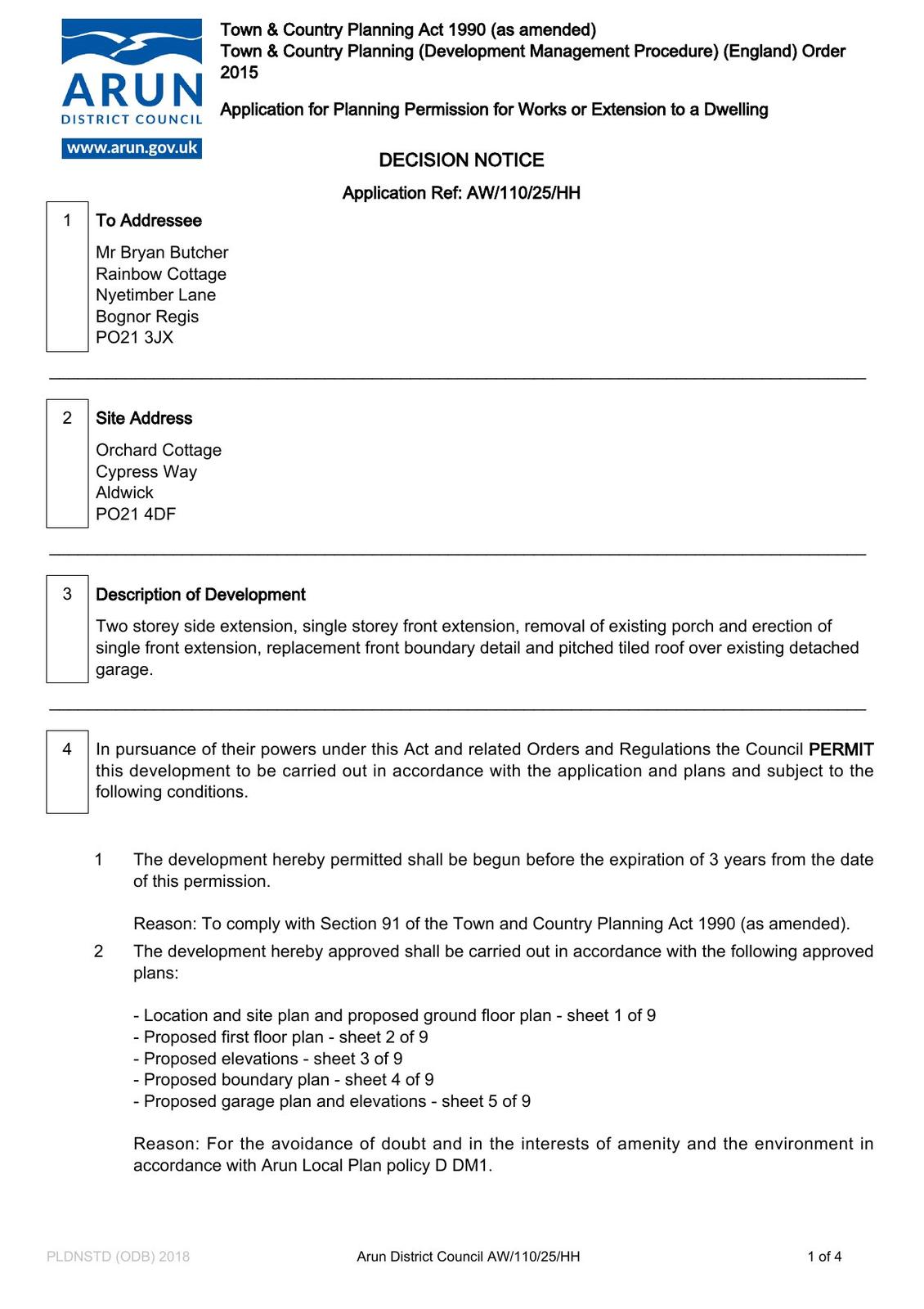
← Arun District Council

Status

Pending House extension
Received
Not recorded
New homes
0

Summary

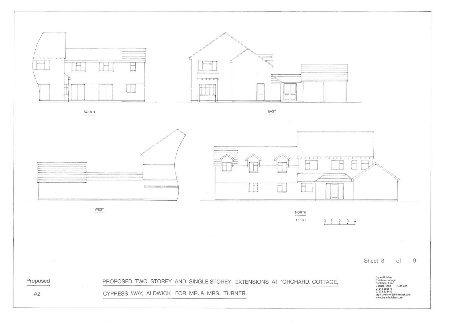
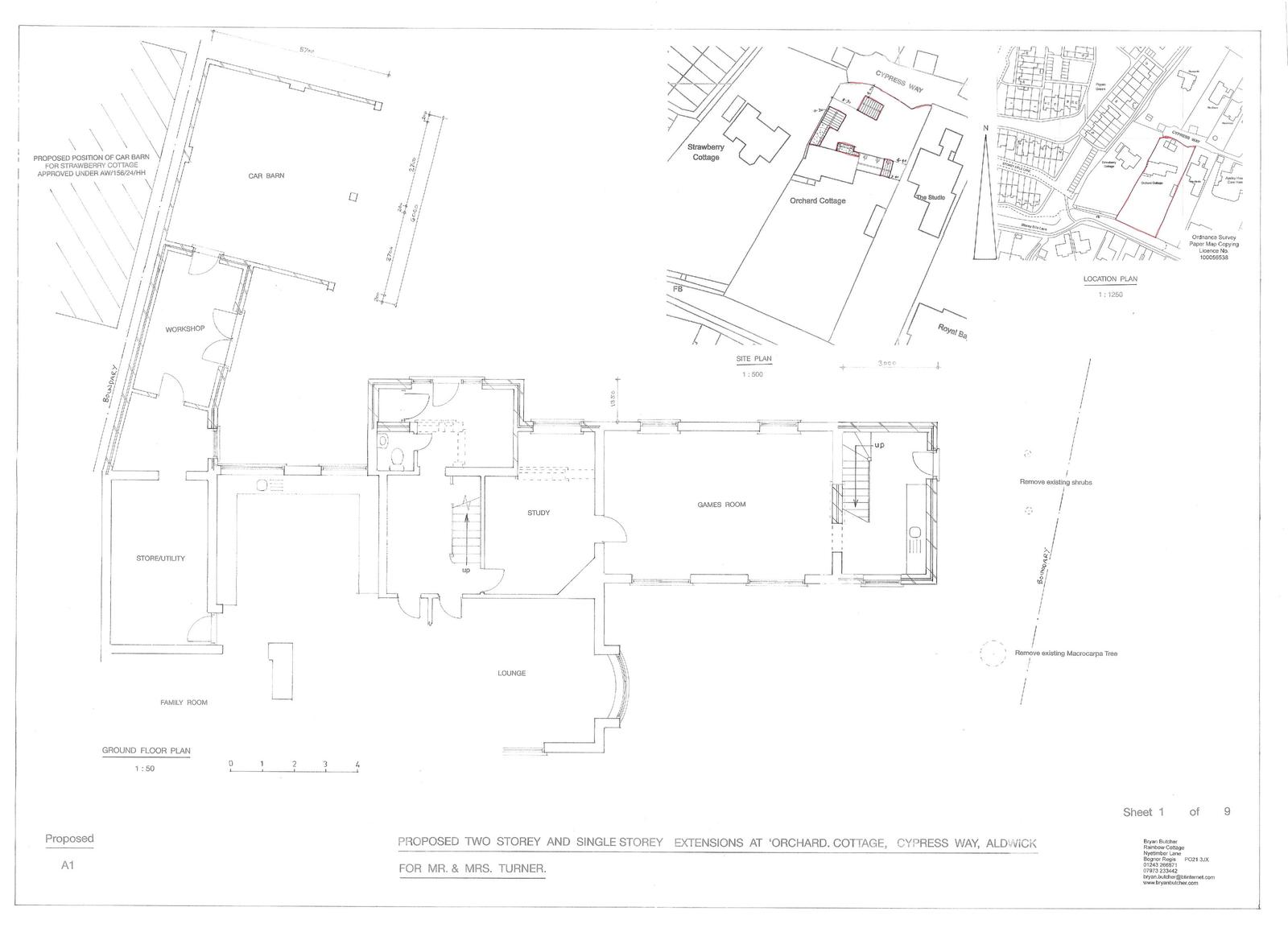
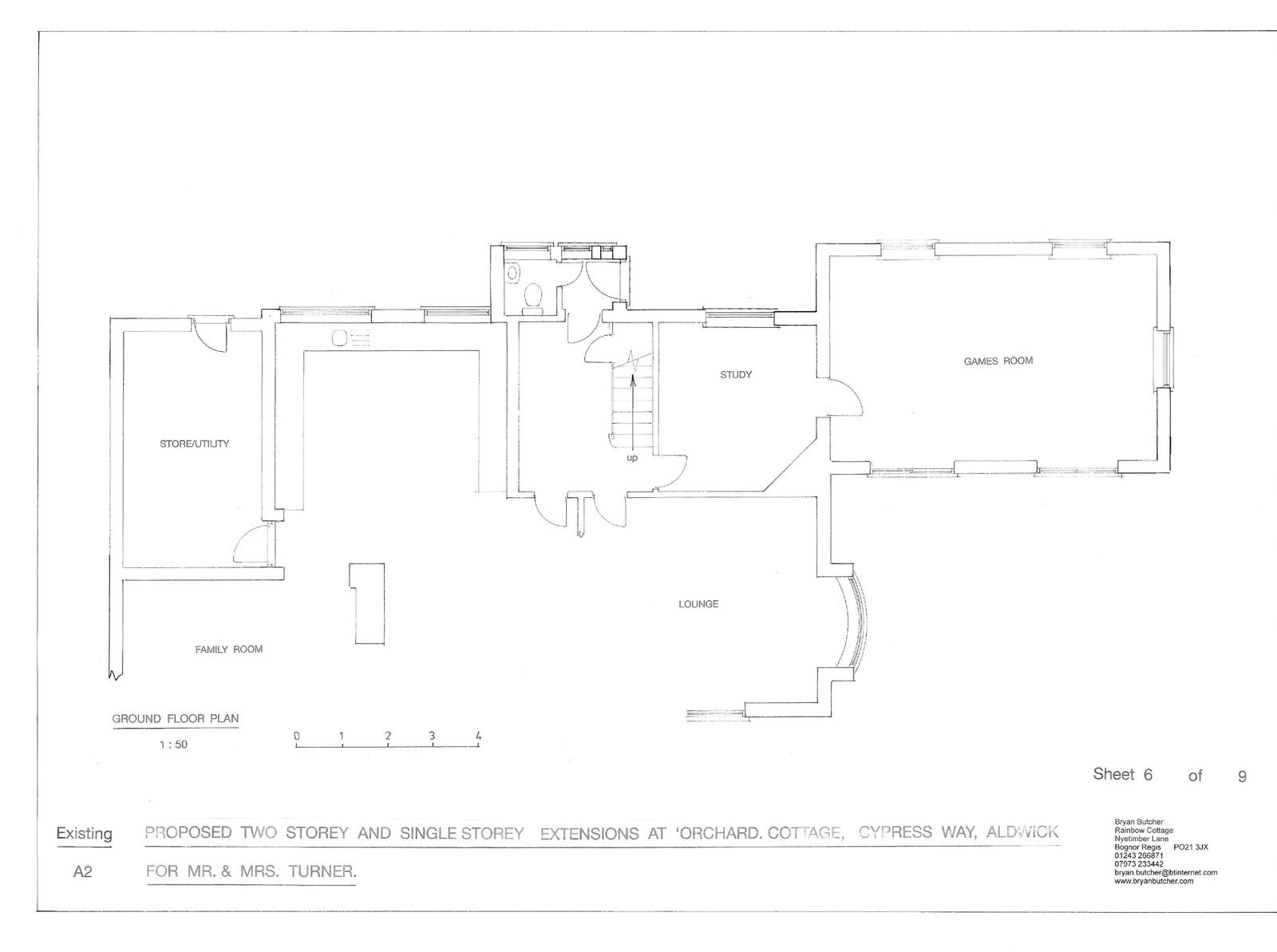
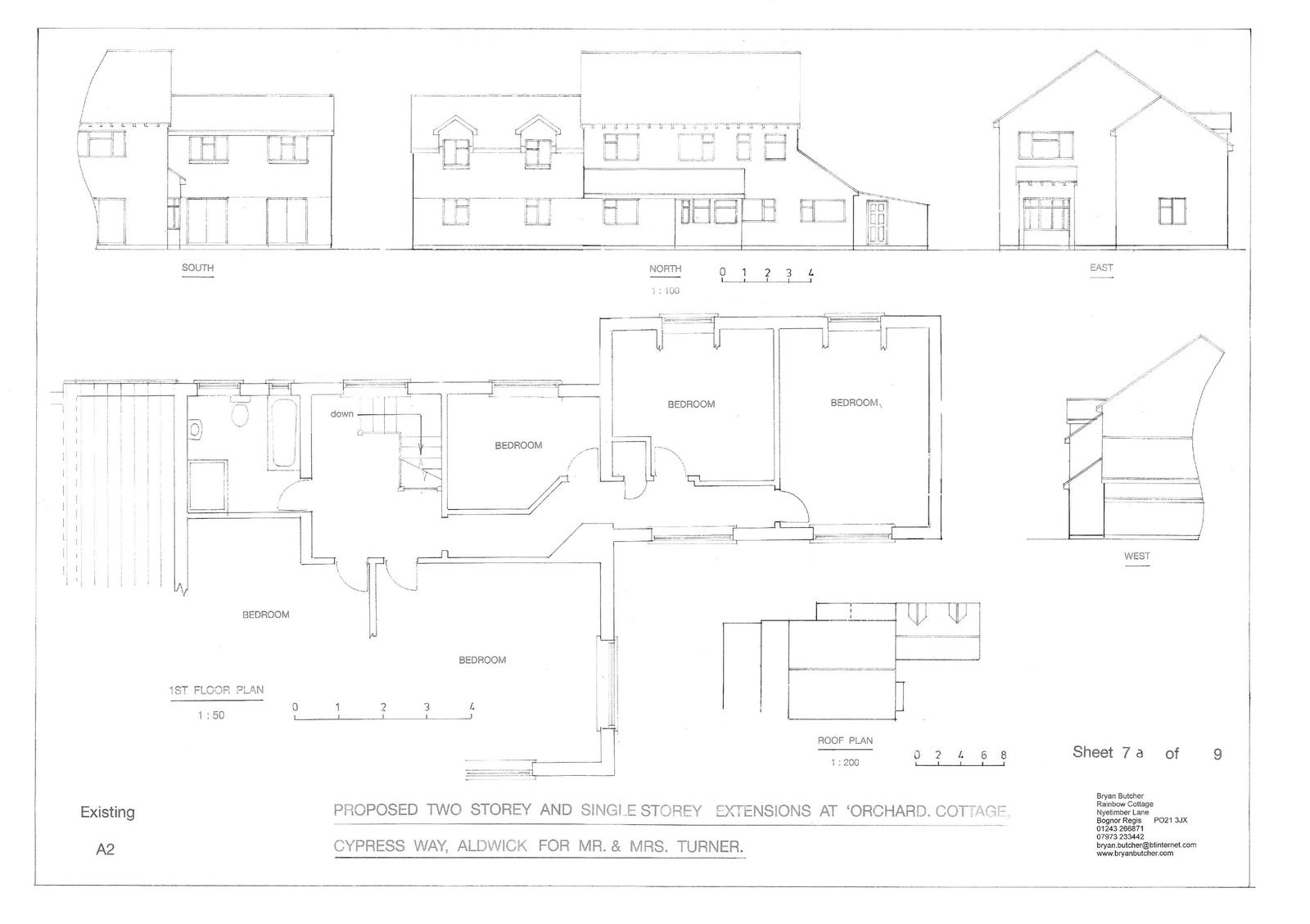
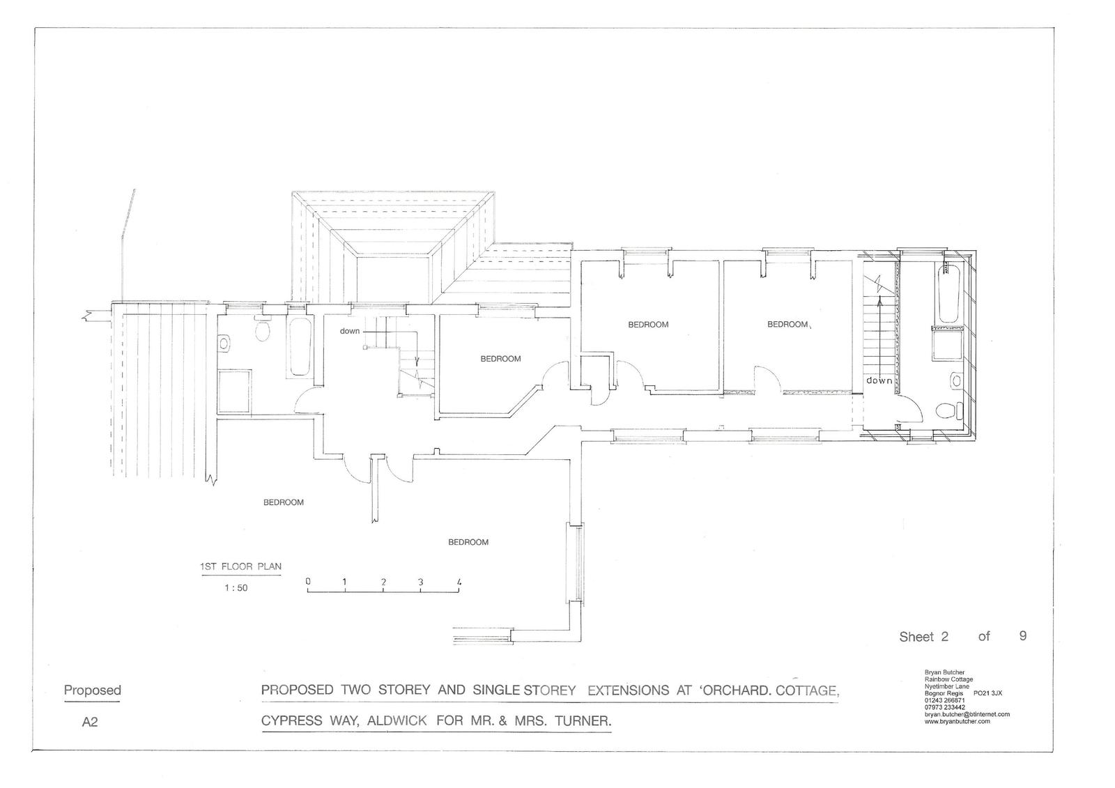
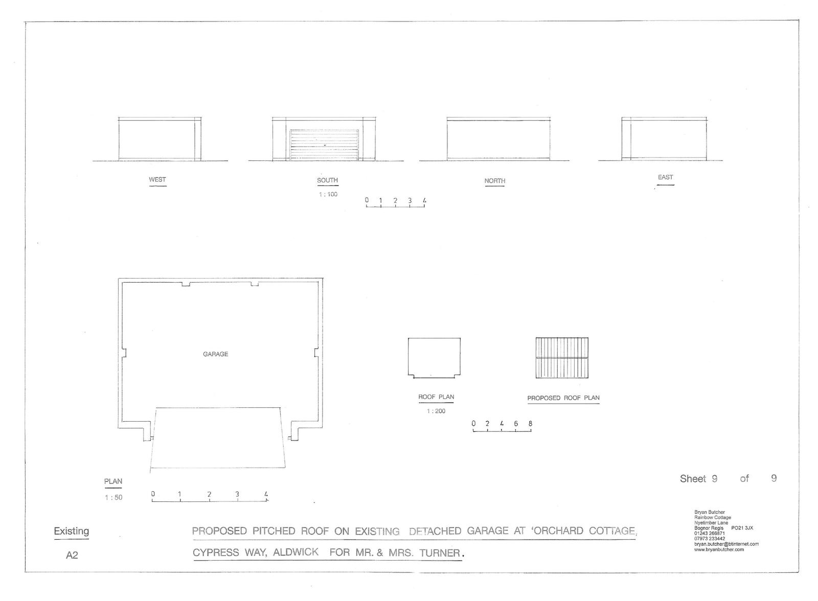
Two-storey side and single-storey front extensions; porch removal and garage roof replacement.

Full proposal

Two storey side extension, single storey front extension, removal of existing porch and erection of single front extension, replacement front boundary detail and pitched tiled roof over existing detached garage.

Documents

Document
Archived · Original link
Document
Archived · Original link
Document
Archived · Original link
Document
Archived · Original link
Document
Archived · Original link
Document
Archived · Original link
Document
Archived · Original link
Document
Archived · Original link
Document
Archived · Original link
Document
Archived · Original link
Document
Archived · Original link
Document
Archived · Original link
Document
Archived · Original link
Document
Archived · Original link
Document
Archived · Original link
Document
Archived · Original link
Document
Archived · Original link
Document
Archived · Original link
Document
Archived · Original link

Have your say

Your comment matters. Councils must consider every representation that raises material planning considerations.

Write a comment