← Arun District Council

Status

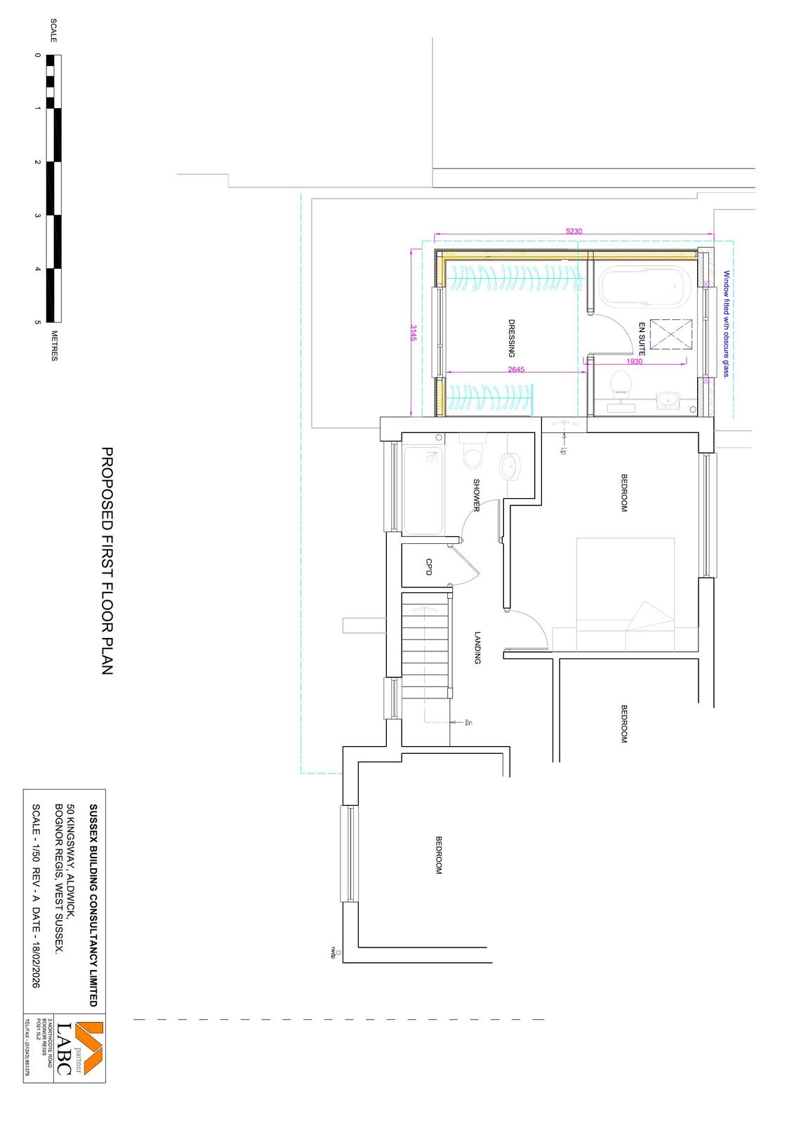
Pending House extension
Received
Not recorded
New homes
0

Full proposal

Side facing first floor extension. (This application may affect the character and appearance of the Craigweil House, Aldwick Conservation Area).

Documents

Document
Archived · Original link
Document
Archived · Original link
Document
Archived · Original link
Document
Archived · Original link
Document
Archived · Original link
Document
Archived · Original link
Document
Archived · Original link
Document
Archived · Original link
Document
Archived · Original link
Document
Archived · Original link
Document
Archived · Original link
Document
Archived · Original link
Document
Archived · Original link

Have your say

Your comment matters. Councils must consider every representation that raises material planning considerations.

Write a comment