← Arun District Council

Status

Pending House extension
Received
Not recorded
New homes
0

Full proposal

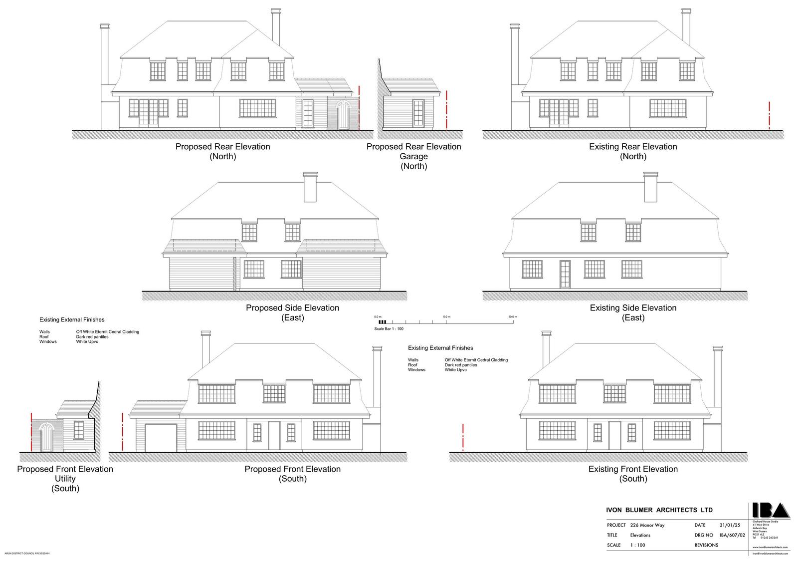
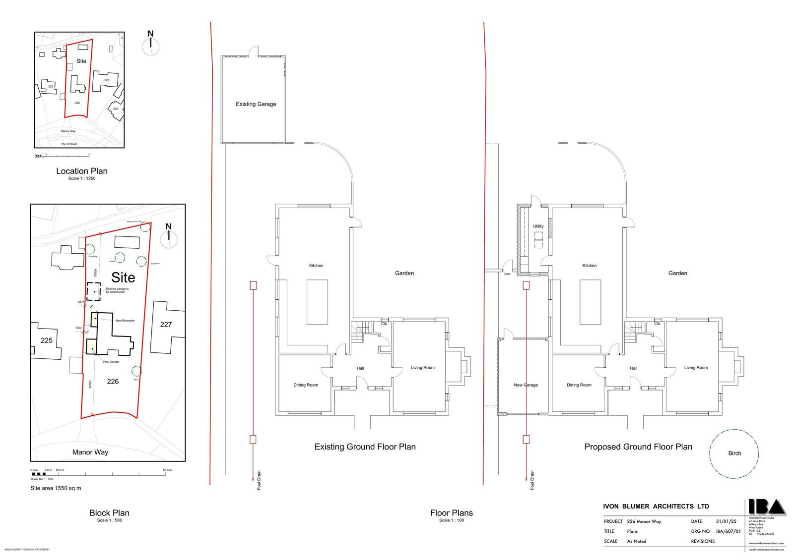
Demolition of existing single detached garage and construction of new single storey side utility extension and new single side integral garage. (This application may affect the character and appearance of the Aldwick Bay Conservation Area).

Documents

Document
Archived · Original link
Document
Archived · Original link
Document
Archived · Original link
Document
Archived · Original link
Document
Archived · Original link
Document
Archived · Original link
Document
Archived · Original link
Document
Archived · Original link
Document
Archived · Original link
Document
Archived · Original link
Document
Archived · Original link
Document
Archived · Original link
Document
Archived · Original link
Document
Archived · Original link
Document
Archived · Original link
Document
Archived · Original link
Document
Archived · Original link
Document
Archived · Original link
Document
Archived · Original link

Have your say

Your comment matters. Councils must consider every representation that raises material planning considerations.

Write a comment