← Arun District Council

Status

Pending House extension
Received
Not recorded
New homes
0

Full proposal

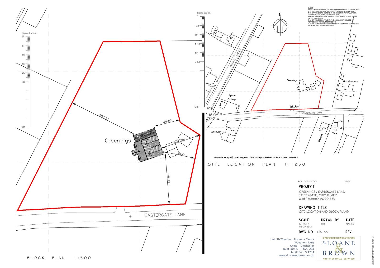
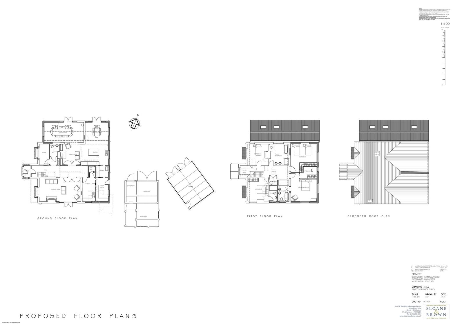
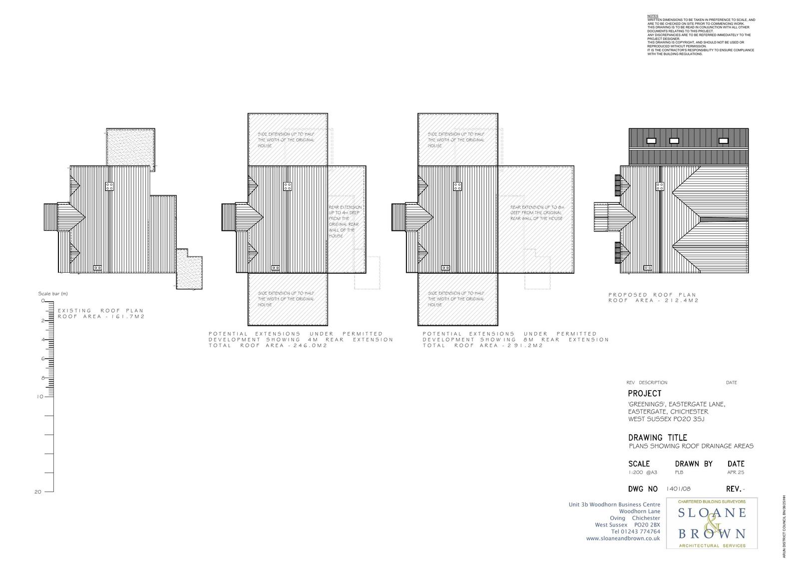
Removal of previous extensions and construction of a two storey rear extension, single storey side extension, replacement front porch, new ground floor front bay windows, external cladding and re-rendering, and realignment of front entrance drive.

Documents

Document
Archived · Original link
Document
Archived · Original link
Document
Archived · Original link
Document
Archived · Original link
Document
Archived · Original link
Document
Archived · Original link
Document
Archived · Original link
Document
Archived · Original link
Document
Archived · Original link
Document
Archived · Original link
Document
Archived · Original link
Document
Archived · Original link
Document
Archived · Original link
Document
Archived · Original link
Document
Archived · Original link
Document
Archived · Original link
Document
Archived · Original link

Have your say

Your comment matters. Councils must consider every representation that raises material planning considerations.

Write a comment