← Arun District Council

Status

Pending Change of use
Received
Not recorded
New homes
0

Full proposal

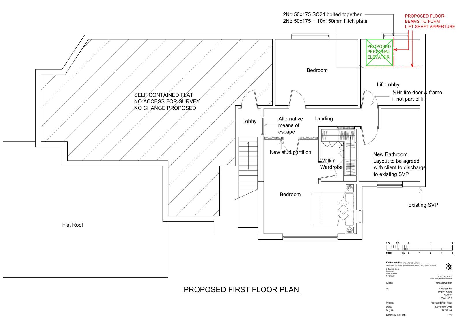
Conversion of 2 No. separate self contained flats into 1 No. two floor duplex apartment including the installation of a person elevator. This application is in CIL Zone 4 (Zero Rated) as other development.

Documents

Document
Archived · Original link
Document
Archived · Original link
Document
Archived · Original link
Document
Archived · Original link
Document
Archived · Original link
Document
Archived · Original link
Document
Archived · Original link
Document
Archived · Original link
Document
Archived · Original link
Document
Archived · Original link
Document
Archived · Original link
Document
Archived · Original link
Document
Archived · Original link
Document
Archived · Original link

Have your say

Your comment matters. Councils must consider every representation that raises material planning considerations.

Write a comment