← Arun District Council

Status

Pending House extension
Received
Not recorded
New homes
0

Full proposal

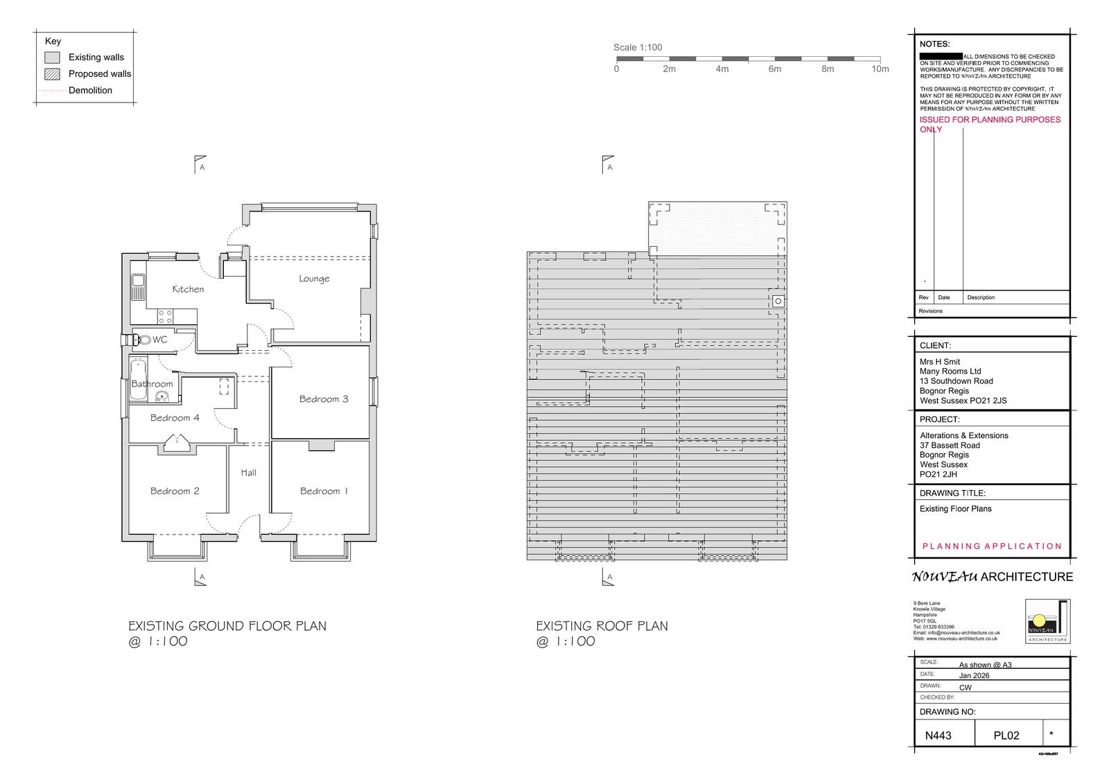
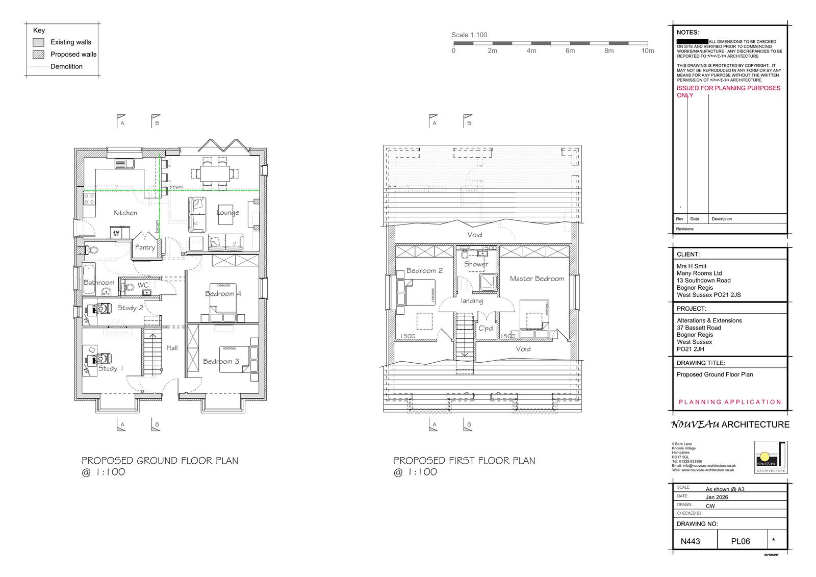
Conversion of attic space to habitable accommodation, single storey rear extension, external thermal insulation and horizontal cladding to external walls. Replacement windows and doors. Installation of photovoltaic panels to southern roof slope.

Documents

Document
Archived · Original link
Document
Archived · Original link
Document
Archived · Original link
Document
Archived · Original link
Document
Archived · Original link
Document
Archived · Original link
Document
Archived · Original link
Document
Archived · Original link
Document
Archived · Original link
Document
Archived · Original link
Document
Archived · Original link
Document
Archived · Original link
Document
Archived · Original link
Document
Archived · Original link
Document
Archived · Original link
Document
Archived · Original link
Document
Archived · Original link

Have your say

Your comment matters. Councils must consider every representation that raises material planning considerations.

Write a comment