← Arun District Council

Status

Pending House extension
Received
Not recorded
New homes
0

Full proposal

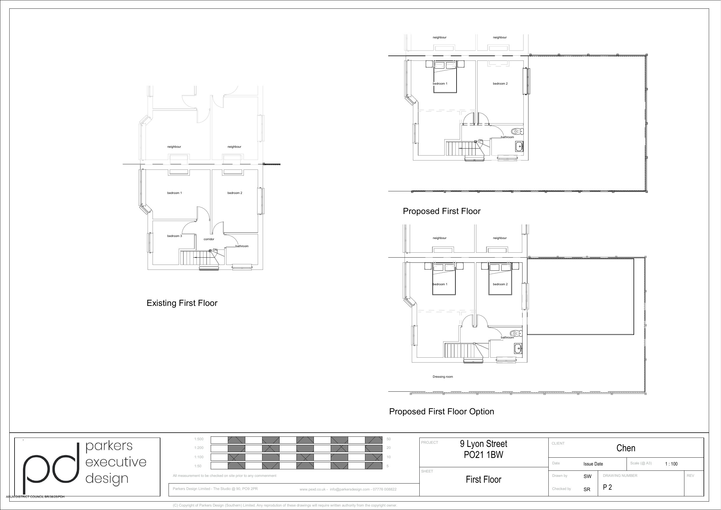
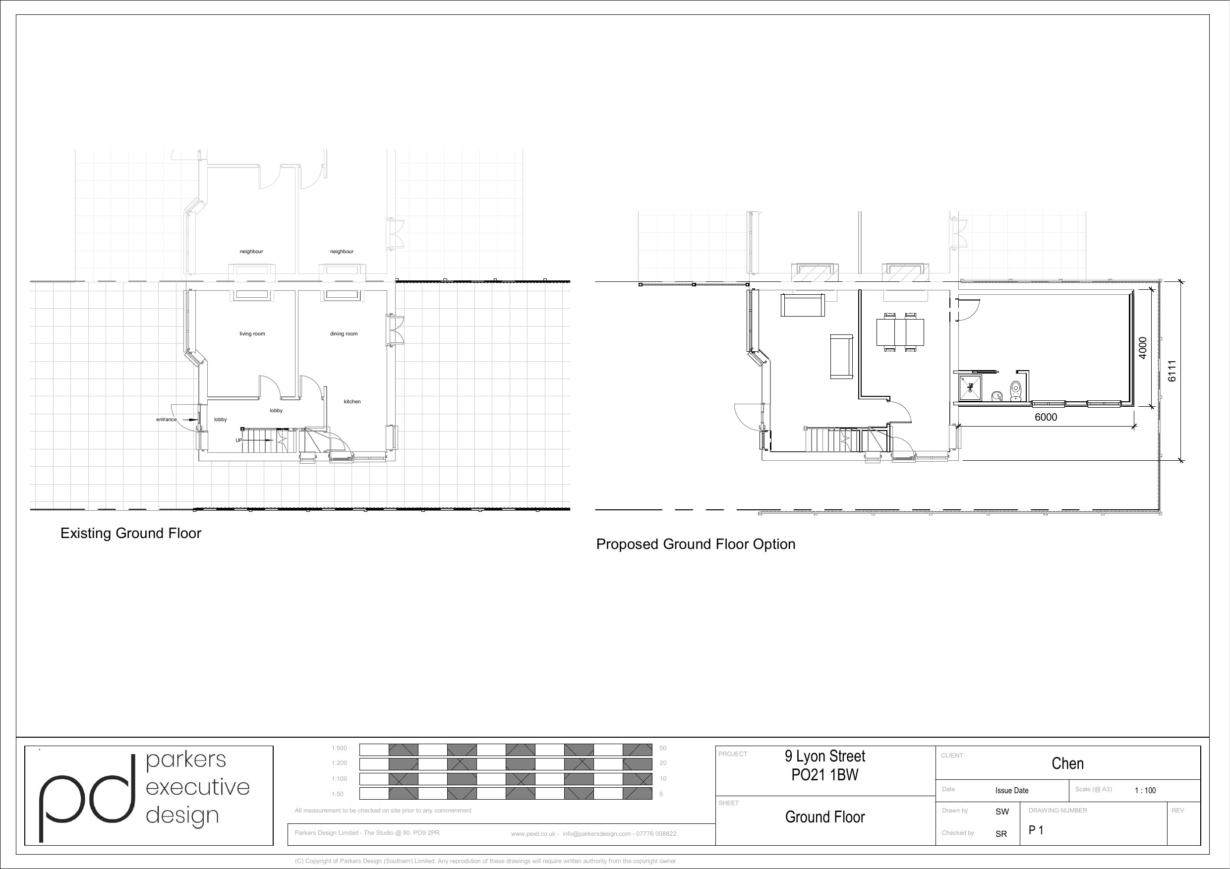
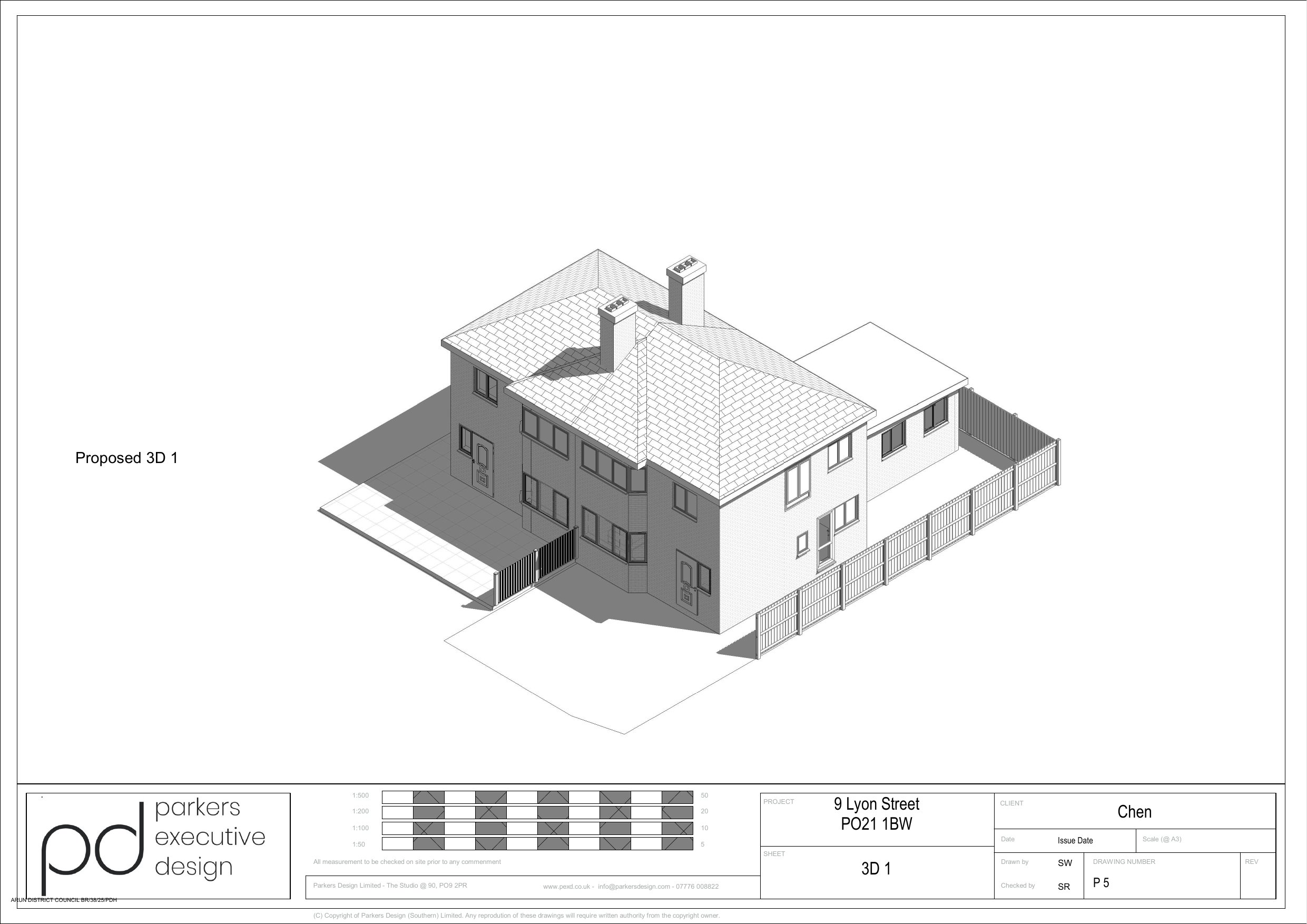
Notification under extended permitted development rights for a single storey rear extension measuring 6m from beyond the rear wall of the original dwelling house, with a maximum height of 3m and eaves height of 3m.

Documents

Document
Archived · Original link
Document
Archived · Original link
Document
Archived · Original link
Document
Archived · Original link
Document
Archived · Original link
Document
Archived · Original link
Document
Archived · Original link
Document
Archived · Original link
Document
Archived · Original link
Document
Archived · Original link
Document
Archived · Original link
Document
Archived · Original link
Document
Archived · Original link
Document
Archived · Original link

Have your say

Your comment matters. Councils must consider every representation that raises material planning considerations.

Write a comment