← Back to Arun District Coucil

Status

Unknown status Change of use
Received n/a
New dwellings 0

What you can do

Take Action

Make your voice heard. Authorities need to hear from people who support new homes.

Summary

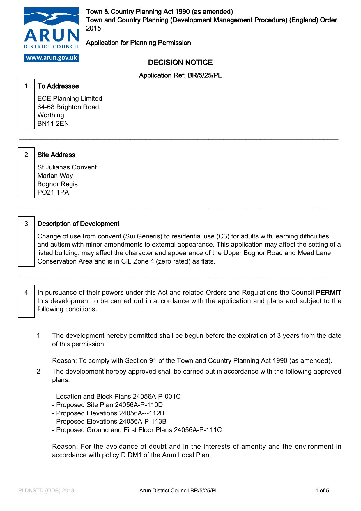
Change of use from convent to residential (C3) for adults with learning difficulties and autism, minor external changes.

Full Proposal

Change of use from convent (Sui Generis) to residential use (C3) for adults with learning difficulties and autism with minor amendments to external appearance. This application may affect the setting of a listed building, may affect the character and appearance of the Upper Bognor Road and Mead Lane Conservation Area and is in CIL Zone 4 (zero rated) as flats.

Detail pages

Documents

Application
Document
Not downloaded · Council link
Application
Document
Not downloaded · Council link
Application
Document
Not downloaded · Council link
Application
Document
Not downloaded · Council link
Application
Document
Not downloaded · Council link
Consultation
Document
Not downloaded · Council link
Consultation
Document
Not downloaded · Council link
Consultation
Document
Not downloaded · Council link
Consultation
Document
Not downloaded · Council link
Consultation
Document
Not downloaded · Council link
Consultation
Document
Not downloaded · Council link
Decision
Document
Not downloaded · Council link
Decision
Document
Not downloaded · Council link
Officers Report
Document
Not downloaded · Council link
Planning Correspondence
Document
Not downloaded · Council link
Planning Correspondence
Document
Not downloaded · Council link
Plans
Document
Not downloaded · Council link
Plans
Document
Not downloaded · Council link
Plans
Document
Not downloaded · Council link
Plans
Document
Not downloaded · Council link
Plans
Document
Not downloaded · Council link
Plans
Document
Not downloaded · Council link
Plans
Document
Not downloaded · Council link
Plans
Document
Not downloaded · Council link
Plans
Document
Not downloaded · Council link
Section 106 Planning Agreement
Document
Not downloaded · Council link
Section 106 Planning Agreement
Document
Not downloaded · Council link
Section 106 Planning Agreement
Document
Not downloaded · Council link
Section 106 Planning Agreement
Document
Not downloaded · Council link
Statement
Document
Not downloaded · Council link
Statement
Document
Not downloaded · Council link
Statement
Document
Not downloaded · Council link
Statement
Document
Not downloaded · Council link
Statement
Document
Not downloaded · Council link
Systems Correspondence
Document
Not downloaded · Council link
Systems Correspondence
Document
Not downloaded · Council link