← Arun District Council

Status

Pending Change of use
Received
Not recorded
New homes
0

Full proposal

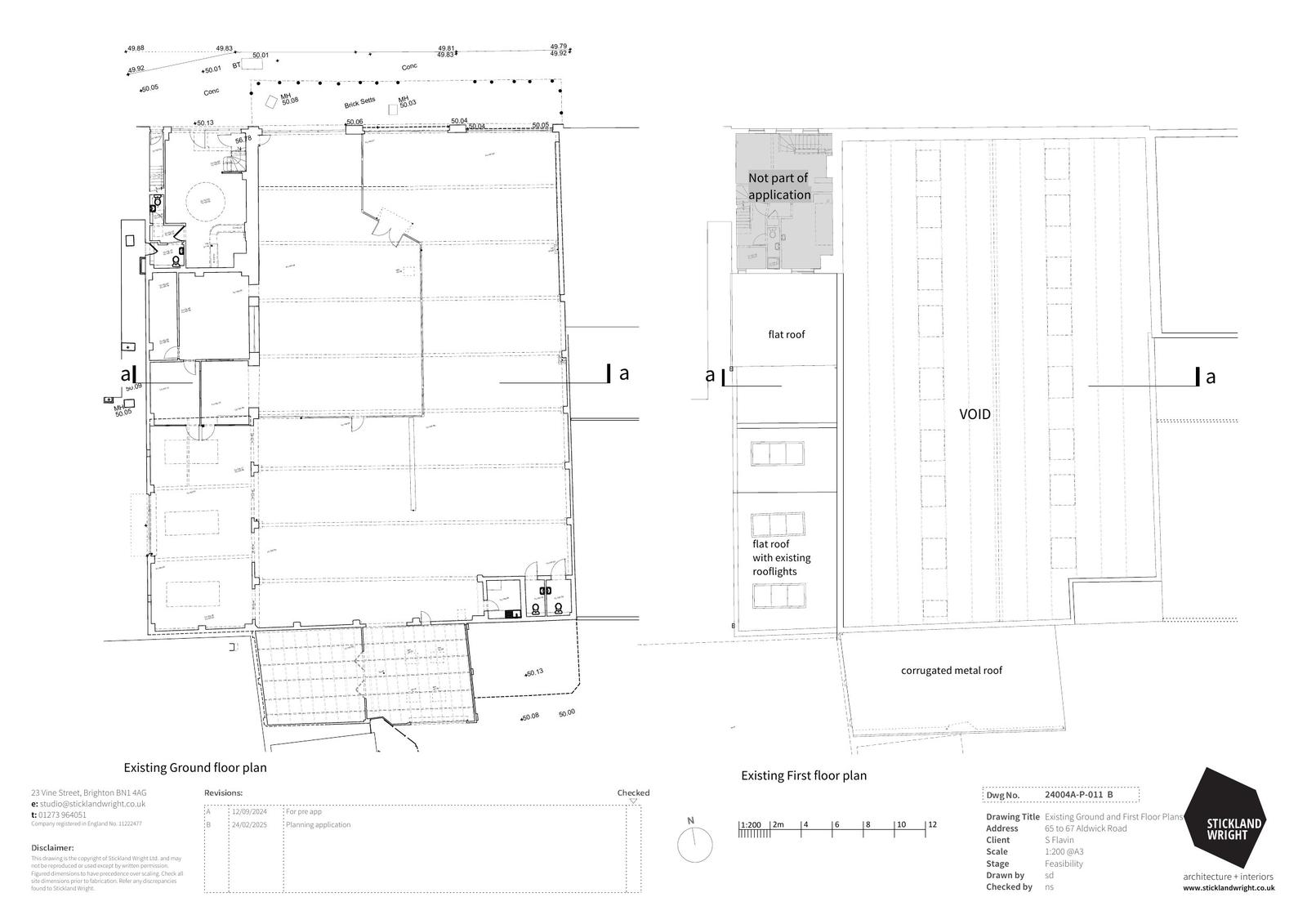
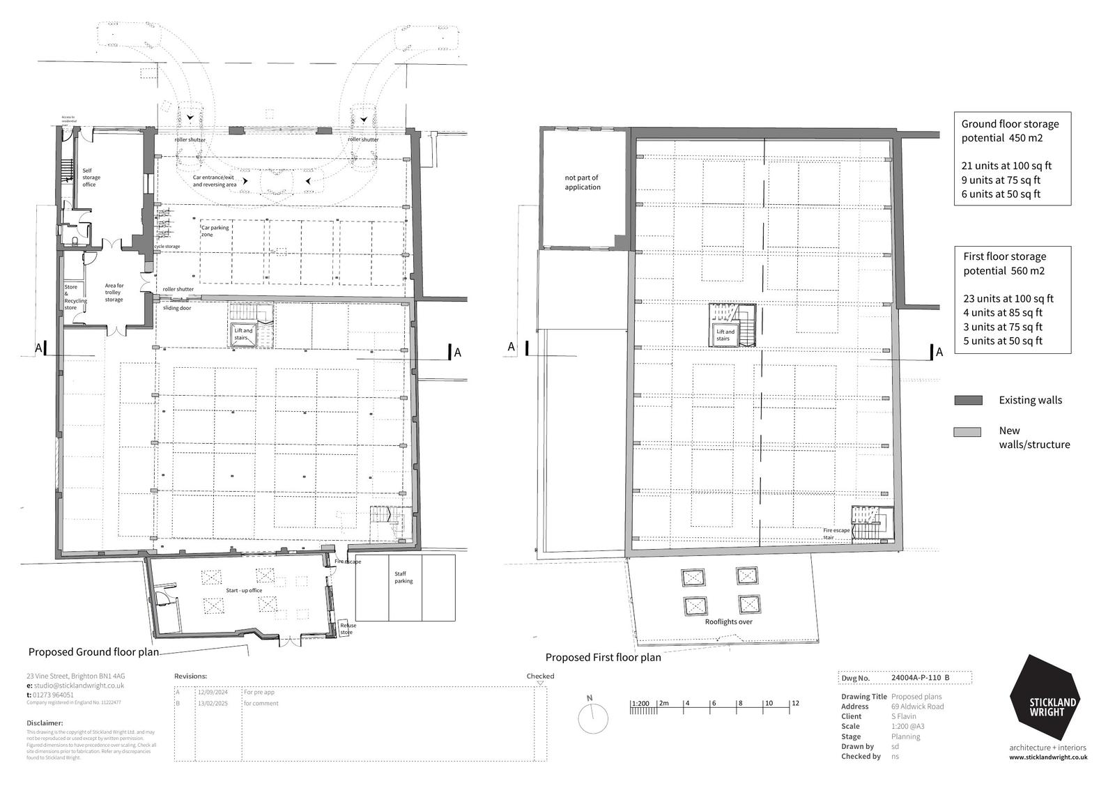
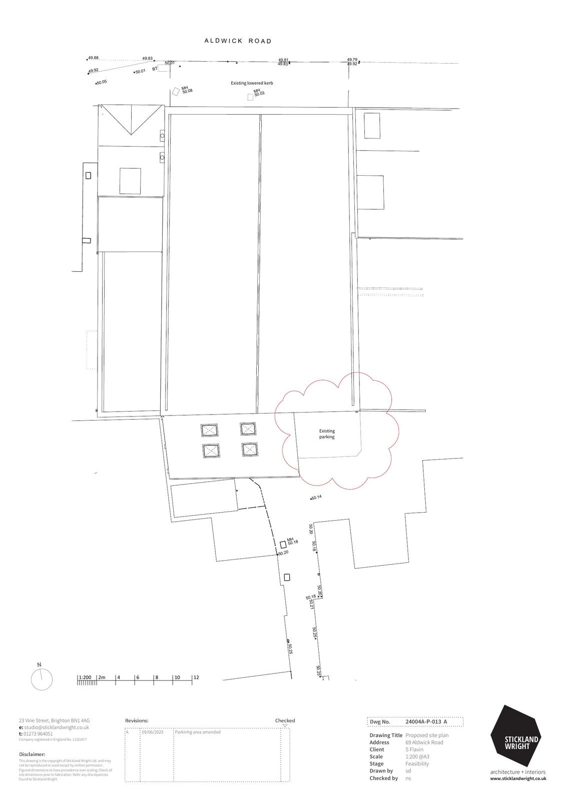
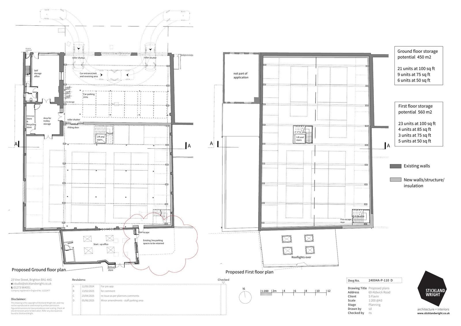
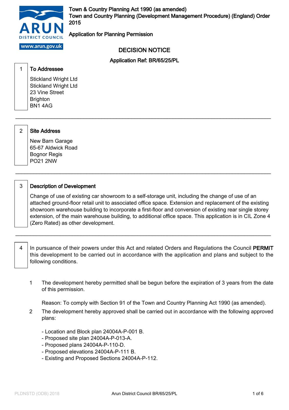
Change of use of existing car showroom to a self-storage unit, including the change of use of an attached ground-floor retail unit to associated office space. Extension and replacement of the existing showroom warehouse building to incorporate a first-floor and conversion of existing rear single storey extension, of the main warehouse building, to additional office space. This application is in CIL Zone 4 (Zero Rated) as other development.

Documents

Document
Archived · Original link
Document
Archived · Original link
Document
Archived · Original link
Document
Archived · Original link
Document
Archived · Original link
Document
Archived · Original link
Document
Archived · Original link
Document
Archived · Original link
Document
Archived · Original link
Document
Archived · Original link
Document
Archived · Original link
Document
Archived · Original link
Document
Archived · Original link
Document
Archived · Original link
Document
Archived · Original link
Document
Archived · Original link
Document
Archived · Original link
Document
Archived · Original link
Document
Archived · Original link
Document
Archived · Original link
Document
Archived · Original link
Document
Archived · Original link
Document
Archived · Original link
Document
Archived · Original link
Document
Archived · Original link
Document
Archived · Original link
Document
Archived · Original link
Document
Archived · Original link
Document
Archived · Original link
Document
Archived · Original link
Document
Archived · Original link

Have your say

Your comment matters. Councils must consider every representation that raises material planning considerations.

Write a comment