← Arun District Council

Status

Pending House extension
Received
Not recorded
New homes
0

Full proposal

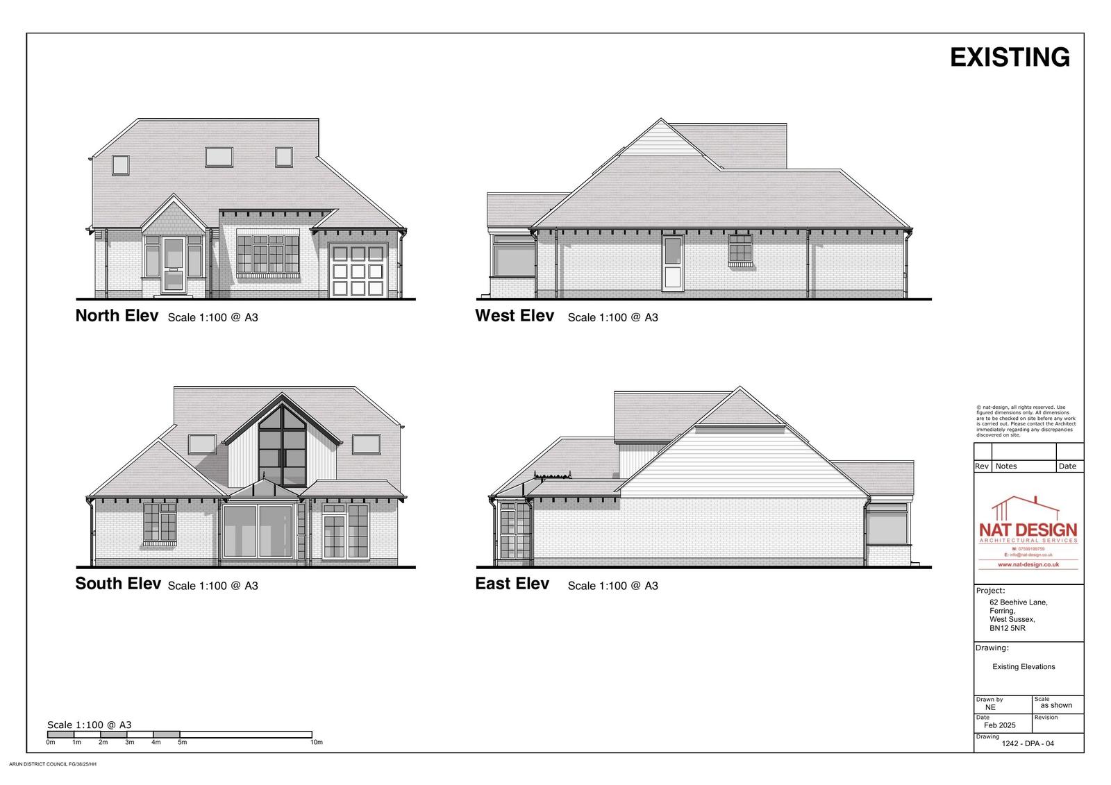
Single-storey flat roof rear extension to replace the existing sun room. New oak frame open porch to replace the existing porch. Existing rear hip to new gable end.

Documents

Document
Archived · Original link
Document
Archived · Original link
Document
Archived · Original link
Document
Archived · Original link
Document
Archived · Original link
Document
Archived · Original link
Document
Archived · Original link
Document
Archived · Original link
Document
Archived · Original link
Document
Archived · Original link
Document
Archived · Original link
Document
Archived · Original link
Document
Archived · Original link
Document
Archived · Original link
Document
Archived · Original link

Have your say

Your comment matters. Councils must consider every representation that raises material planning considerations.

Write a comment