← Arun District Council

Status

Pending House extension
Received
Not recorded
New homes
0

Full proposal

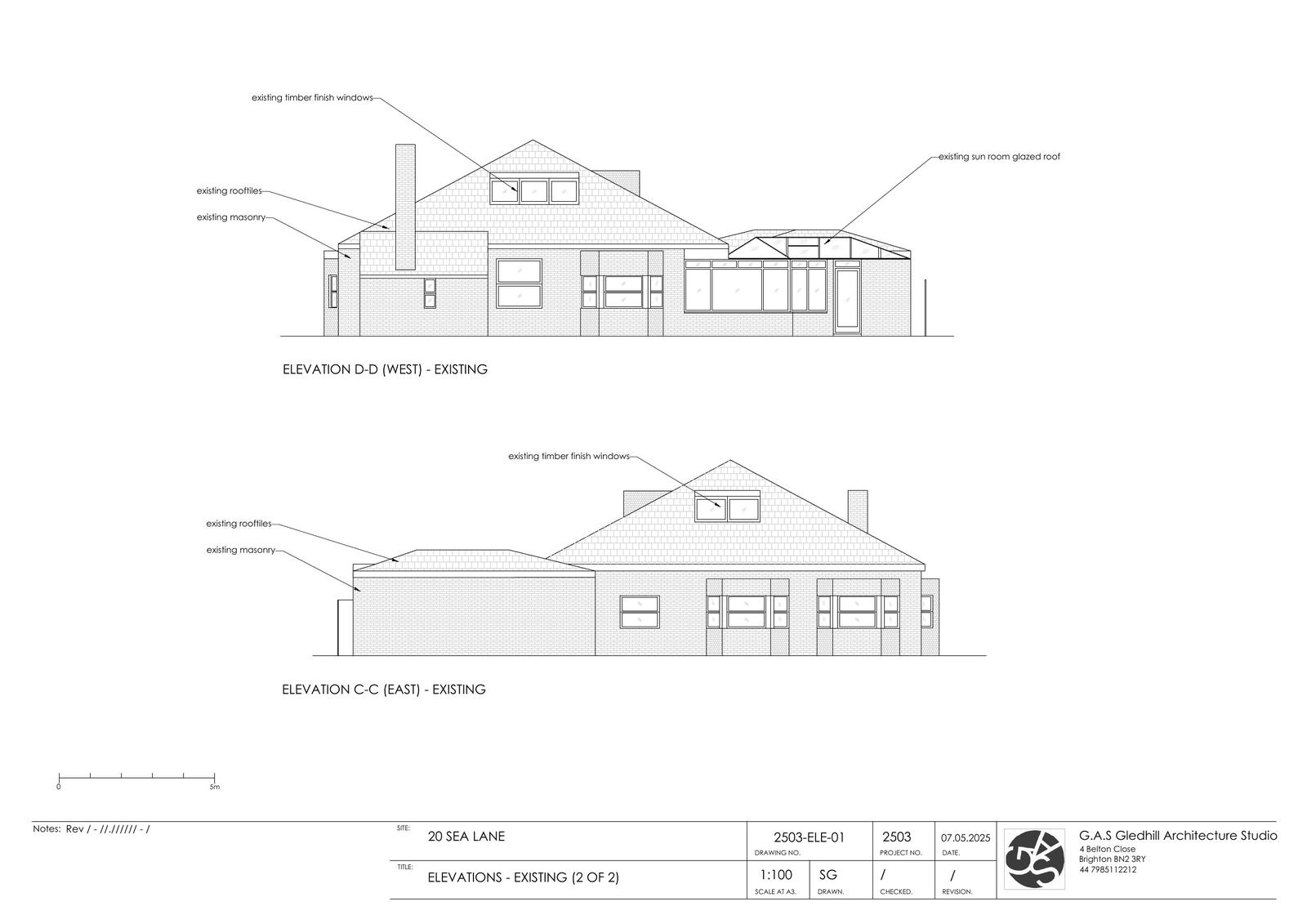
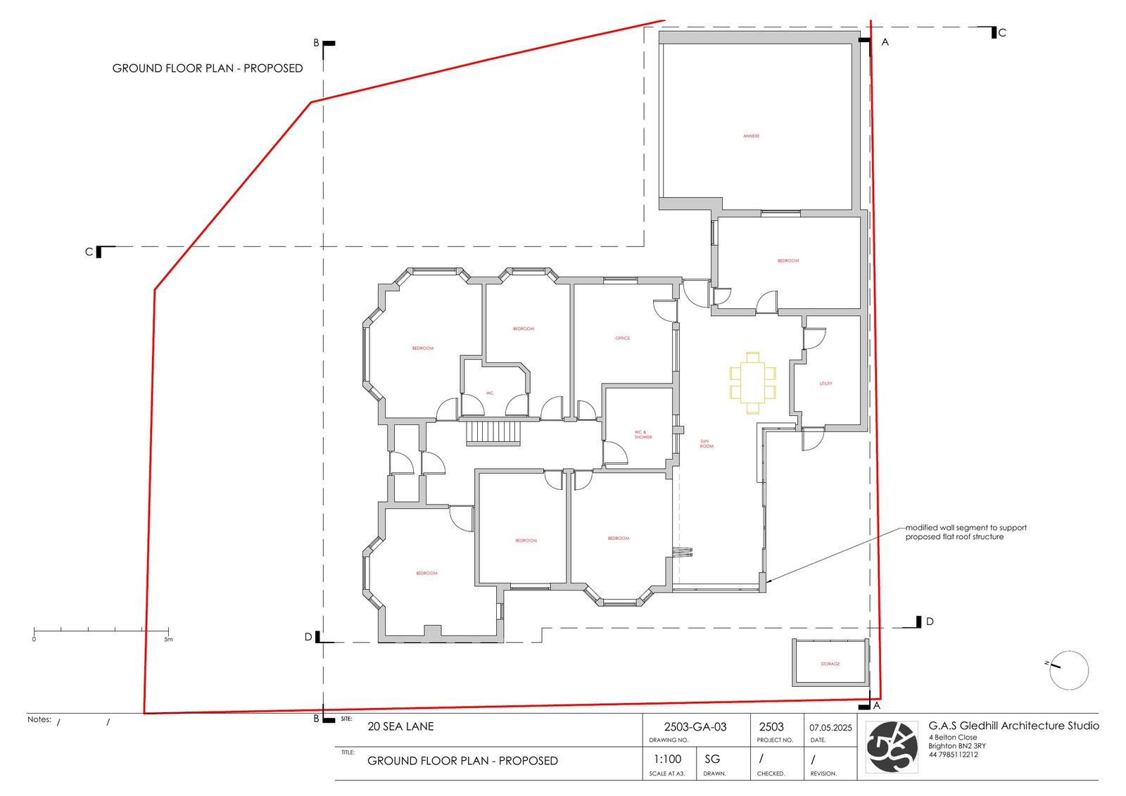
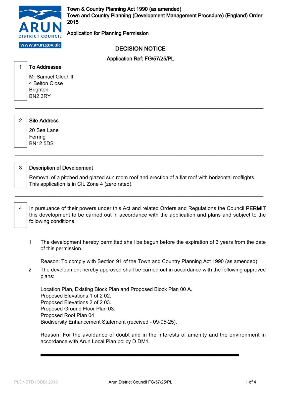
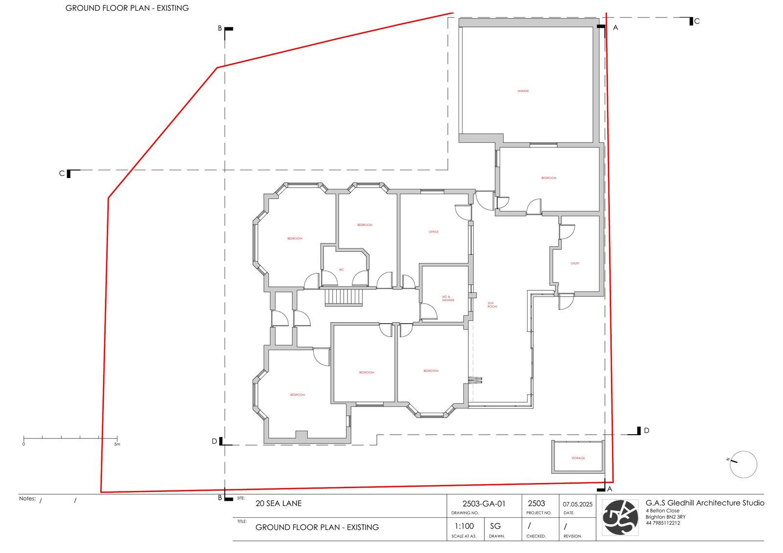
Removal of a pitched and glazed sun room roof and erection of a flat roof with horizontal rooflights. This application is in CIL Zone 4 (zero rated).

Documents

Document
Archived · Original link
Document
Archived · Original link
Document
Archived · Original link
Document
Archived · Original link
Document
Archived · Original link
Document
Archived · Original link
Document
Archived · Original link
Document
Archived · Original link
Document
Archived · Original link
Document
Archived · Original link
Document
Archived · Original link
Document
Archived · Original link
Document
Archived · Original link
Document
Archived · Original link
Document
Archived · Original link
Document
Archived · Original link
Document
Archived · Original link

Have your say

Your comment matters. Councils must consider every representation that raises material planning considerations.

Write a comment