FP/24/25/HH
Arun District Council
Status
Pending
House extension
Received
Not recorded
New homes
0
Summary
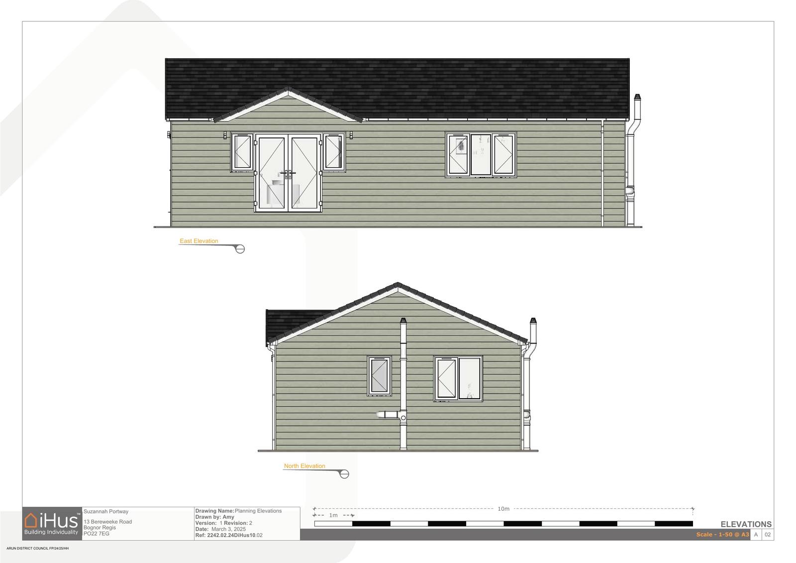
Erection of annexe for ancillary use to main dwellinghouse.
Full proposal
Erection of an annexe for ancillary use to the main dwellinghouse.
Documents
Have your say
Your comment matters. Councils must consider every representation that raises material planning considerations.