← Arun District Council

Status

Pending House extension
Received
Not recorded
New homes
0

Full proposal

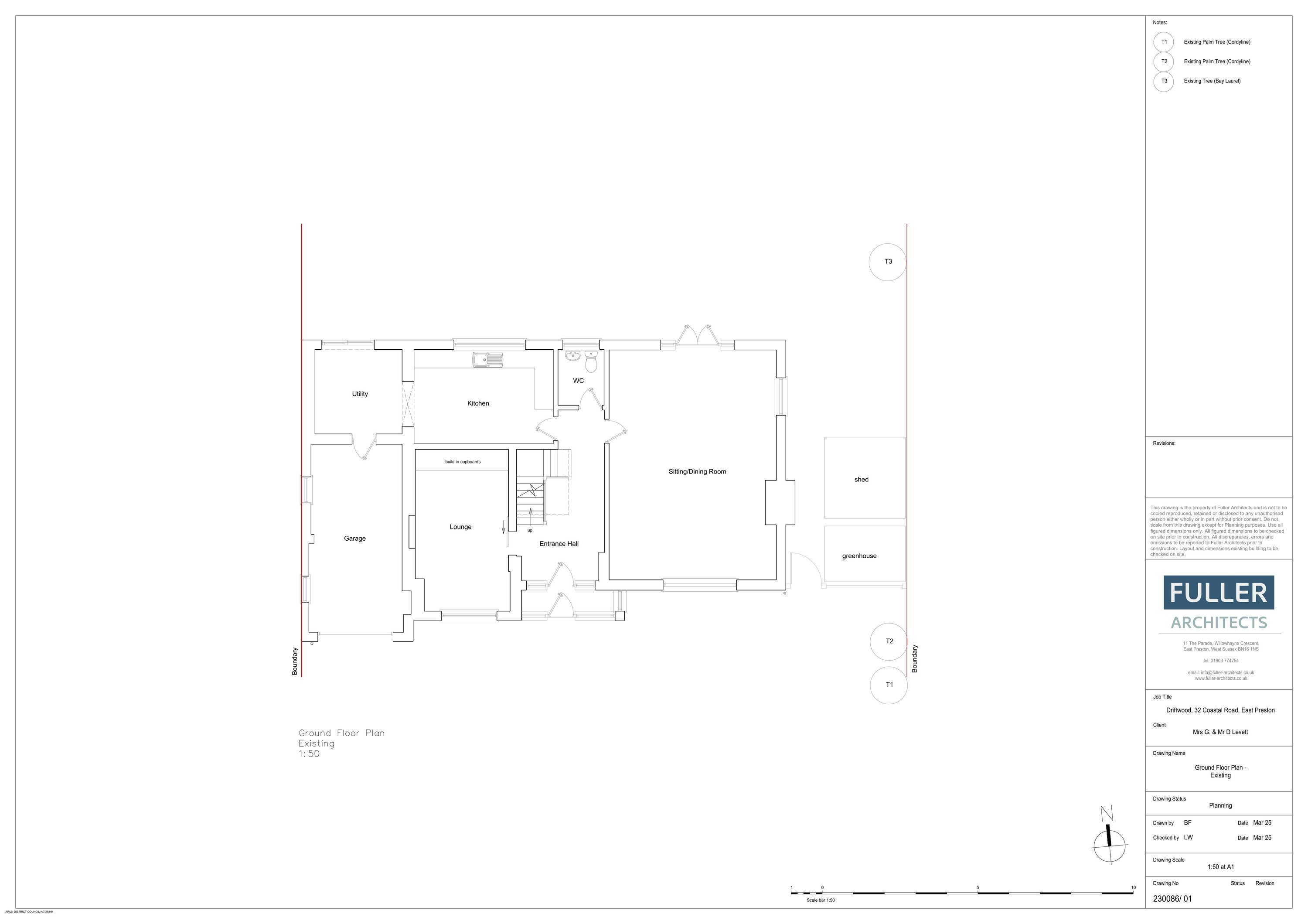
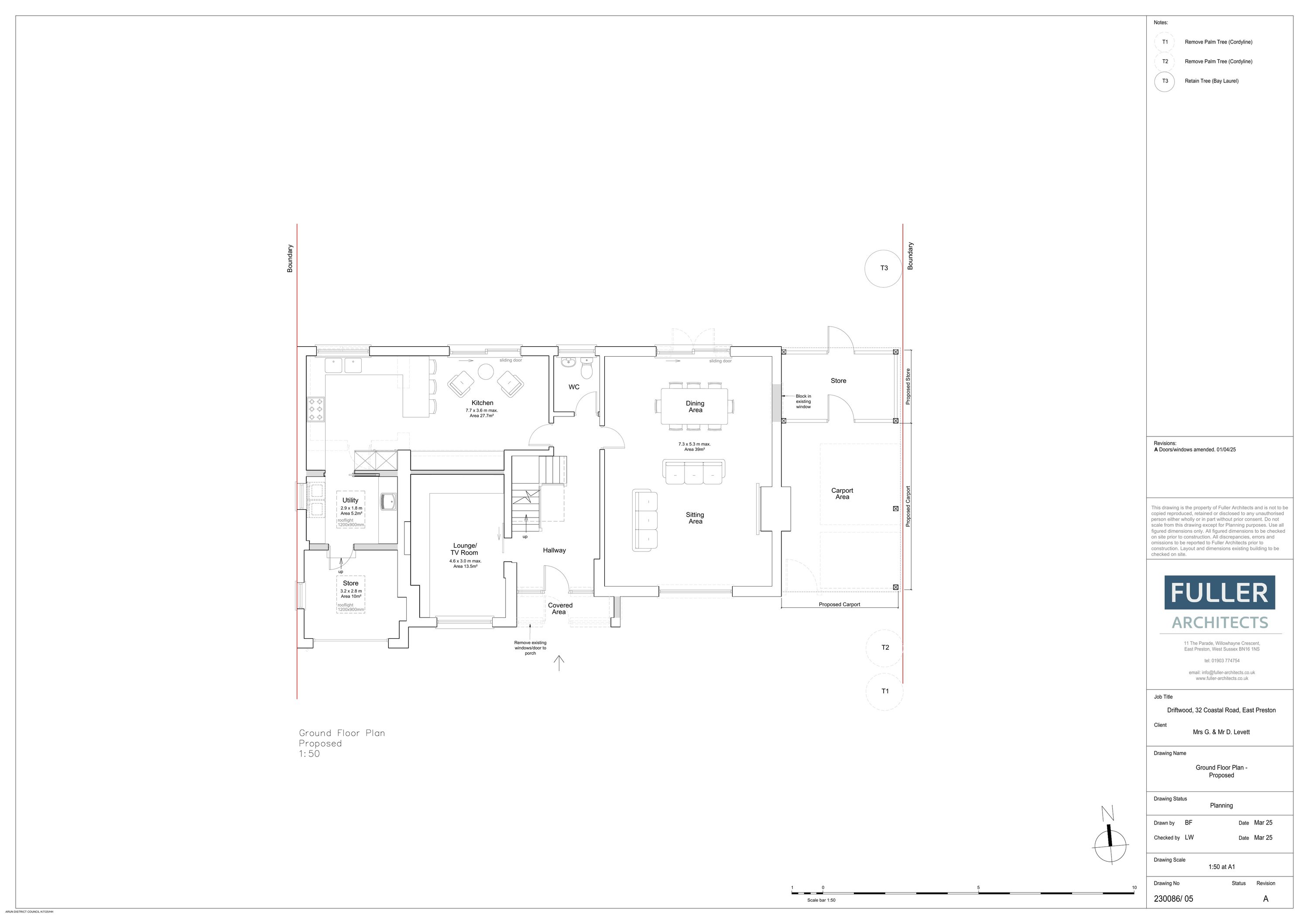
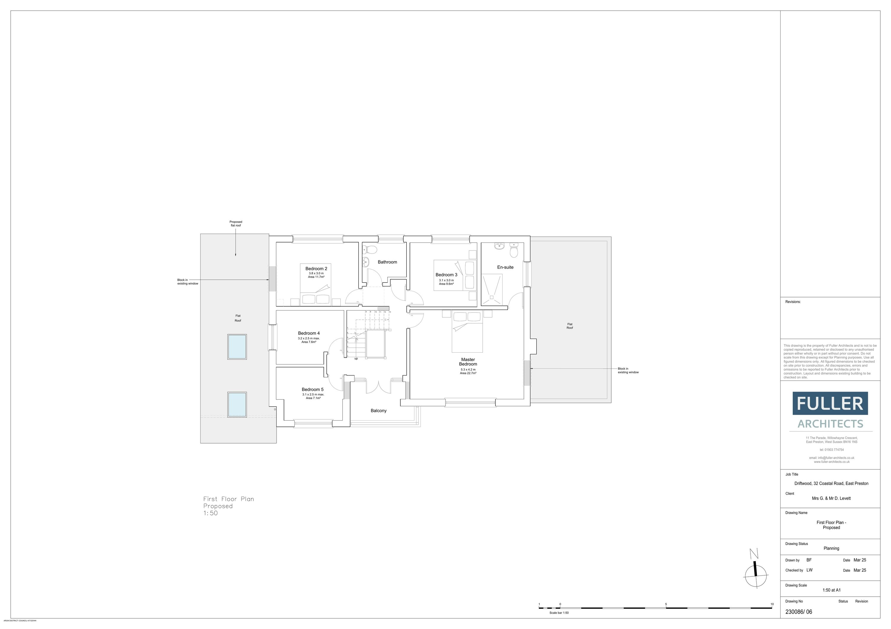
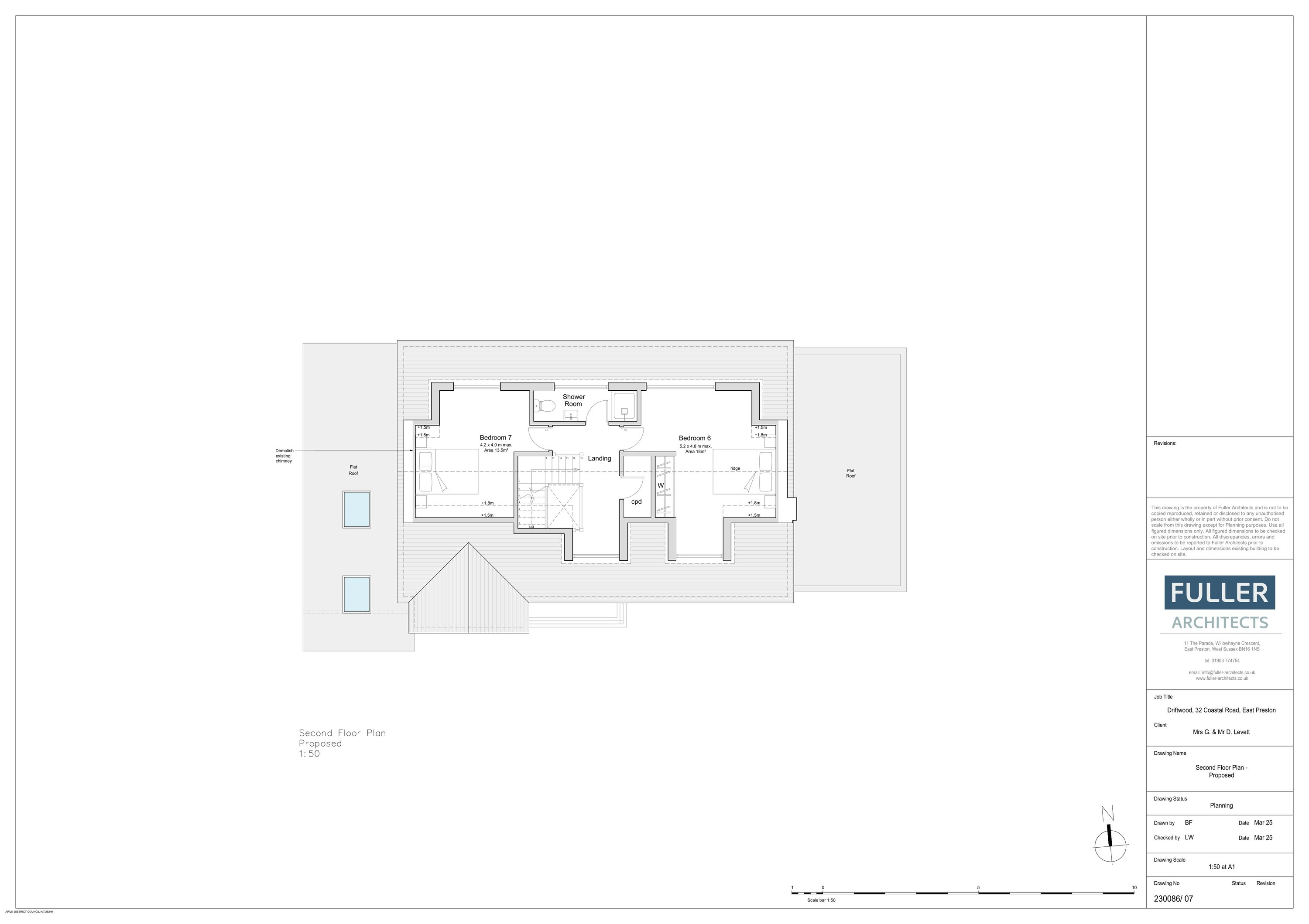
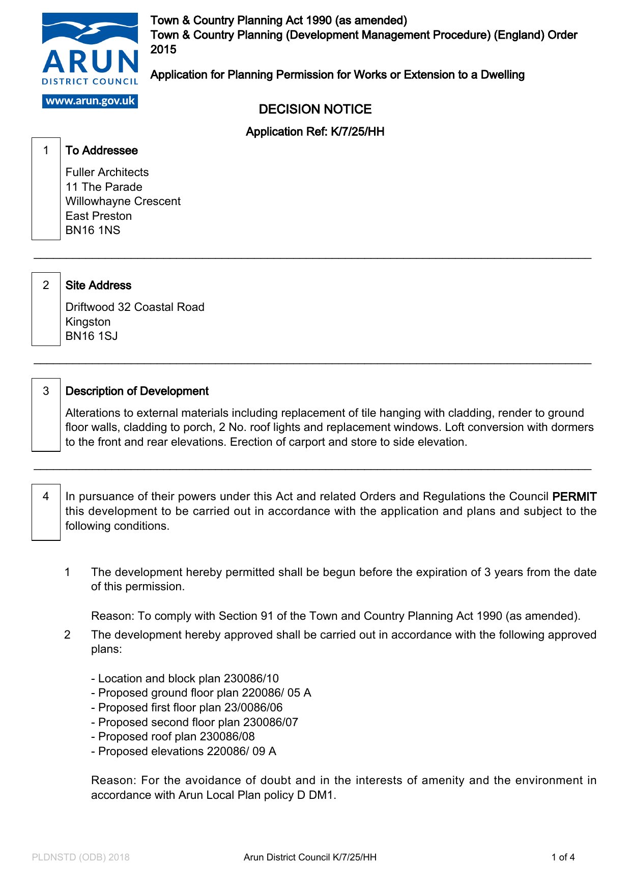
Alterations to external materials including replacement of tile hanging with cladding, render to ground floor walls, cladding to porch, 2 No. roof lights and replacement windows. Loft conversion with dormers to the front and rear elevations. Erection of carport and store to side elevation.

Documents

Document
Archived · Original link
Document
Archived · Original link
Document
Archived · Original link
Document
Archived · Original link
Document
Archived · Original link
Document
Archived · Original link
Document
Archived · Original link
Document
Archived · Original link
Document
Archived · Original link
Document
Archived · Original link
Document
Archived · Original link
Document
Archived · Original link
Document
Archived · Original link
Document
Archived · Original link
Document
Archived · Original link
Document
Archived · Original link
Document
Archived · Original link
Document
Archived · Original link
Document
Archived · Original link

Have your say

Your comment matters. Councils must consider every representation that raises material planning considerations.

Write a comment