← Arun District Council

Status

Pending House extension
Received
Not recorded
New homes
0

Full proposal

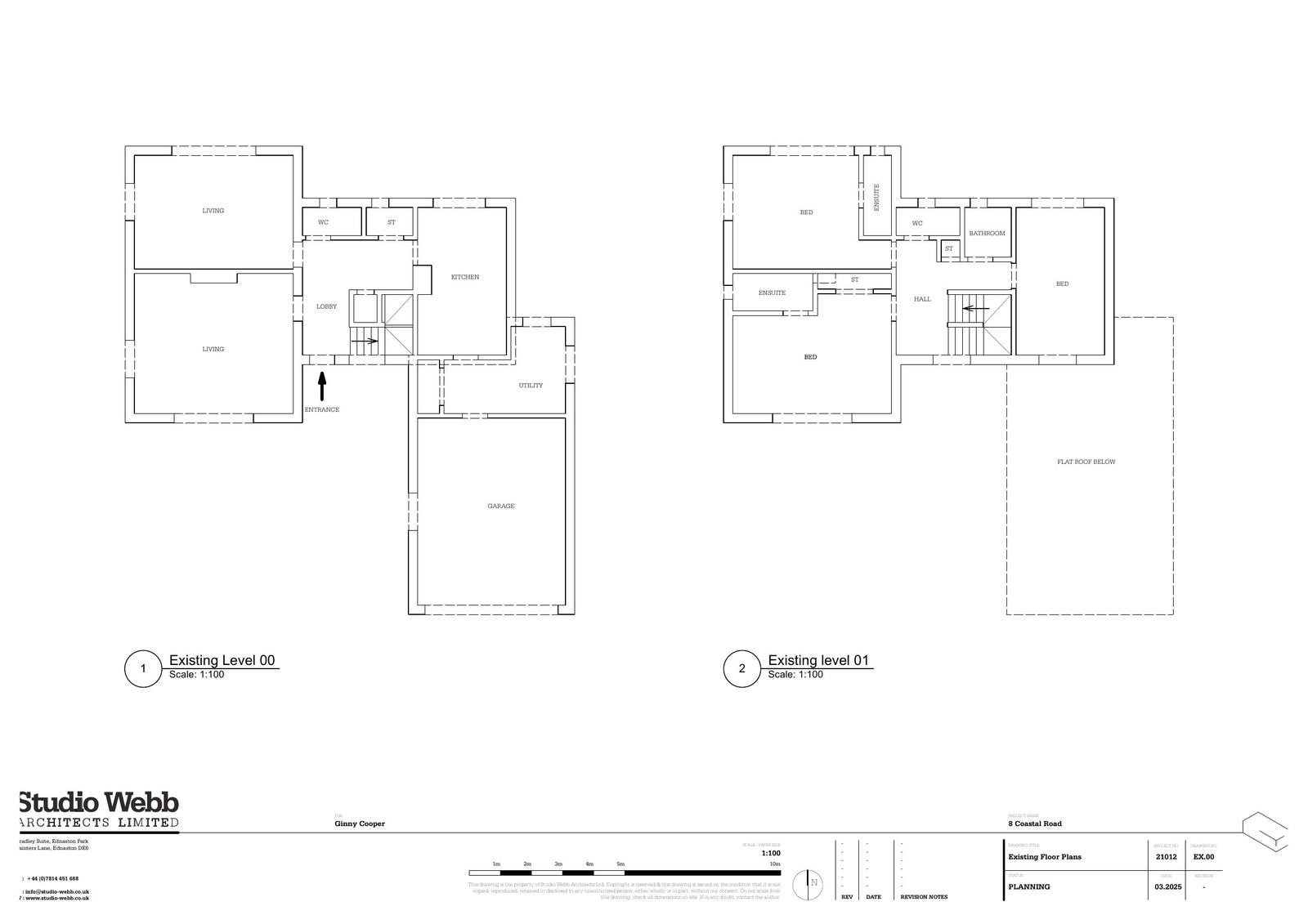
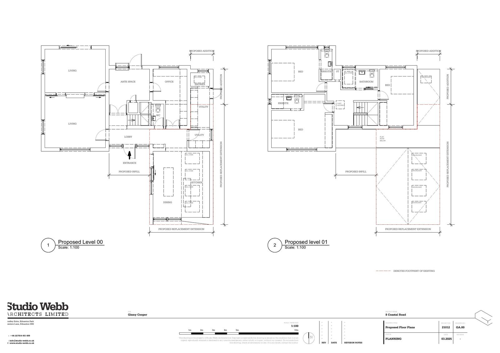
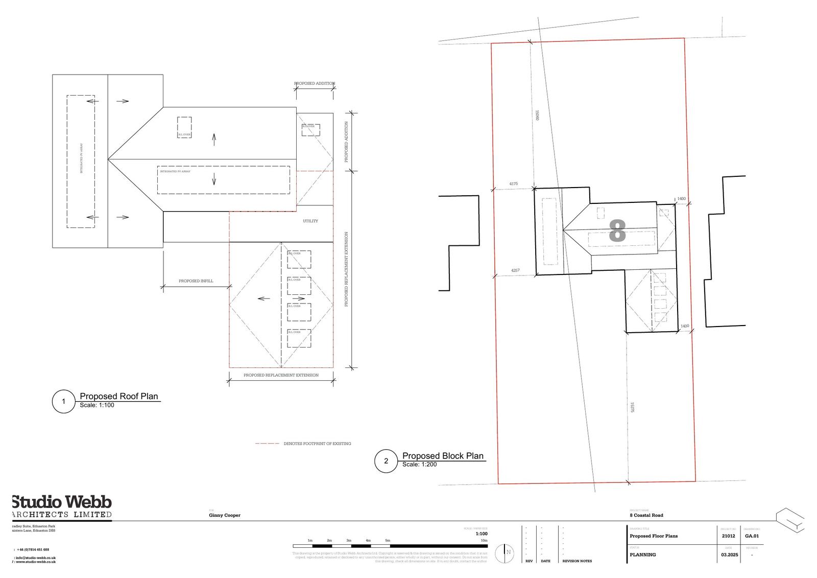
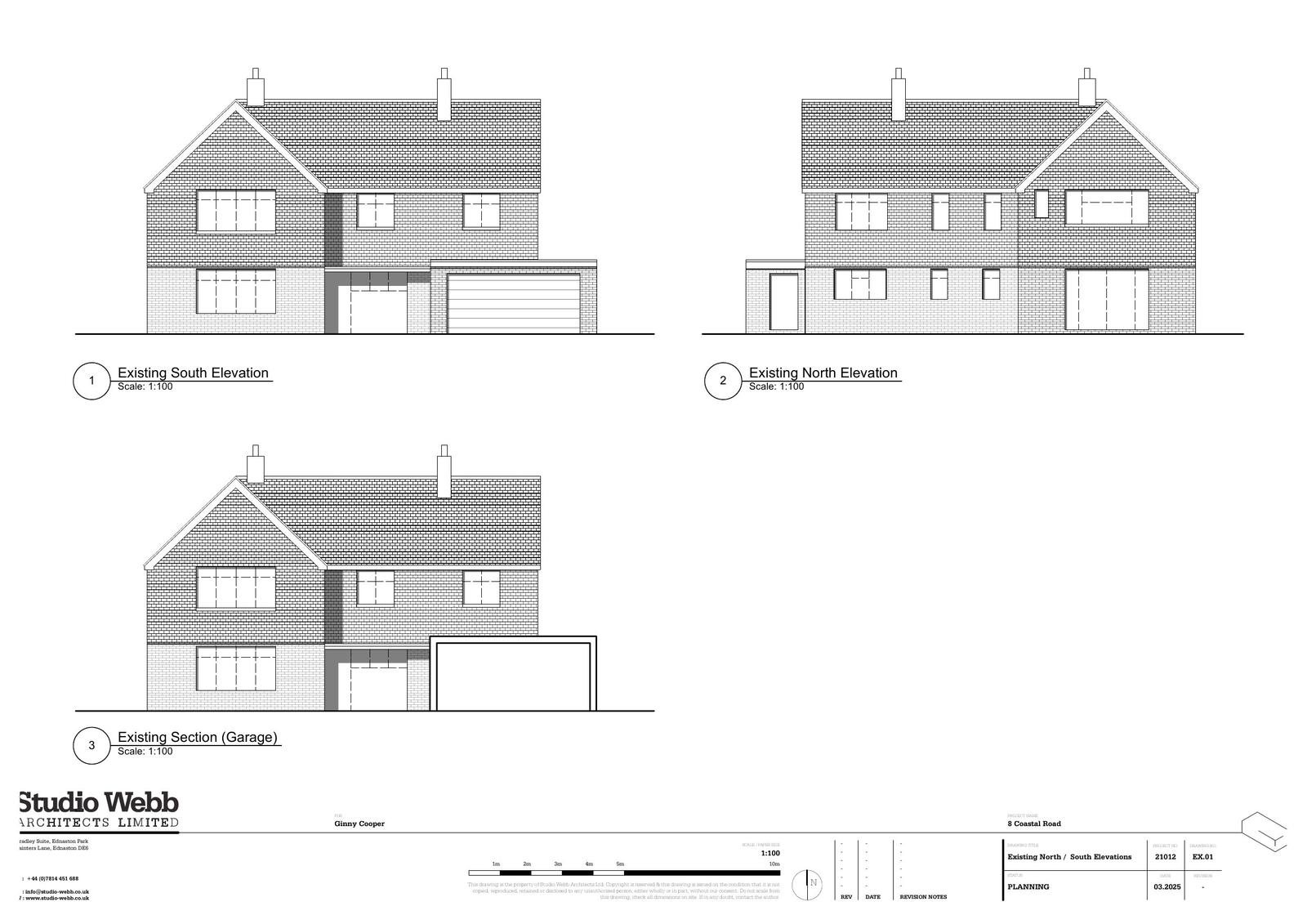
Demolition of existing garage and replacement with new extension, infill addition to front of property. Reconfiguration of fenestration to rear elevation. Replacement of existing cementitious hung tiles to facade, and installation of PV array at roof level.

Documents

Document
Archived · Original link
Document
Archived · Original link
Document
Archived · Original link
Document
Archived · Original link
Document
Archived · Original link
Document
Archived · Original link
Document
Archived · Original link
Document
Archived · Original link
Document
Archived · Original link
Document
Archived · Original link
Document
Archived · Original link
Document
Archived · Original link
Document
Archived · Original link
Document
Archived · Original link
Document
Archived · Original link
Document
Archived · Original link
Document
Archived · Original link
Document
Archived · Original link
Document
Archived · Original link
Document
Archived · Original link
Document
Archived · Original link

Have your say

Your comment matters. Councils must consider every representation that raises material planning considerations.

Write a comment