← Back to Arun District Coucil

Status

Unknown status Community facility
Received n/a
New dwellings 0

What you can do

Take Action

Make your voice heard. Authorities need to hear from people who support new homes.

Summary

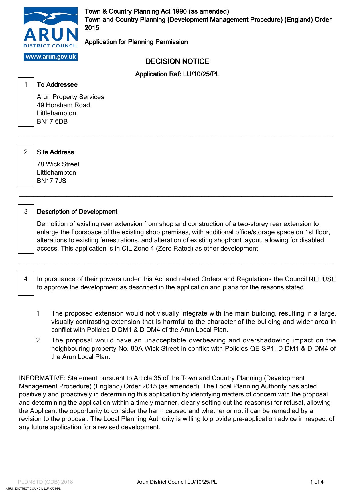
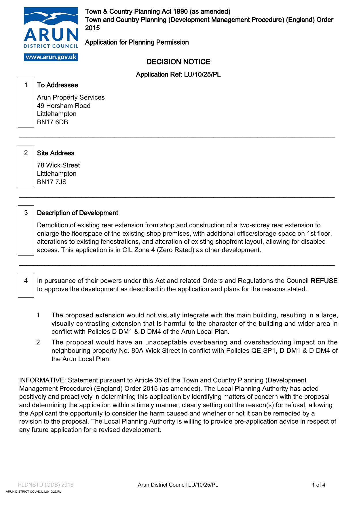
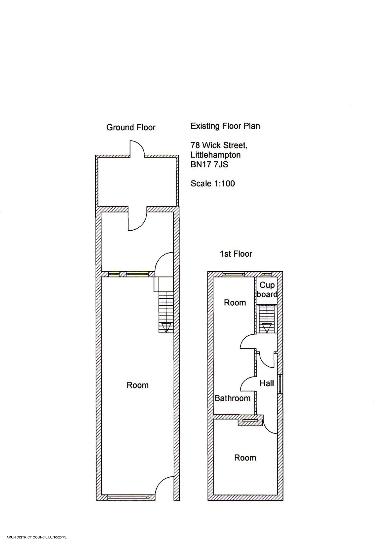
Demolish rear extension and build two-storey rear extension to enlarge shop, add first-floor office/storage and alter shopfront.

Full Proposal

Demolition of existing rear extension from shop and construction of a two-storey rear extension to enlarge the floorspace of the existing shop premises, with additional office/storage space on 1st floor, alterations to existing fenestrations, and alteration of existing shopfront layout, allowing for disabled access. This application is in CIL Zone 4 (Zero Rated) as other development.

Detail pages

Documents

Application
Document
Not downloaded · Council link
Application
Document
Not downloaded · Council link
Consultation
Document
Not downloaded · Council link
Consultation
Document
Not downloaded · Council link
Decision
Document
Not downloaded · Council link
Decision
Document
Not downloaded · Council link
Officers Report
Document
Not downloaded · Council link
Planning Correspondence
Document
Not downloaded · Council link
Planning Correspondence
Document
Not downloaded · Council link
Planning Correspondence
Document
Not downloaded · Council link
Plans
Document
Not downloaded · Council link
Plans
Document
Not downloaded · Council link
Plans
Document
Not downloaded · Council link
Plans
Document
Not downloaded · Council link
Plans
Document
Not downloaded · Council link
Plans
Document
Not downloaded · Council link
Plans
Document
Not downloaded · Council link
Substitute Plan
Document
Not downloaded · Council link
Superceded Document
Document
Not downloaded · Council link
Superceded Document
Document
Not downloaded · Council link
Systems Correspondence
Document
Not downloaded · Council link
Systems Correspondence
Document
Not downloaded · Council link
Systems Correspondence
Document
Not downloaded · Council link