← Arun District Council

Status

Pending Change of use
Received
Not recorded
New homes
6

Full proposal

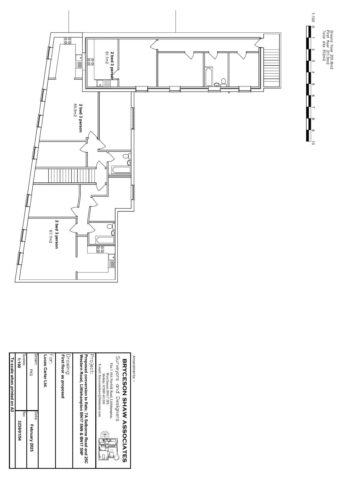
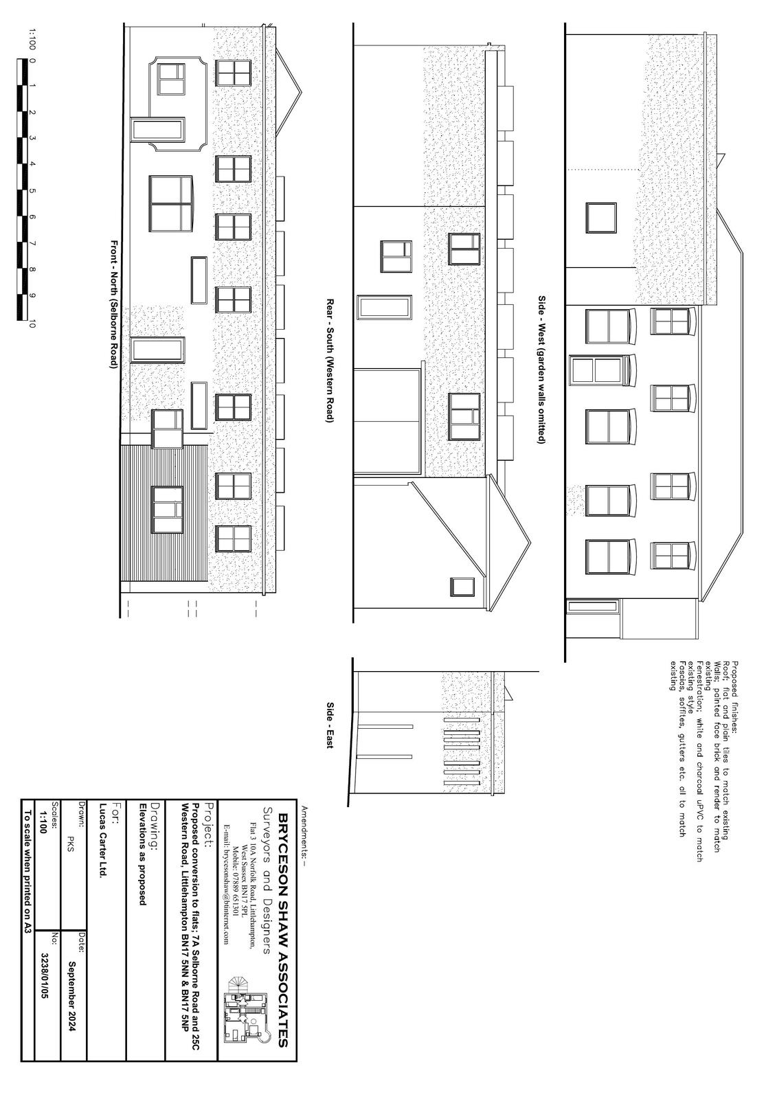
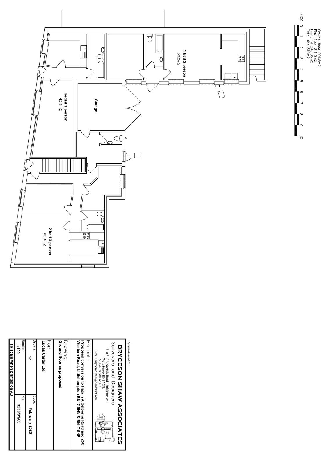
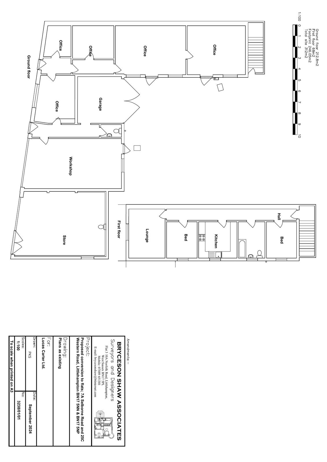
Change of use from light industrial with 1 No flat to 7 No flats, first floor extension and solar pv panels on the flat roof. This application affects the setting of listed buildings, affects the character and appearance of the Littlehampton Sea Front Conservation Area and is in CIL Zone 4 (Zero Rated) as flats.

Documents

Document
Archived · Original link
Document
Archived · Original link
Document
Archived · Original link
Document
Archived · Original link
Document
Archived · Original link
Document
Archived · Original link
Document
Archived · Original link
Document
Archived · Original link
Document
Archived · Original link
Document
Archived · Original link
Document
Archived · Original link
Document
Archived · Original link
Document
Archived · Original link
Document
Archived · Original link
Document
Archived · Original link
Document
Archived · Original link

Have your say

Your comment matters. Councils must consider every representation that raises material planning considerations.

Write a comment