← Arun District Council

Status

Pending House extension
Received
Not recorded
New homes
0

Full proposal

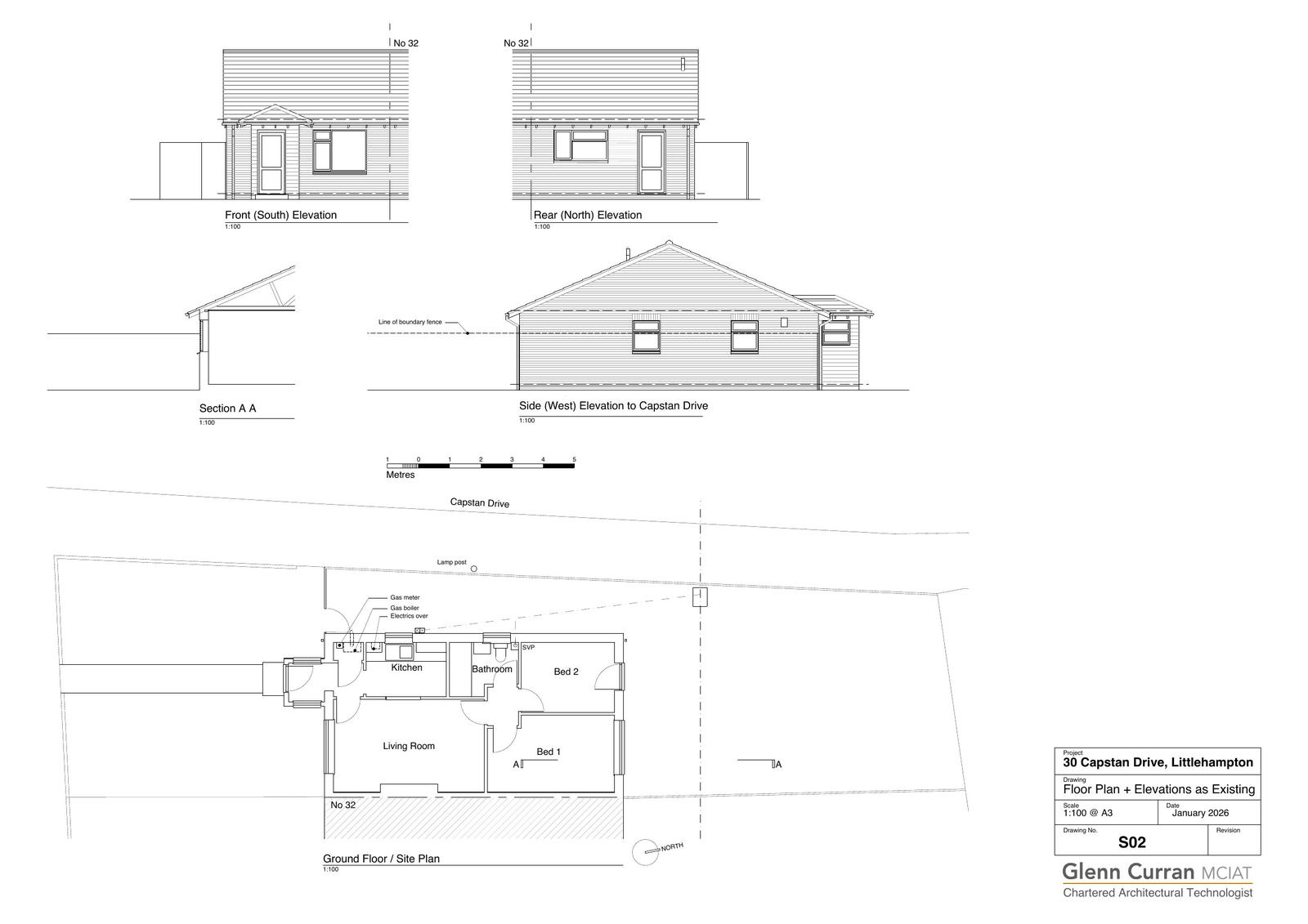
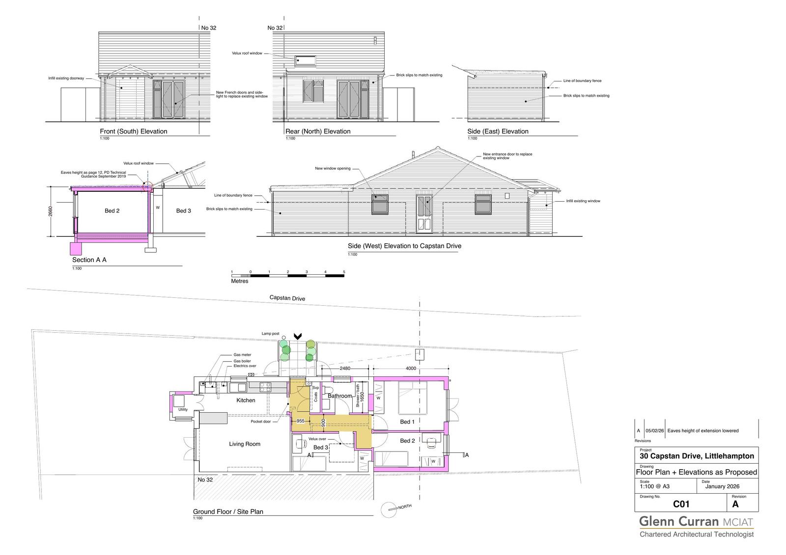
Notification under extended permitted development rights for a single storey rear extension with a flat roof, extending 4m beyond the rear wall of the original dwelling house, with a maximum height of 2.76m and an eaves height of 2.66m.

Documents

Document
Archived · Original link
Document
Archived · Original link
Document
Archived · Original link
Document
Archived · Original link
Document
Archived · Original link
Document
Archived · Original link
Document
Archived · Original link
Document
Archived · Original link

Have your say

Your comment matters. Councils must consider every representation that raises material planning considerations.

Write a comment