← Arun District Council

Status

Pending Commercial
Received
Not recorded
New homes
0

Full proposal

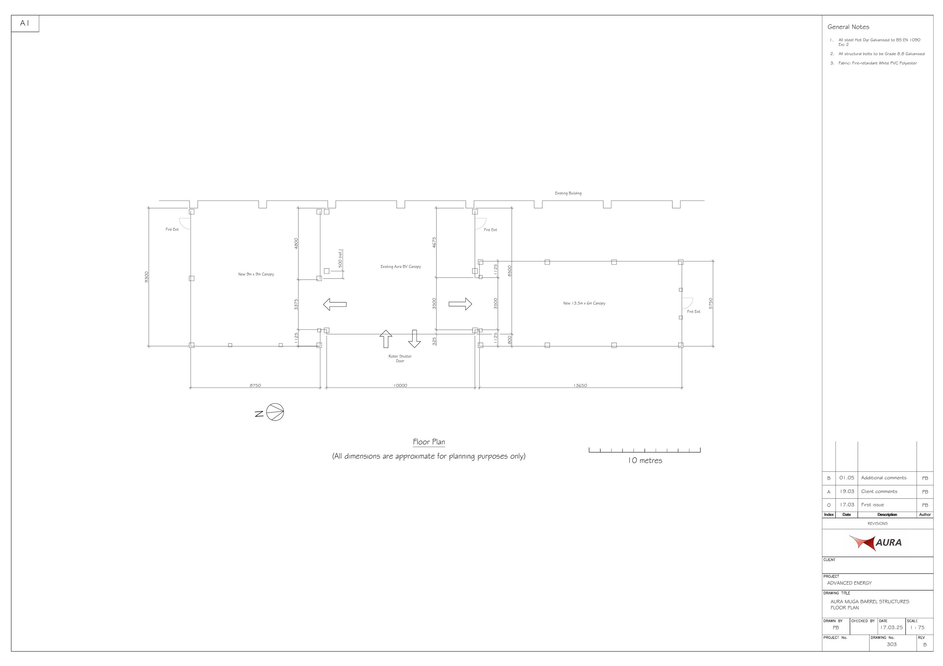
Retention of and elevational alterations to existing canopy, with erection of 2 No. extensions affixed to the existing canopy at east elevation of service yard to main building. This application is in CIL Zone 2 (Zero Rated) as other development.

Documents

Document
Archived · Original link
Document
Archived · Original link
Document
Archived · Original link
Document
Archived · Original link
Document
Archived · Original link
Document
Archived · Original link
Document
Archived · Original link
Document
Archived · Original link
Document
Archived · Original link
Document
Archived · Original link
Document
Archived · Original link
Document
Archived · Original link
Document
Archived · Original link
Document
Archived · Original link
Document
Archived · Original link
Document
Archived · Original link

Have your say

Your comment matters. Councils must consider every representation that raises material planning considerations.

Write a comment