← Arun District Council

Status

Pending House extension
Received
Not recorded
New homes
0

Full proposal

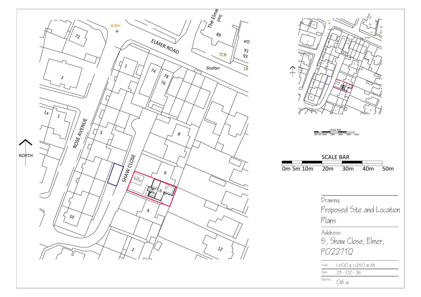
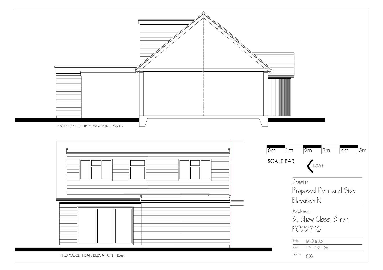
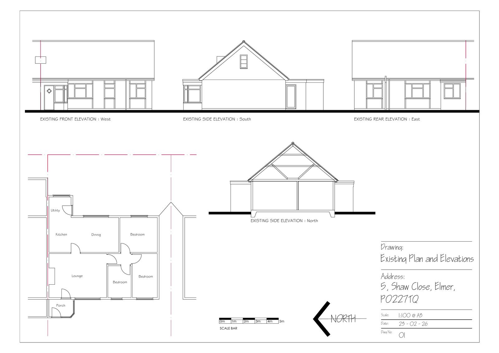
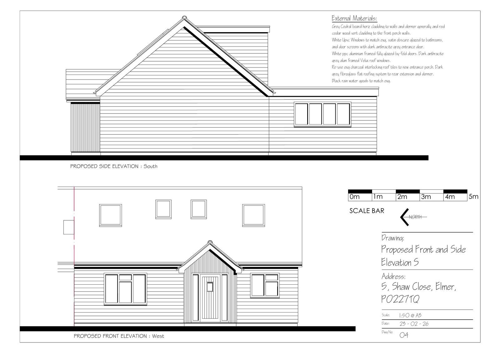
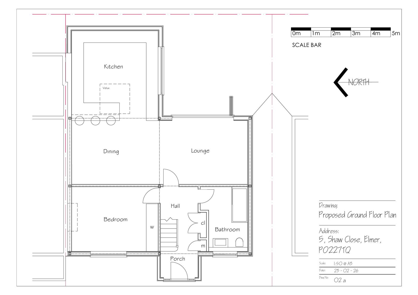
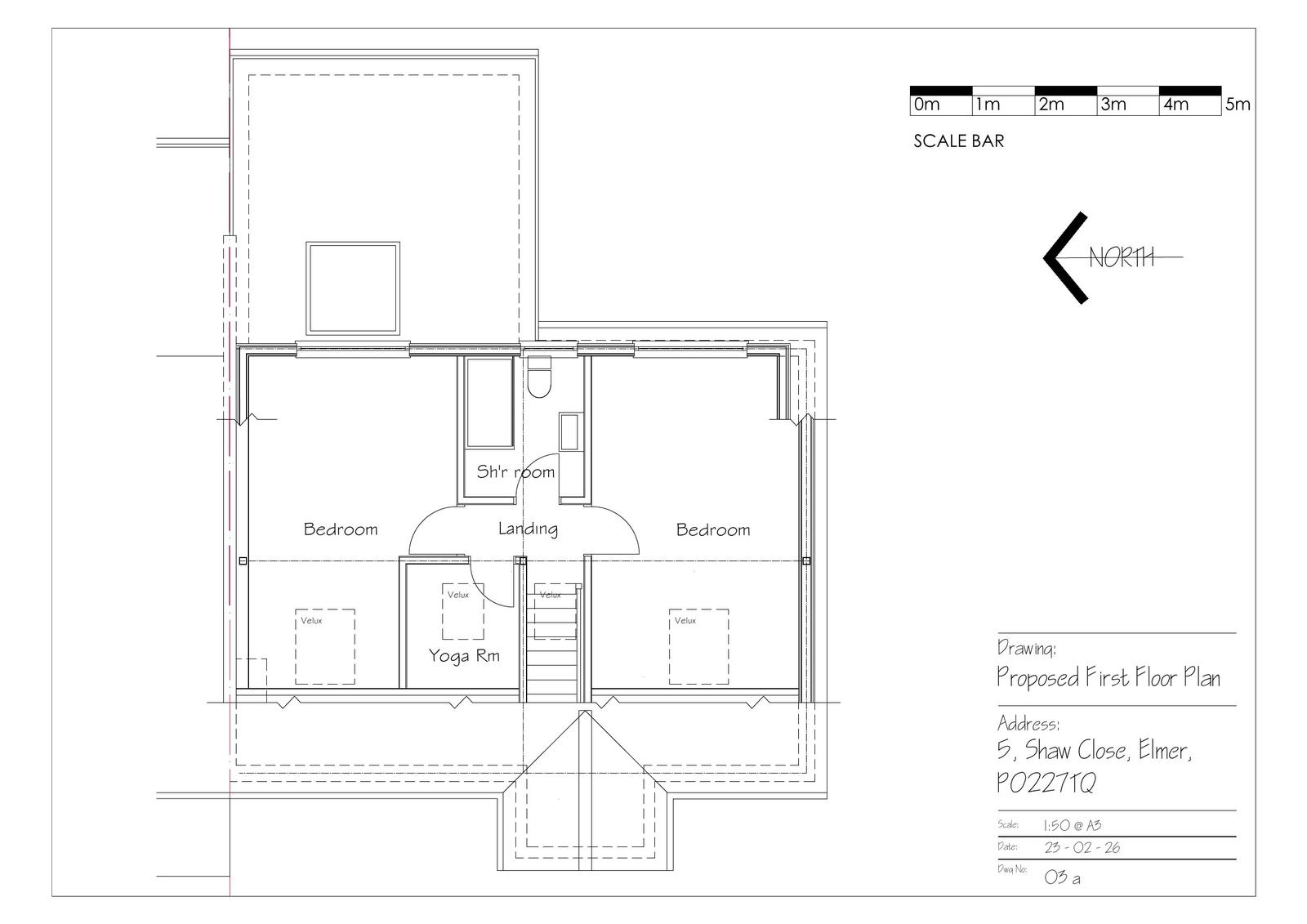
Proposed single storey extensions to front and rear, internal alterations, roof extension and loft conversion to semi detached bungalow.

Documents

Document
Archived · Original link
Document
Archived · Original link
Document
Archived · Original link
Document
Archived · Original link
Document
Archived · Original link
Document
Archived · Original link
Document
Archived · Original link
Document
Archived · Original link
Document
Archived · Original link
Document
Archived · Original link
Document
Archived · Original link
Document
Archived · Original link
Document
Archived · Original link
Document
Archived · Original link

Have your say

Your comment matters. Councils must consider every representation that raises material planning considerations.

Write a comment