← Ashfield District Council

Status

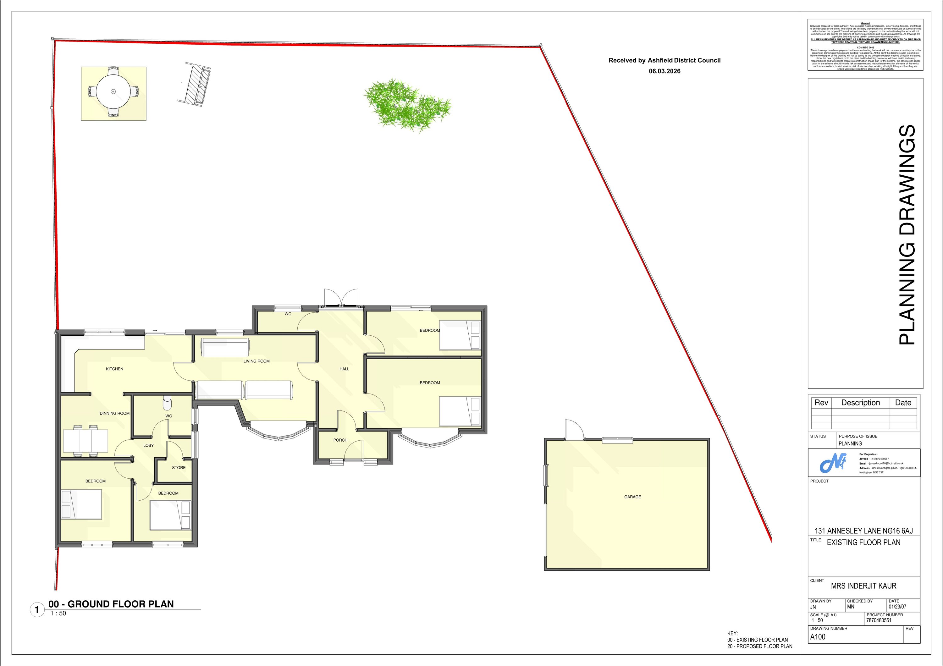
PENDING - PENDING House extension
Received
Not recorded
New homes
0

Full proposal

Front, rear and side extension, and change of use of existing garage into annexe

Have your say

Your comment matters. Councils must consider every representation that raises material planning considerations.

Write a comment