← Ashford Borough Council

Status

Pending Change of use
Received
Not recorded
New homes
1

Full proposal

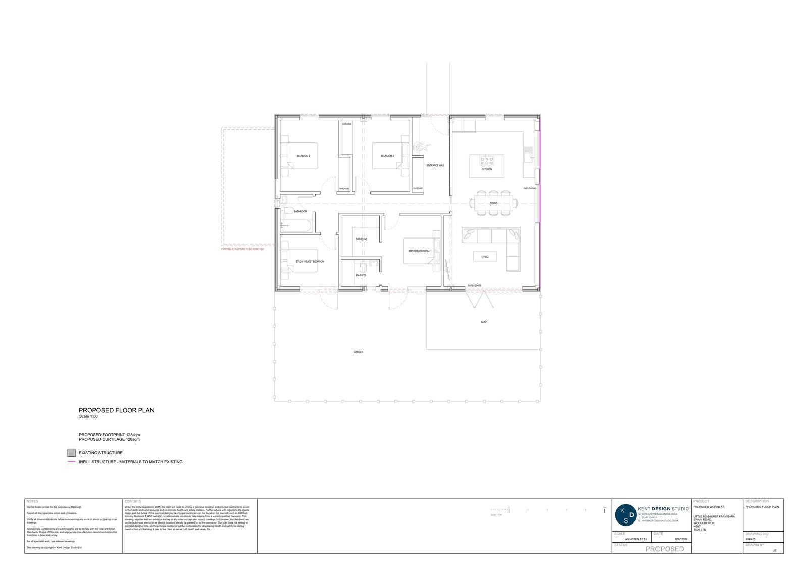
Application Reference NOT/2025/0105 Site Address Little Robhurst Farm, Susans Hill, Woodchurch, TN26 3TB Proposal Prior Approval for the change of use of an agricultural building and land within its curtilage to a single-storey dwelling house and associated operational development including demolition of an existing structure Date Valid 17/1/2025 Application Status Decision Made Decision Prior Approval Refused

Documents

Uncategorised
Archived · Original link
Uncategorised
Archived · Original link
Uncategorised
Archived · Original link
Uncategorised
Archived · Original link
Uncategorised
Archived · Original link
Uncategorised
Archived · Original link
Uncategorised
Archived · Original link
Uncategorised
Archived · Original link
Uncategorised
Archived · Original link
Uncategorised
Archived · Original link
Uncategorised
Archived · Original link
Uncategorised
Archived · Original link
Uncategorised
Archived · Original link
Uncategorised
Archived · Original link

Have your say

Your comment matters. Councils must consider every representation that raises material planning considerations.

Write a comment