← Ashford Borough Council

Status

Pending Change of use
Received
Not recorded
New homes
6

Full proposal

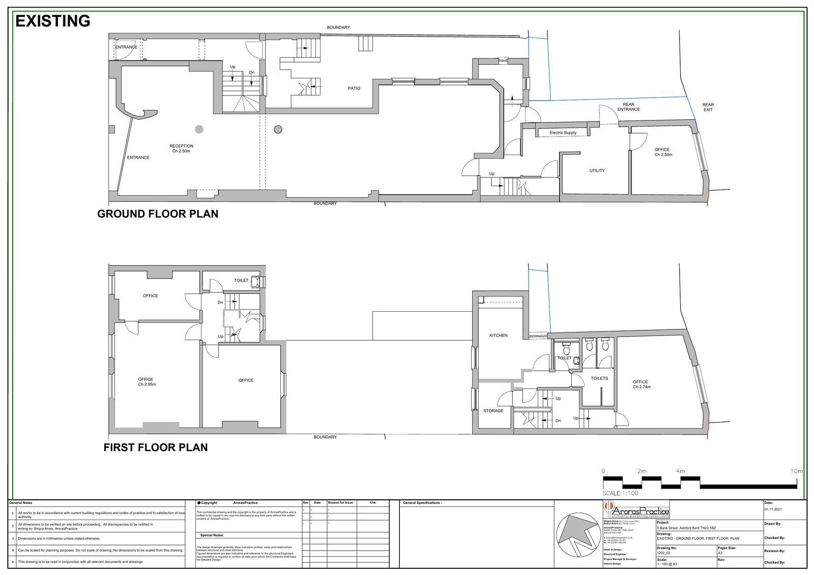
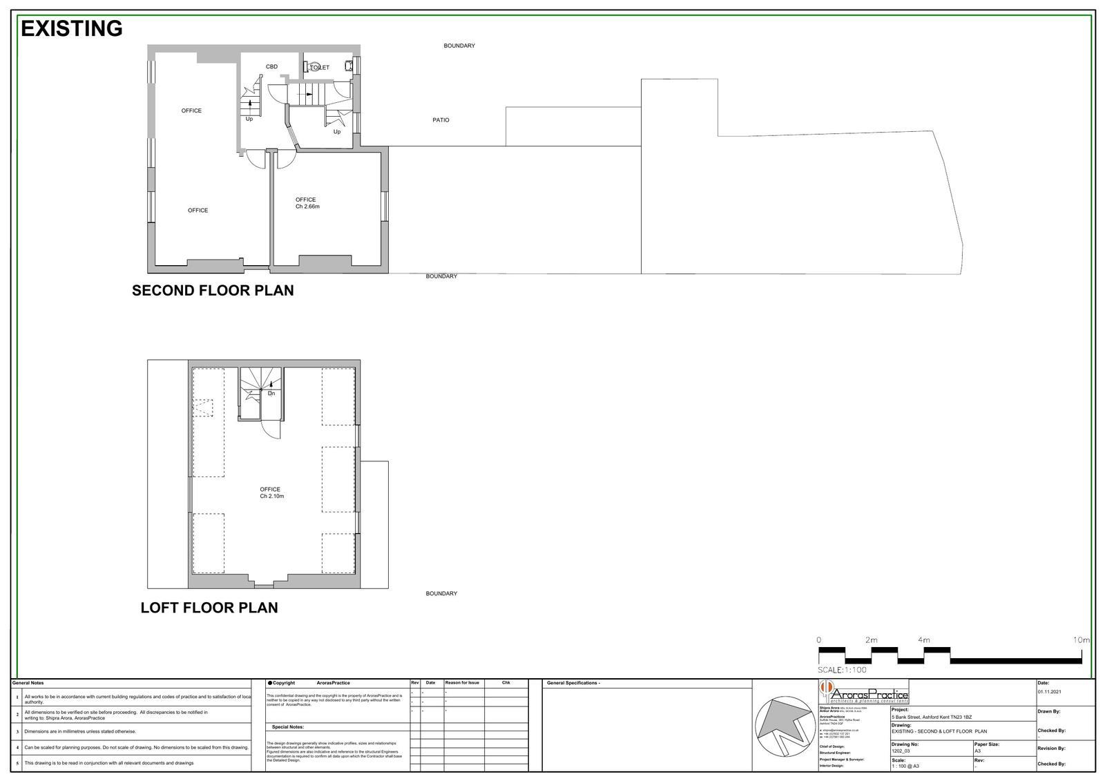
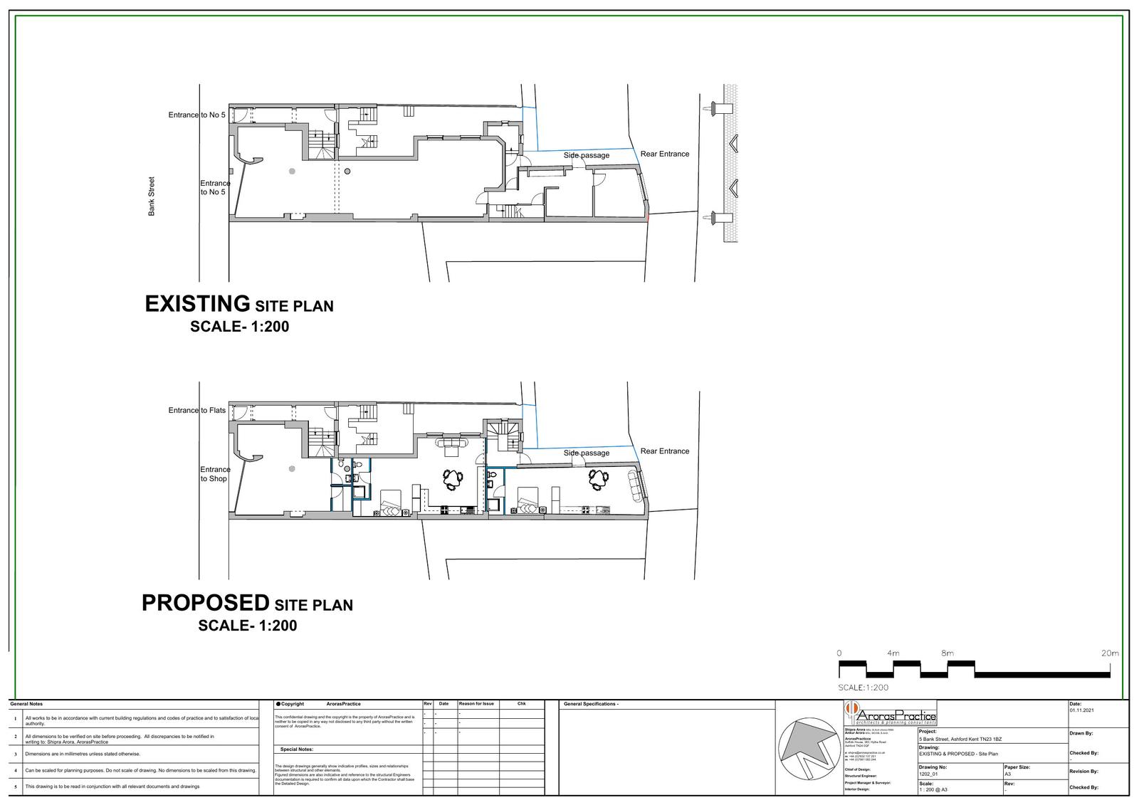
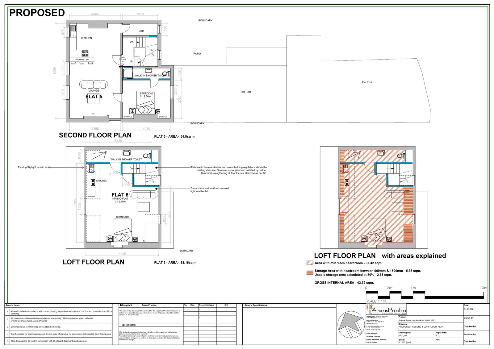
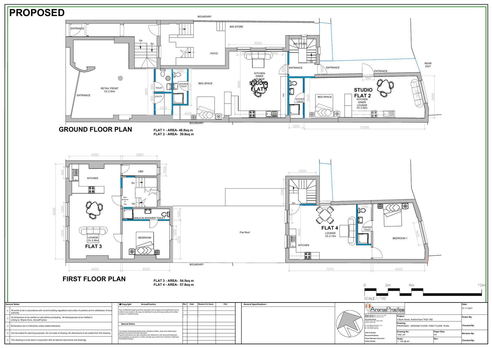
Application Reference NOT/2025/0757 Site Address 5 Bank Street, Ashford, TN23 1BZ Proposal Prior Approval for the change of use from class E to residential with conversion to 6no flats with retention of existing retail shop at ground floor. Date Valid 15/4/2025 Application Status Decision Made Decision Withdrawn

Documents

Uncategorised
Archived · Original link
Uncategorised
Archived · Original link
Uncategorised
Archived · Original link
Uncategorised
Archived · Original link
Uncategorised
Archived · Original link
Uncategorised
Archived · Original link
Uncategorised
Archived · Original link
Uncategorised
Archived · Original link
Uncategorised
Archived · Original link
Uncategorised
Archived · Original link
Uncategorised
Archived · Original link
Uncategorised
Archived · Original link
Uncategorised
Archived · Original link
Uncategorised
Archived · Original link
Uncategorised
Archived · Original link

Have your say

Your comment matters. Councils must consider every representation that raises material planning considerations.

Write a comment