← Ashford Borough Council

Status

Pending Change of use
Received
Not recorded
New homes
5

Full proposal

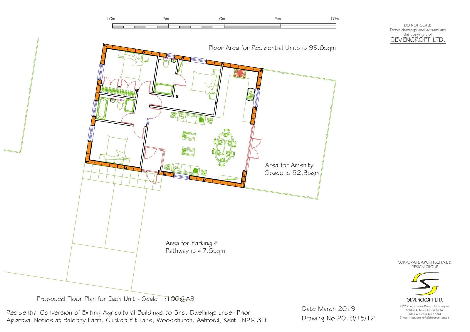
Application Reference NOT/2025/0943 Site Address Balcony Farm, Cuckoo Pitt Lane, Woodchurch, TN26 3TF Proposal Prior approval for the change of use of agricultural buildings and land within their curtilage to 5no dwelling houses and associated operational development. Central agricultural building to be demolished. Date Valid 16/5/2025 Application Status Decision Made Decision Prior Approval Refused

Documents

Uncategorised
Archived · Original link
Uncategorised
Archived · Original link
Uncategorised
Archived · Original link
Uncategorised
Archived · Original link
Uncategorised
Archived · Original link
Uncategorised
Archived · Original link
Uncategorised
Archived · Original link
Uncategorised
Archived · Original link
Uncategorised
Archived · Original link
Uncategorised
Archived · Original link
Uncategorised
Archived · Original link
Uncategorised
Archived · Original link
Uncategorised
Archived · Original link
Uncategorised
Archived · Original link
Uncategorised
Archived · Original link
Uncategorised
Archived · Original link

Have your say

Your comment matters. Councils must consider every representation that raises material planning considerations.

Write a comment