← Ashford Borough Council

Status

Pending Change of use
Received
Not recorded
New homes
1

Full proposal

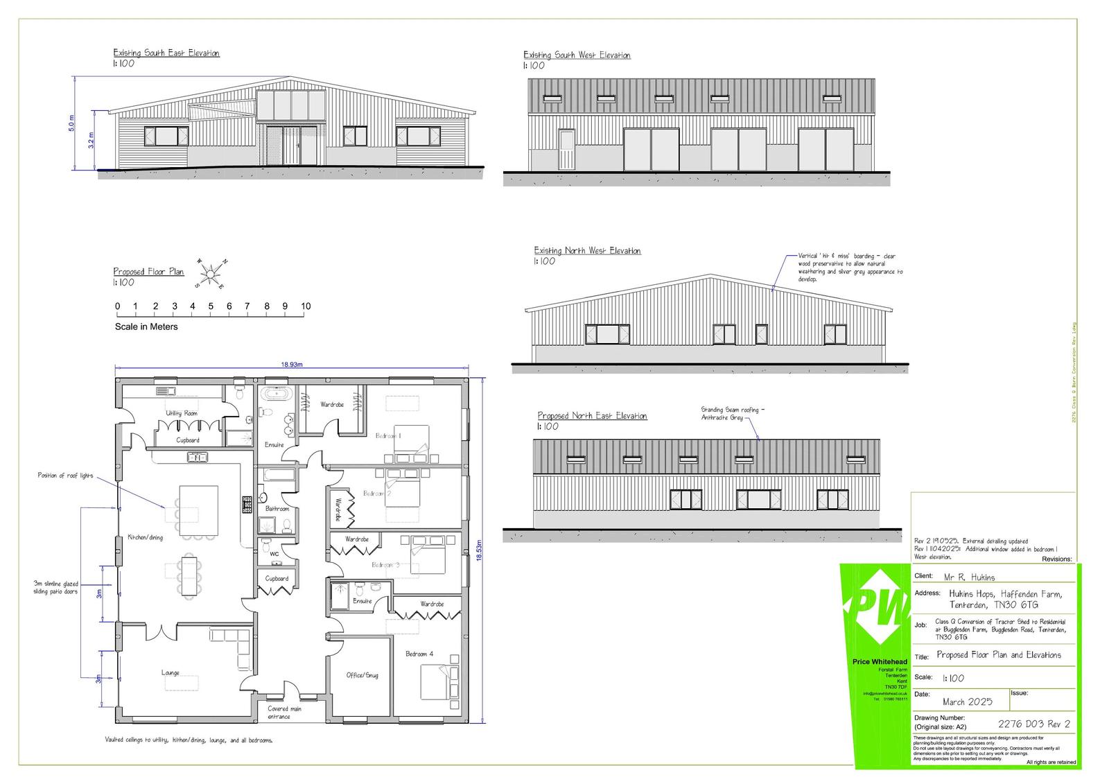
Application Reference NOT/2025/0956 Site Address Barn 3 to the West of Bugglesden Barn, Bugglesden Road, Tenterden, TN30 6TG Proposal Prior approval for the change of use and conversion of an agricultural building and land within its curtilage to a dwelling house and associated operational development. Date Valid 20/5/2025 Application Status Decision Made Decision Prior Approval Is Given

Documents

Uncategorised
Archived · Original link
Uncategorised
Archived · Original link
Uncategorised
Archived · Original link
Uncategorised
Archived · Original link
Uncategorised
Archived · Original link
Uncategorised
Archived · Original link
Uncategorised
Archived · Original link
Uncategorised
Archived · Original link
Uncategorised
Archived · Original link
Uncategorised
Archived · Original link
Uncategorised
Archived · Original link
Uncategorised
Archived · Original link

Have your say

Your comment matters. Councils must consider every representation that raises material planning considerations.

Write a comment