← Ashford Borough Council

Status

Pending House extension
Received
Not recorded
New homes
0

Full proposal

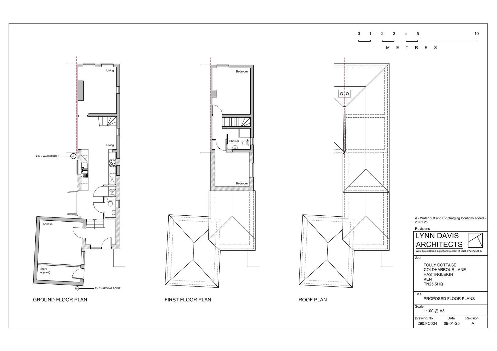
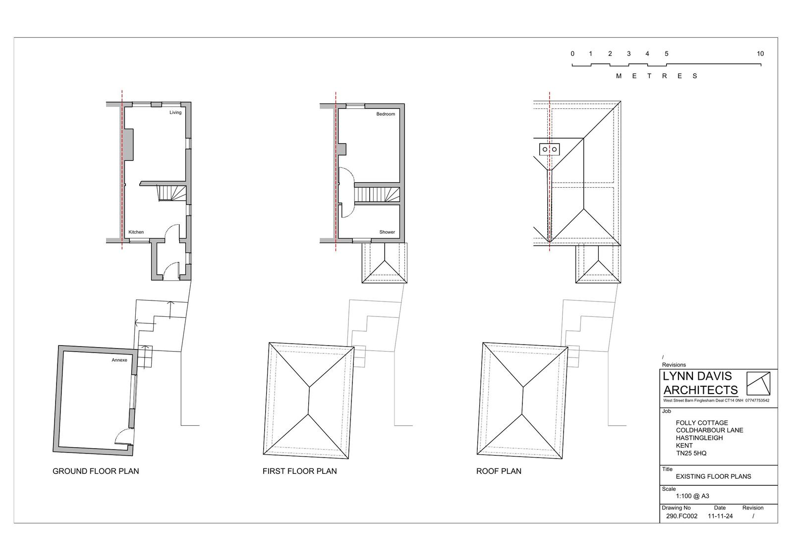
Application Reference PA/2025/0075 Site Address Folly Cottage, The Street, Hastingleigh, TN25 5HQ Proposal Part single/part two-storey front extension creating a link with annexe. Alterations to existing annexe to create a store and changes to fenestration. Date Valid 28/1/2025 Application Status Decision Made Decision Refuse

Documents

Uncategorised
Archived · Original link
Uncategorised
Archived · Original link
Uncategorised
Archived · Original link
Uncategorised
Archived · Original link
Uncategorised
Archived · Original link
Uncategorised
Archived · Original link
Uncategorised
Archived · Original link
Uncategorised
Archived · Original link
Uncategorised
Archived · Original link
Uncategorised
Archived · Original link

Have your say

Your comment matters. Councils must consider every representation that raises material planning considerations.

Write a comment