← Ashford Borough Council

Status

Pending House extension
Received
Not recorded
New homes
0

Full proposal

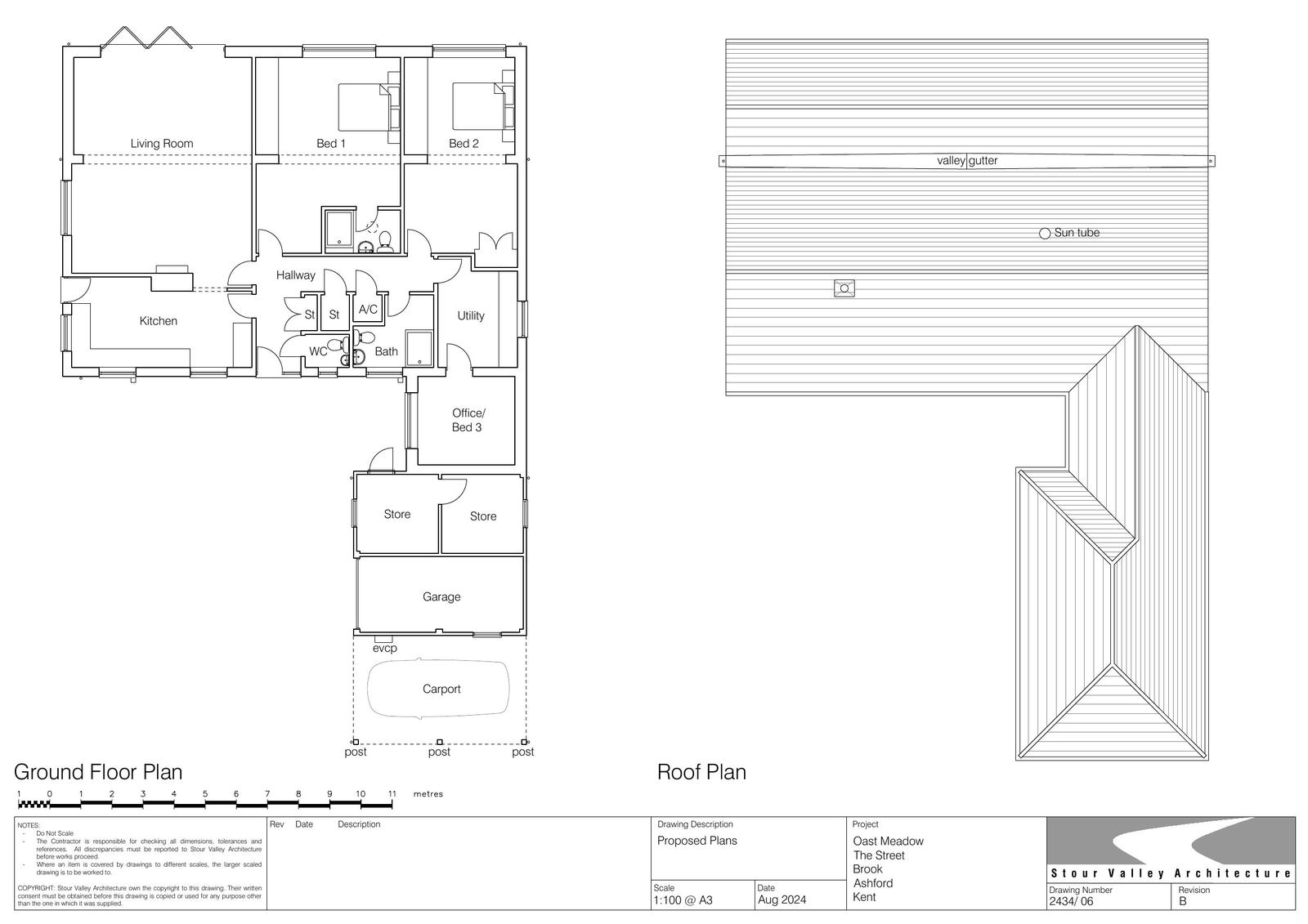
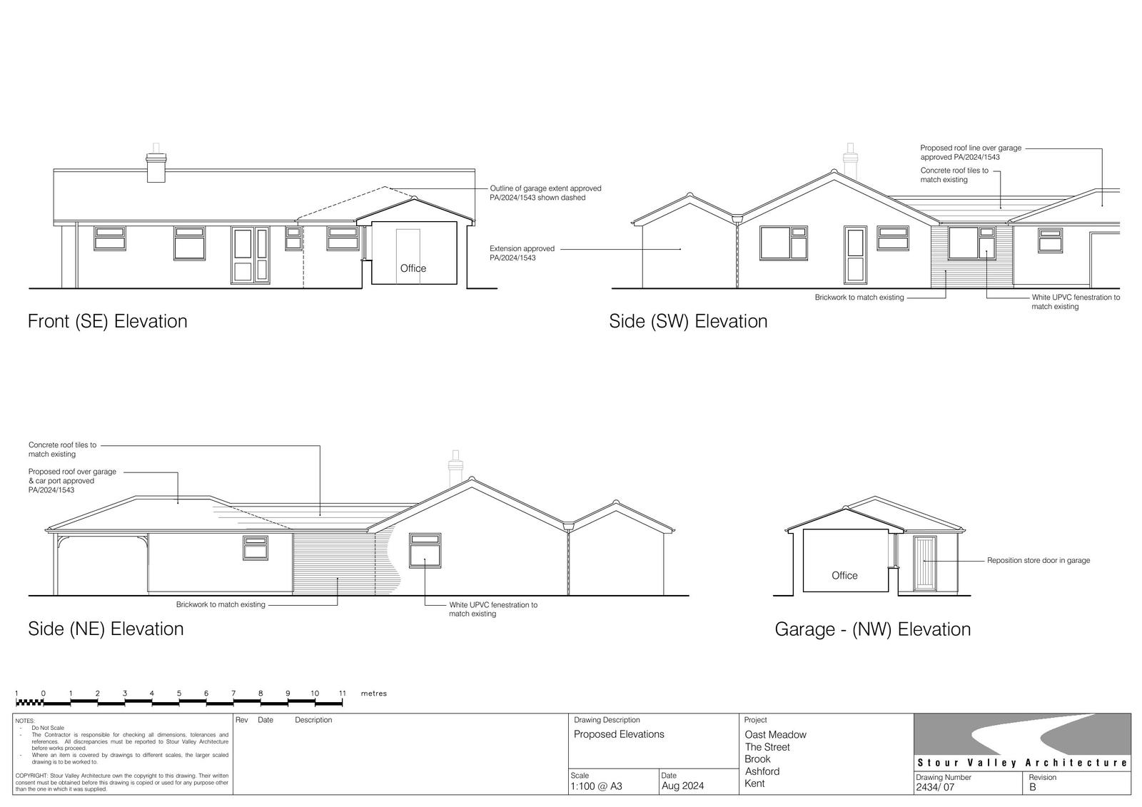
Application Reference PA/2025/0078 Site Address Oast Meadow, The Street, Brook, TN25 5PG Proposal Erection of a single storey link extension joining the bungalow & garage to form a utility room and bedroom Date Valid 14/1/2025 Application Status Decision Made Decision Approve with Conditions

Documents

Uncategorised
Archived · Original link
Uncategorised
Archived · Original link
Uncategorised
Archived · Original link
Uncategorised
Archived · Original link
Uncategorised
Archived · Original link
Uncategorised
Archived · Original link
Uncategorised
Archived · Original link
Uncategorised
Archived · Original link
Uncategorised
Archived · Original link
Uncategorised
Archived · Original link
Uncategorised
Archived · Original link

Have your say

Your comment matters. Councils must consider every representation that raises material planning considerations.

Write a comment