← Ashford Borough Council

Status

Pending House extension
Received
Not recorded
New homes
0

Full proposal

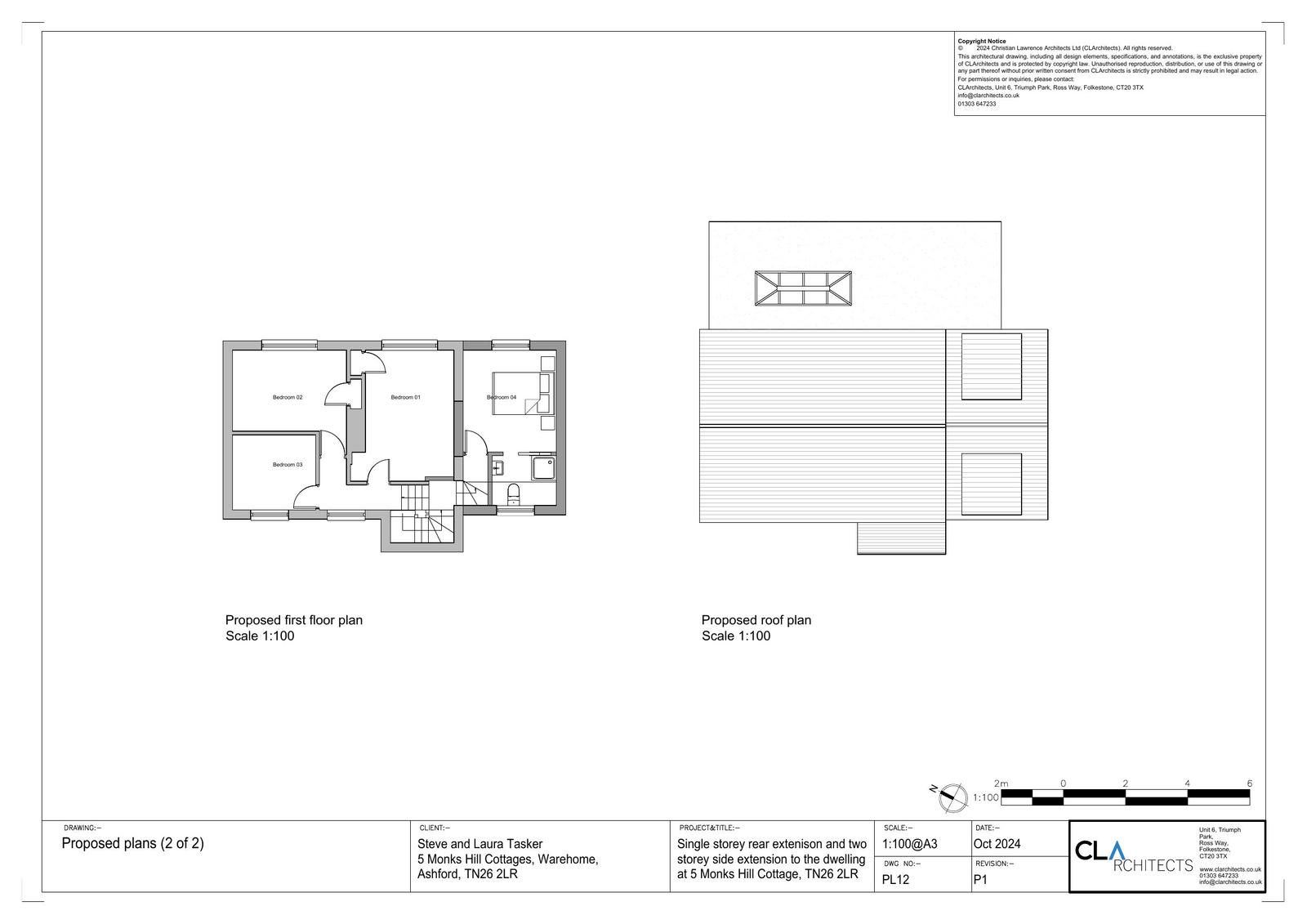
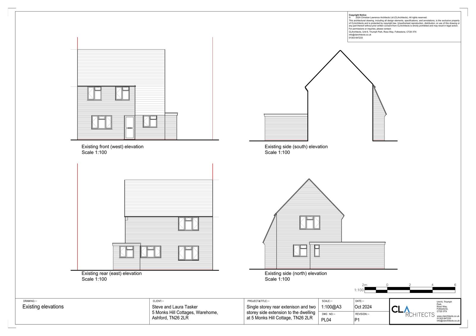
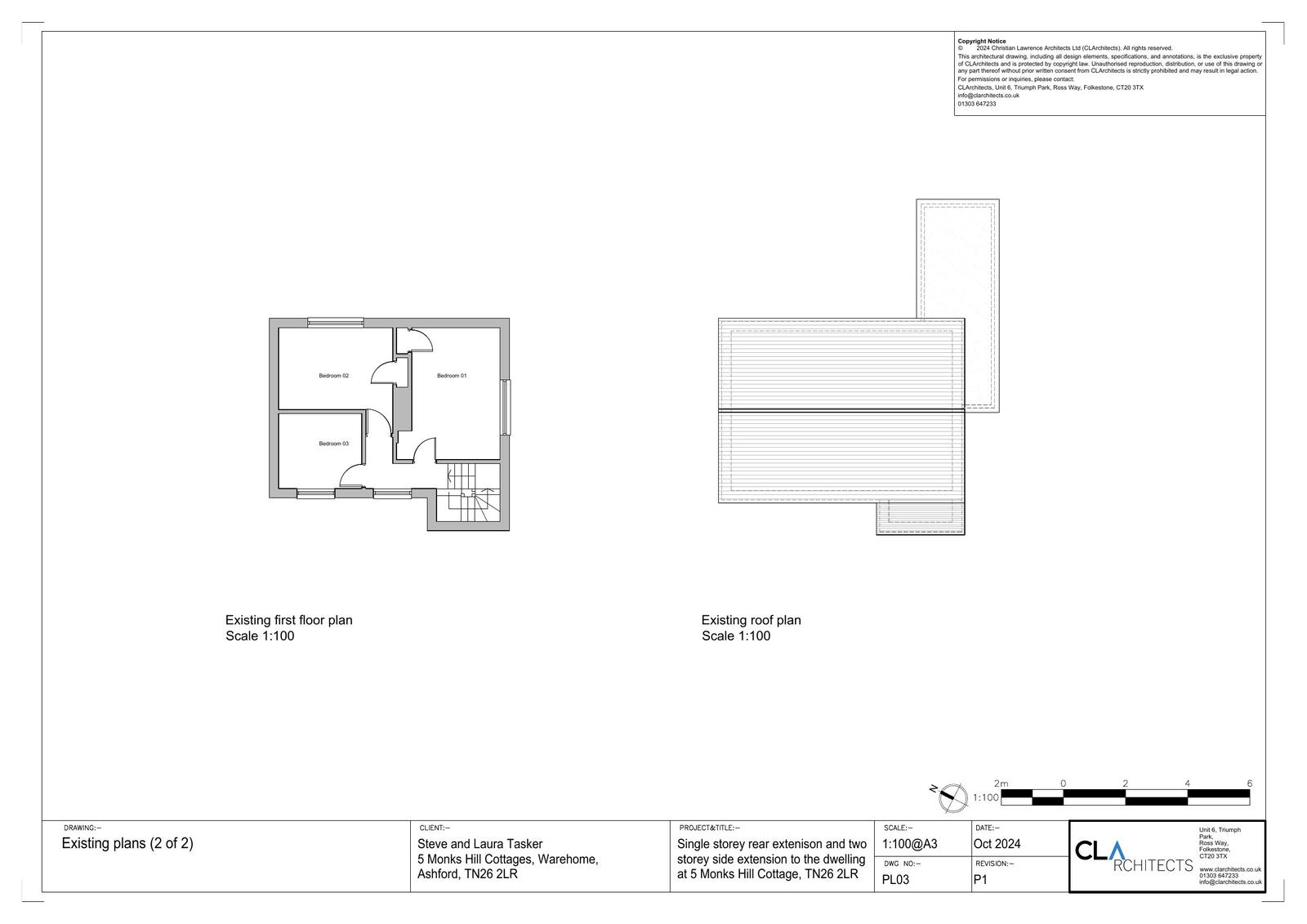
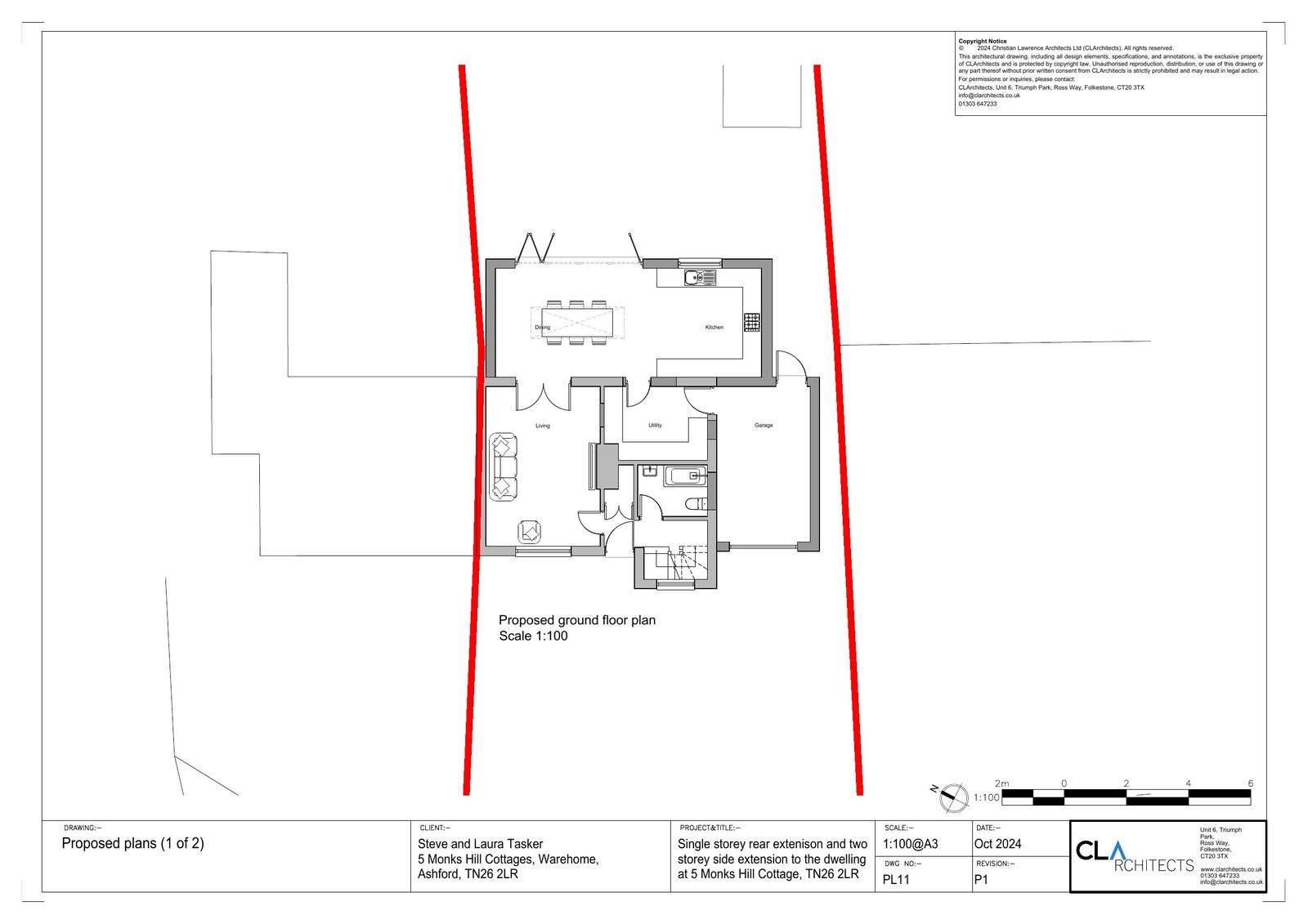
Application Reference PA/2025/0091 Site Address 5 Monks Hill Cottages, Church Road, Warehorne, TN26 2LR Proposal Single-storey rear extension and two-storey side extension following the demolition of the existing single-storey rear extension Date Valid 16/1/2025 Application Status Decision Made Decision Refuse

Documents

Uncategorised
Archived · Original link
Uncategorised
Archived · Original link
Uncategorised
Archived · Original link
Uncategorised
Archived · Original link
Uncategorised
Archived · Original link
Uncategorised
Archived · Original link
Uncategorised
Archived · Original link
Uncategorised
Archived · Original link
Uncategorised
Archived · Original link
Uncategorised
Archived · Original link
Uncategorised
Archived · Original link
Uncategorised
Archived · Original link
Uncategorised
Archived · Original link
Uncategorised
Archived · Original link
Uncategorised
Archived · Original link
Uncategorised
Archived · Original link
Uncategorised
Archived · Original link

Have your say

Your comment matters. Councils must consider every representation that raises material planning considerations.

Write a comment