← Ashford Borough Council

Status

Pending House extension
Received
Not recorded
New homes
0

Full proposal

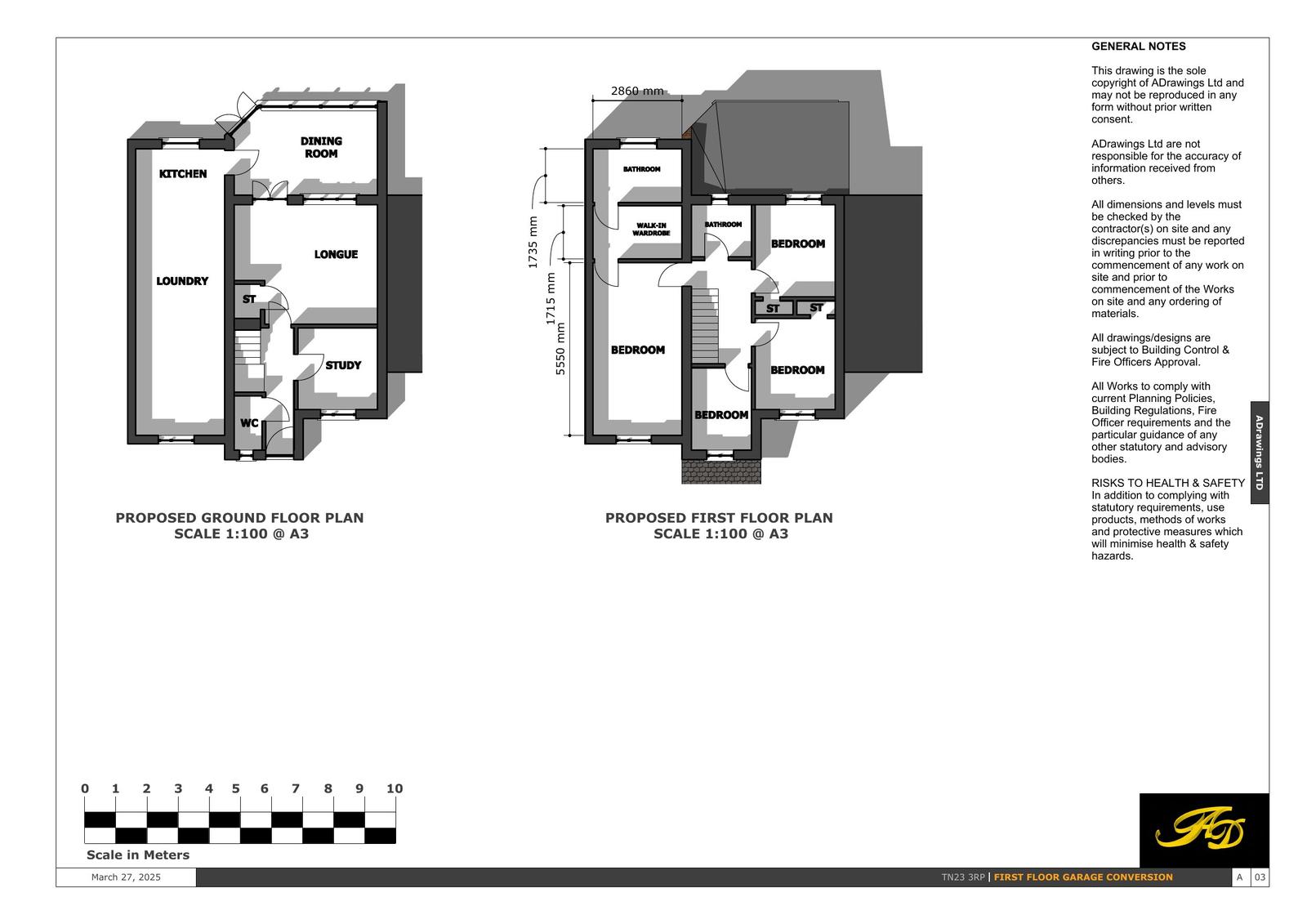
Application Reference PA/2025/0116 Site Address 13 Richborough Way, Kingsnorth, TN23 3RP Proposal Proposed first floor side extension and garage conversion Date Valid 28/3/2025 Application Status Decision Made Decision Approve with Conditions

Documents

Uncategorised
Archived · Original link
Uncategorised
Archived · Original link
Uncategorised
Archived · Original link
Uncategorised
Archived · Original link
Uncategorised
Archived · Original link
Uncategorised
Archived · Original link
Uncategorised
Archived · Original link
Uncategorised
Archived · Original link
Uncategorised
Archived · Original link
Uncategorised
Archived · Original link
Uncategorised
Archived · Original link
Uncategorised
Archived · Original link

Have your say

Your comment matters. Councils must consider every representation that raises material planning considerations.

Write a comment