← Ashford Borough Council

Status

Pending House extension
Received
Not recorded
New homes
0

Full proposal

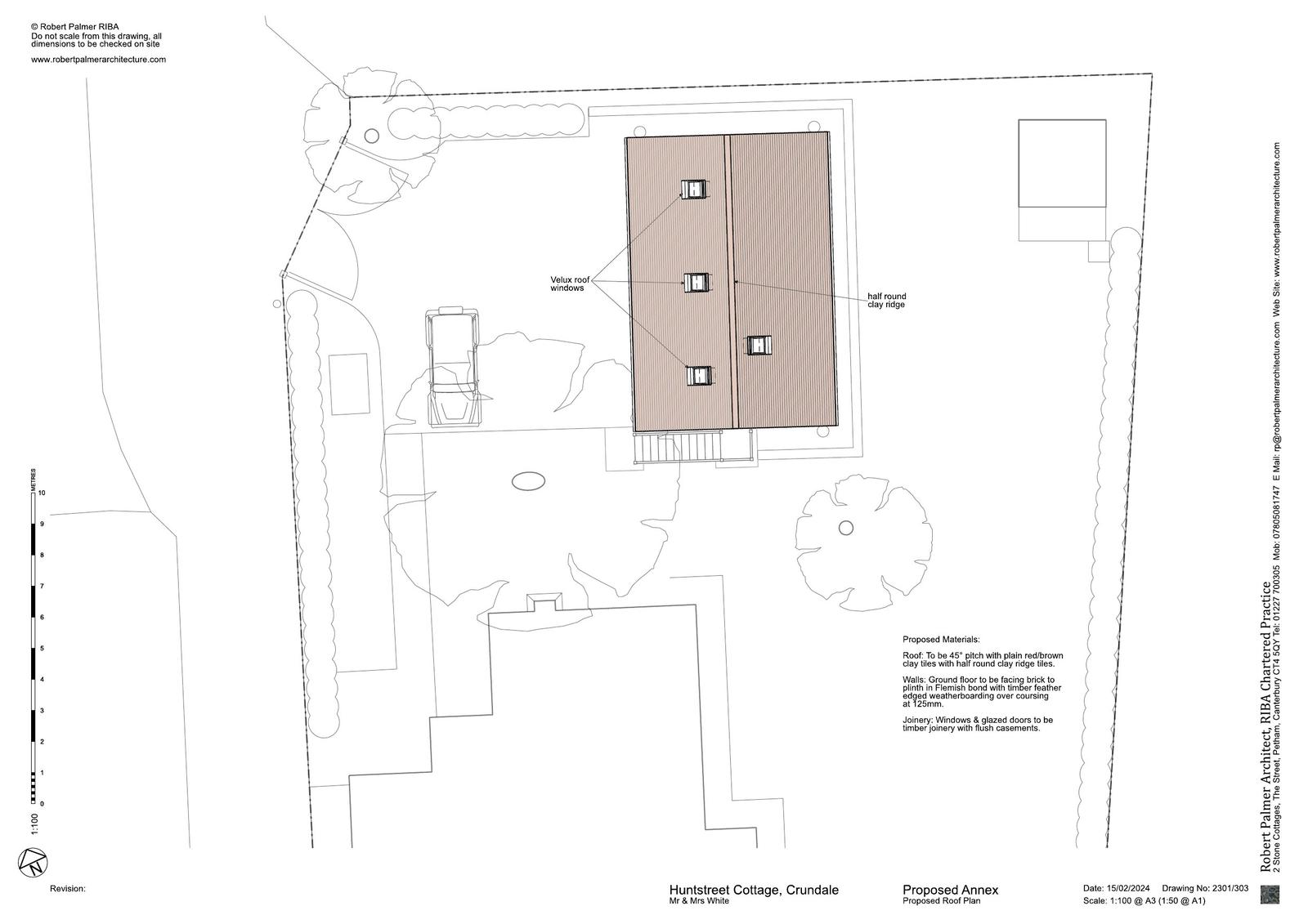
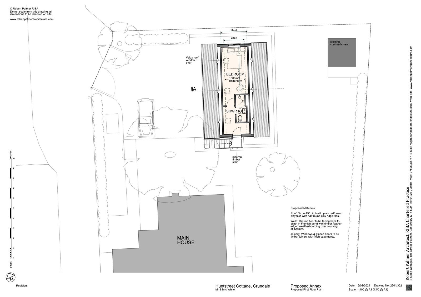
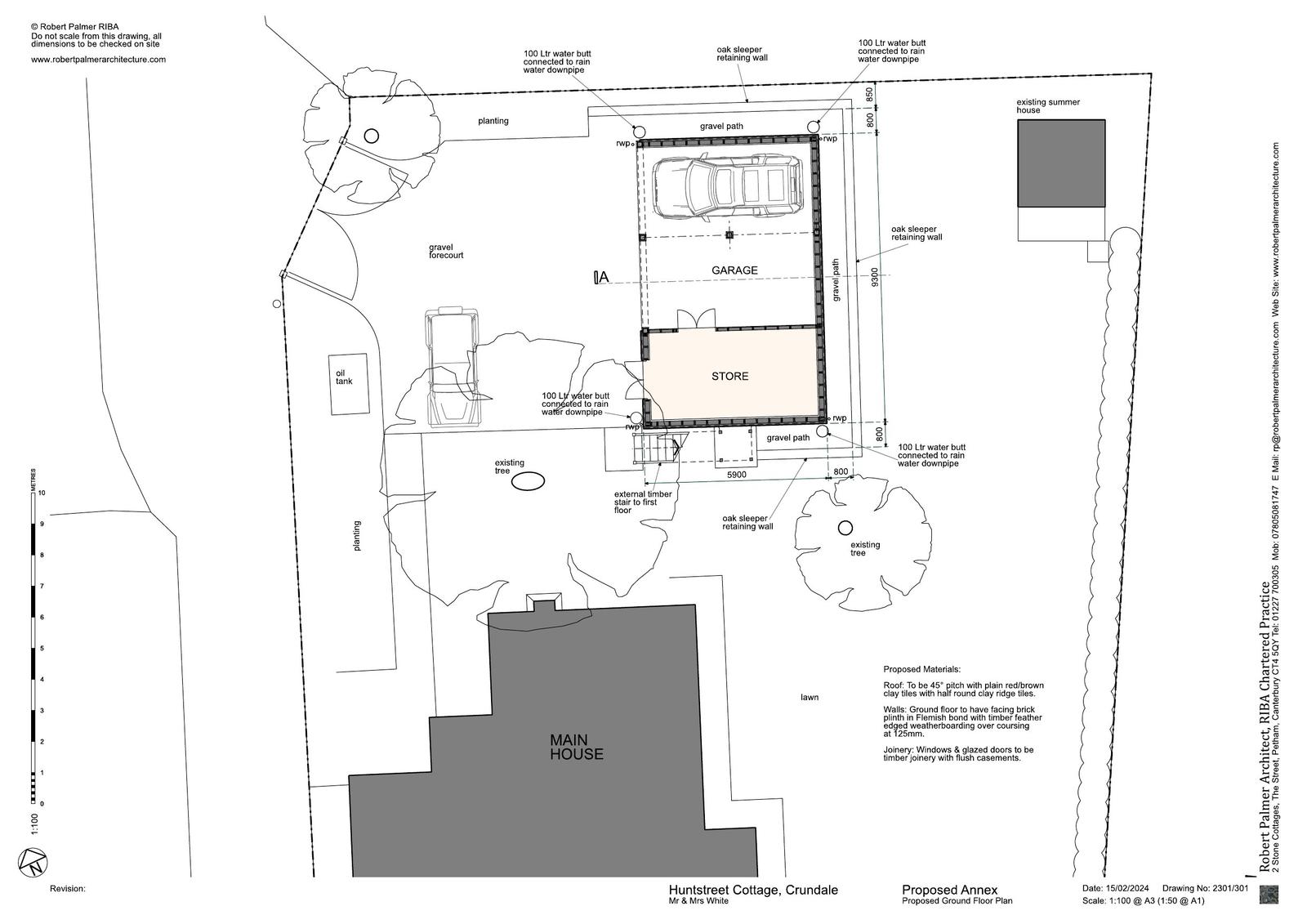
Application Reference PA/2025/0120 Site Address Hunt Street Farm Cottage, Hunt Street, Crundale, Canterbury, CT4 7EL Proposal Oak framed garage and store on ground floor with annexe to first floor following demolition of existing garage. Date Valid 29/1/2025 Application Status Decision Made Decision Approve with Conditions

Documents

Uncategorised
Archived · Original link
Uncategorised
Archived · Original link
Uncategorised
Archived · Original link
Uncategorised
Archived · Original link
Uncategorised
Archived · Original link
Uncategorised
Archived · Original link
Uncategorised
Archived · Original link
Uncategorised
Archived · Original link
Uncategorised
Archived · Original link
Uncategorised
Archived · Original link
Uncategorised
Archived · Original link
Uncategorised
Archived · Original link
Uncategorised
Archived · Original link

Have your say

Your comment matters. Councils must consider every representation that raises material planning considerations.

Write a comment