← Ashford Borough Council

Status

Pending Change of use
Received
Not recorded
New homes
1

Full proposal

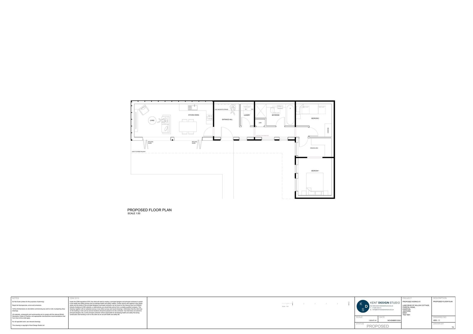
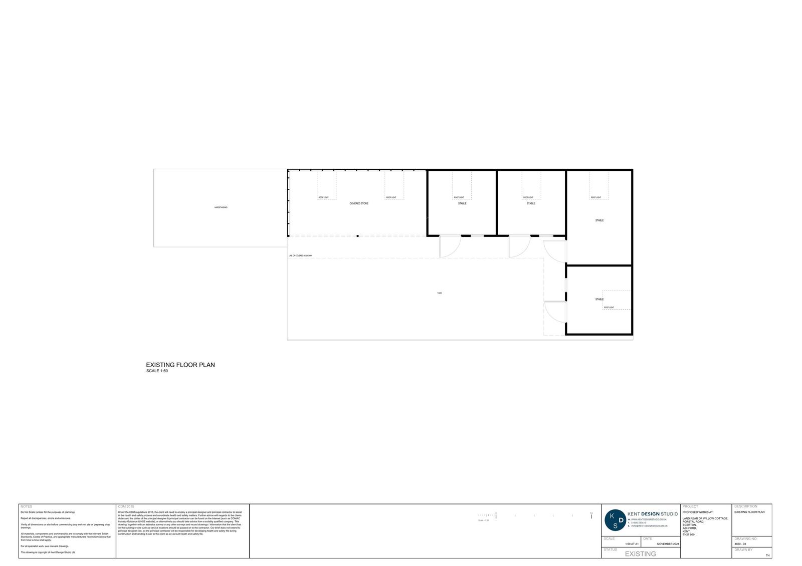
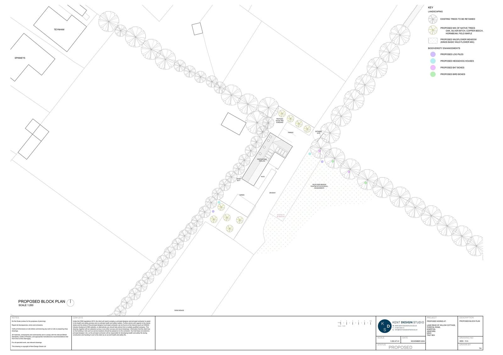
Application Reference PA/2025/0178 Site Address Chestnut Barn, Crocken Hill Road, Egerton, Ashford, TN27 9EG Proposal Conversion of existing stable building into new self-build dwelling with change of use of the land to form associated garden land, parking, landscaping and biodiversity enhancements Date Valid 12/2/2025 Application Status Decision Made Decision Refuse

Documents

Uncategorised
Archived · Original link
Uncategorised
Archived · Original link
Uncategorised
Archived · Original link
Uncategorised
Archived · Original link
Uncategorised
Archived · Original link
Uncategorised
Archived · Original link
Uncategorised
Archived · Original link
Uncategorised
Archived · Original link
Uncategorised
Archived · Original link
Uncategorised
Archived · Original link
Uncategorised
Archived · Original link
Uncategorised
Archived · Original link
Uncategorised
Archived · Original link
Uncategorised
Archived · Original link
Uncategorised
Archived · Original link
Uncategorised
Archived · Original link
Uncategorised
Archived · Original link
Uncategorised
Archived · Original link
Uncategorised
Archived · Original link

Have your say

Your comment matters. Councils must consider every representation that raises material planning considerations.

Write a comment