← Ashford Borough Council

Status

Pending House extension
Received
Not recorded
New homes
0

Full proposal

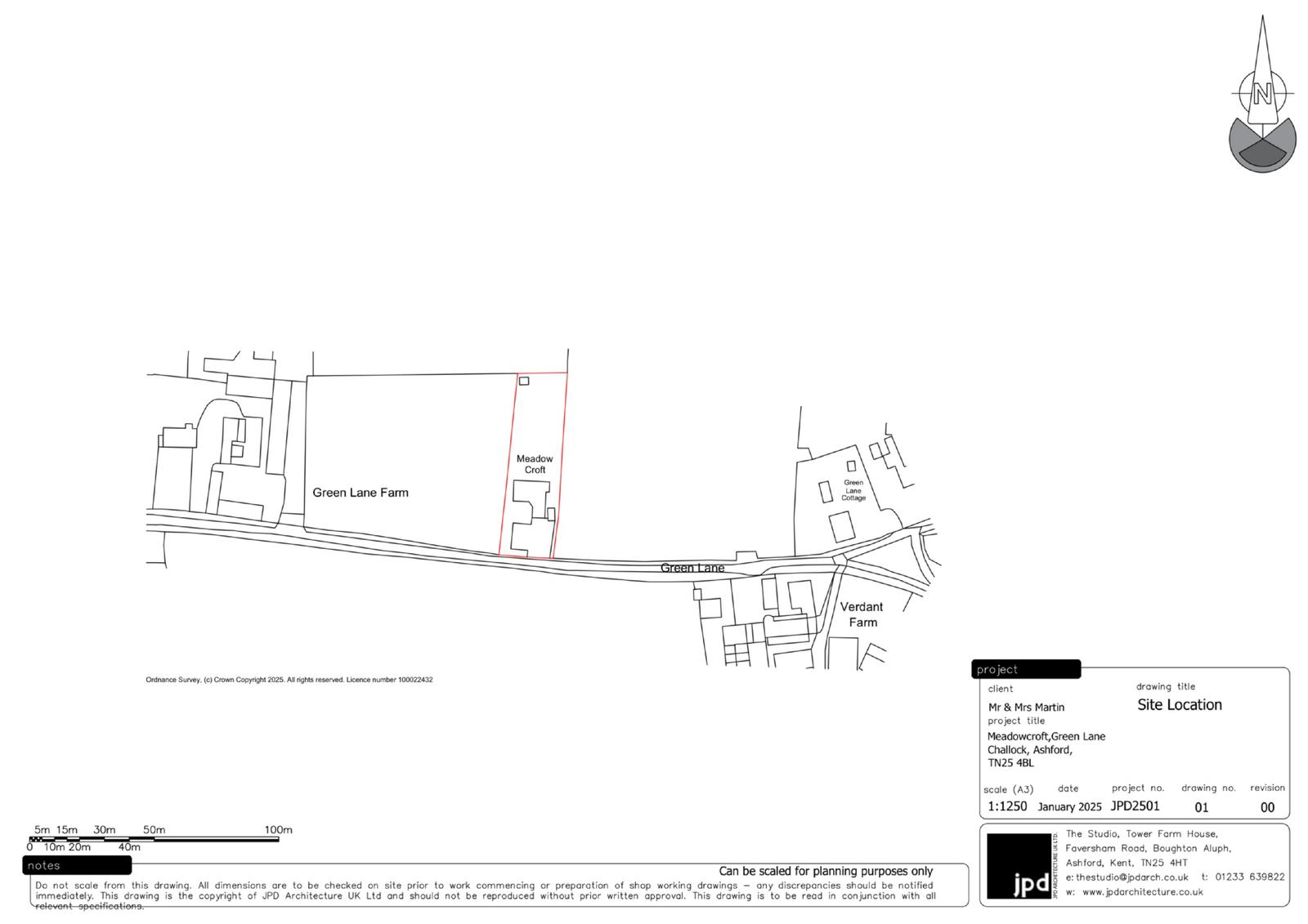
Application Reference PA/2025/0183 Site Address Meadowcroft, Green Lane, Challock, TN25 4BL Proposal Proposed porch and rear extension. Creation of first floor extension to include rooflights, with the additional construction of a detached garage and a detached workshop. Date Valid 03/2/2025 Application Status Decision Made Decision Approve with Conditions

Documents

Uncategorised
Archived · Original link
Uncategorised
Archived · Original link
Uncategorised
Archived · Original link
Uncategorised
Archived · Original link
Uncategorised
Archived · Original link
Uncategorised
Archived · Original link
Uncategorised
Archived · Original link
Uncategorised
Archived · Original link
Uncategorised
Archived · Original link
Uncategorised
Archived · Original link
Uncategorised
Archived · Original link
Uncategorised
Archived · Original link
Uncategorised
Archived · Original link

Have your say

Your comment matters. Councils must consider every representation that raises material planning considerations.

Write a comment