PA/2025/0688
Ashford Borough Council
Status
Pending
Change of use
Received
Not recorded
New homes
6
Full proposal
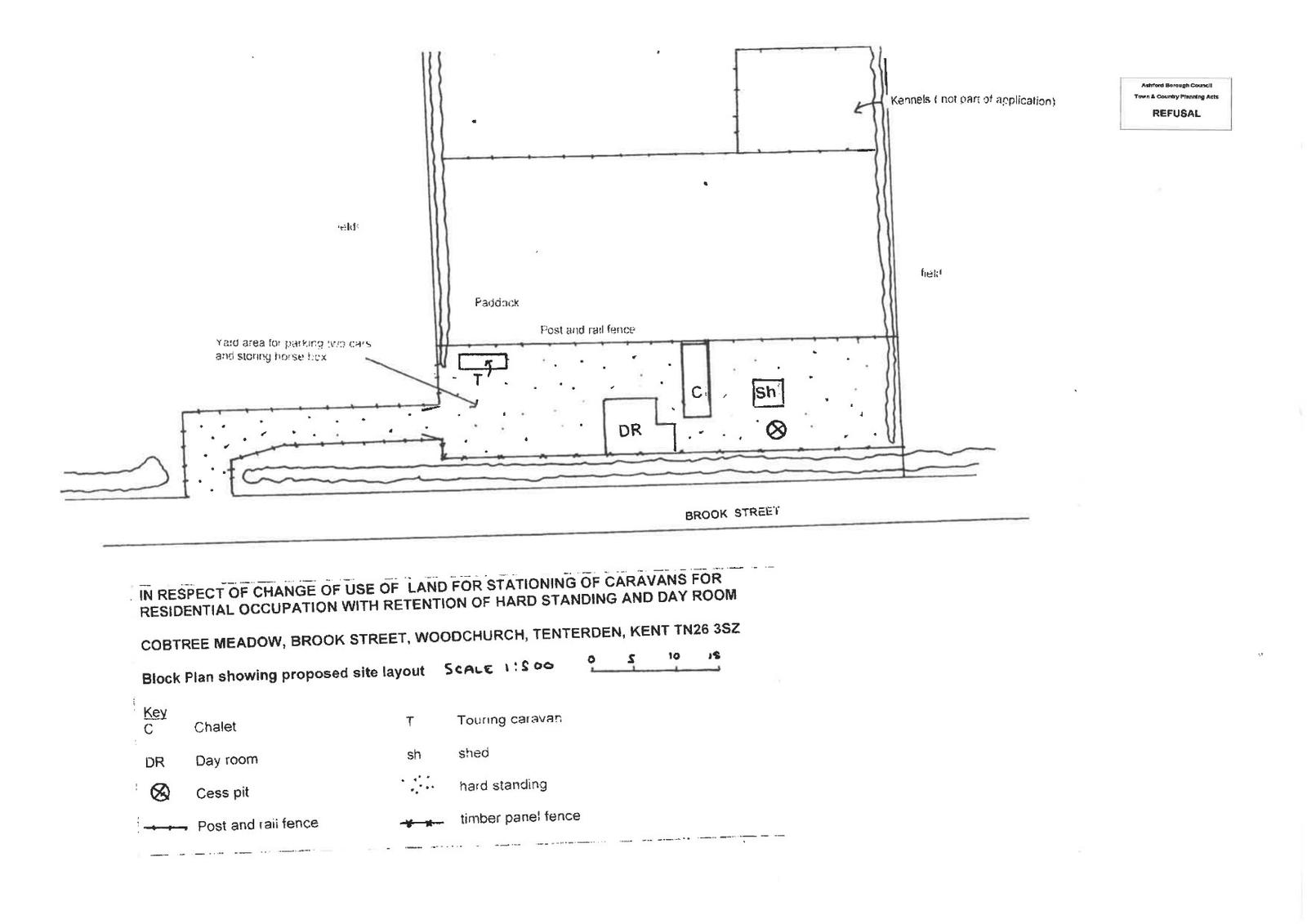
Application Reference PA/2025/0688 Site Address Cob Tree Meadows, Brook Street, Woodchurch, Ashford, TN26 3SZ Proposal Change of use of land to facilitate an extension to a Gypsy and Traveller site to allow the site to accommodate 3no additional static homes and 3no additional tourer caravans, extended hardstanding, 1 dayroom, cesspit, fencing, 0.6m – 2m wall at entrance and associated soft landscaping. (part retrospective). Date Valid 17/4/2025 Application Status Decision Made Decision Approve with Conditions
Documents
Have your say
Your comment matters. Councils must consider every representation that raises material planning considerations.