← Ashford Borough Council

Status

Pending New housing
Received
Not recorded
New homes
1

Full proposal

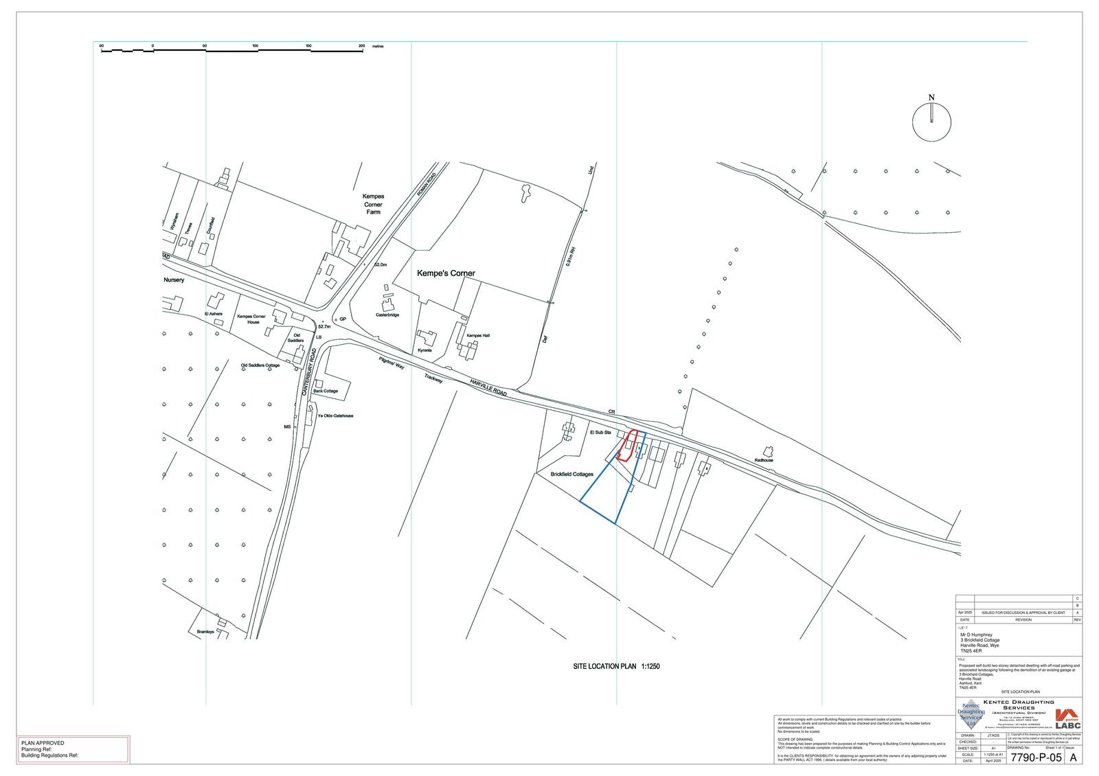
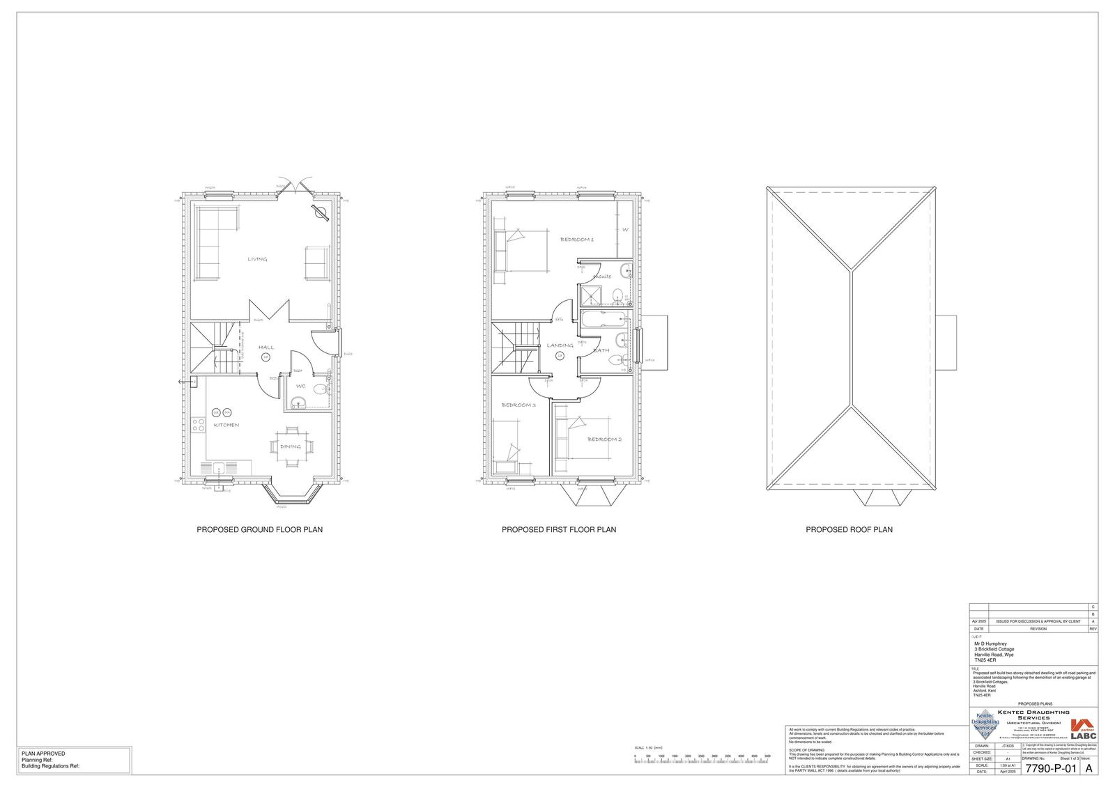
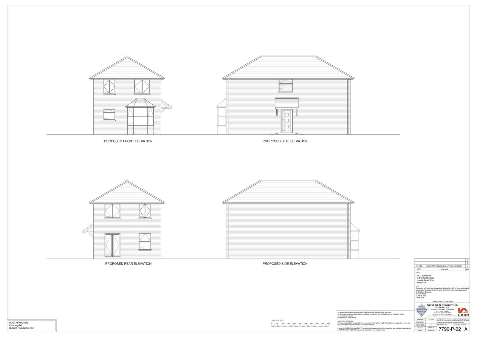
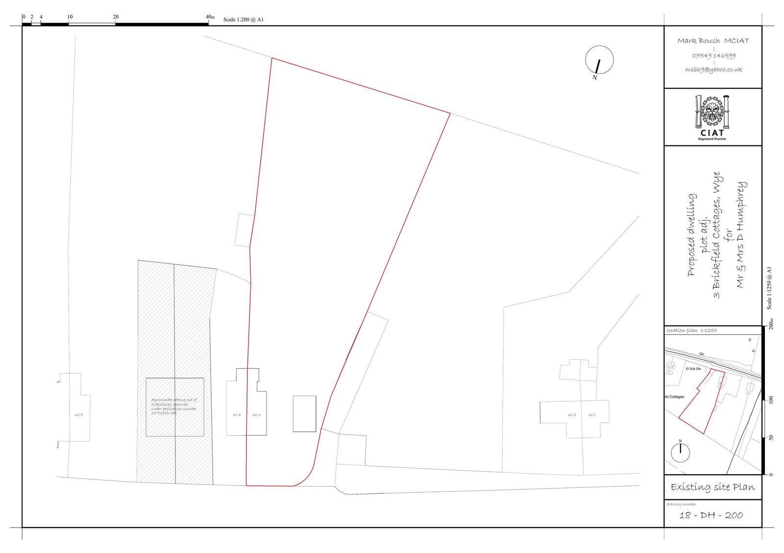
Application Reference PA/2025/0716 Site Address Land at 3 Brickfield Cottage, Harville Road, Wye Proposal Proposed self-build two-storey detached dwelling with off-road parking and associated landscaping following the demolition of an existing garage. Date Valid 01/5/2025 Application Status Under Consultation Decision

Documents

Uncategorised
Archived · Original link
Uncategorised
Archived · Original link
Uncategorised
Archived · Original link
Uncategorised
Archived · Original link
Uncategorised
Archived · Original link
Uncategorised
Archived · Original link
Uncategorised
Archived · Original link
Uncategorised
Archived · Original link
Uncategorised
Archived · Original link
Uncategorised
Archived · Original link
Uncategorised
Archived · Original link
Uncategorised
Archived · Original link
Uncategorised
Archived · Original link
Uncategorised
Archived · Original link
Uncategorised
Archived · Original link
Uncategorised
Archived · Original link
Uncategorised
Archived · Original link
Uncategorised
Archived · Original link
Uncategorised
Archived · Original link
Uncategorised
Archived · Original link

Have your say

Your comment matters. Councils must consider every representation that raises material planning considerations.

Write a comment