← Ashford Borough Council

Status

Pending Change of use
Received
Not recorded
New homes
1

Full proposal

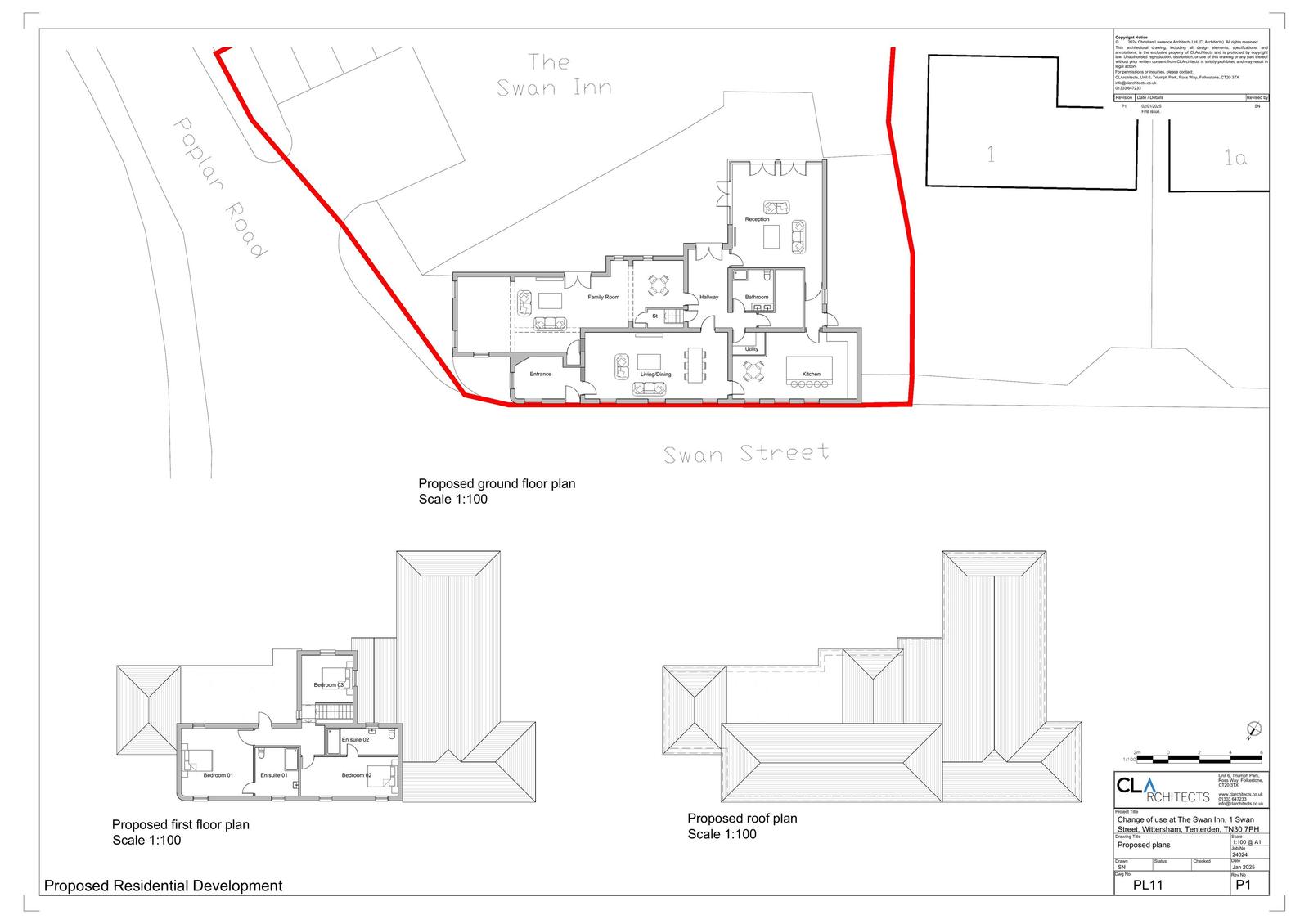
Application Reference PA/2025/0723 Site Address 1, The Oxney Gourmet Pie And Burger Bar, Swan Street, Wittersham, TN30 7PH Proposal Change of use of pub into a residential dwelling Date Valid 11/4/2025 Application Status Under Consultation Decision

Documents

Uncategorised
Archived · Original link
Uncategorised
Archived · Original link
Uncategorised
Archived · Original link
Uncategorised
Archived · Original link
Uncategorised
Archived · Original link
Uncategorised
Archived · Original link
Uncategorised
Archived · Original link
Uncategorised
Archived · Original link
Uncategorised
Archived · Original link
Uncategorised
Archived · Original link
Uncategorised
Archived · Original link
Uncategorised
Archived · Original link
Uncategorised
Archived · Original link
Uncategorised
Archived · Original link
Uncategorised
Archived · Original link
Uncategorised
Archived · Original link
Uncategorised
Archived · Original link
Uncategorised
Archived · Original link

Have your say

Your comment matters. Councils must consider every representation that raises material planning considerations.

Write a comment