← Ashford Borough Council

Status

Pending House extension
Received
Not recorded
New homes
0

Full proposal

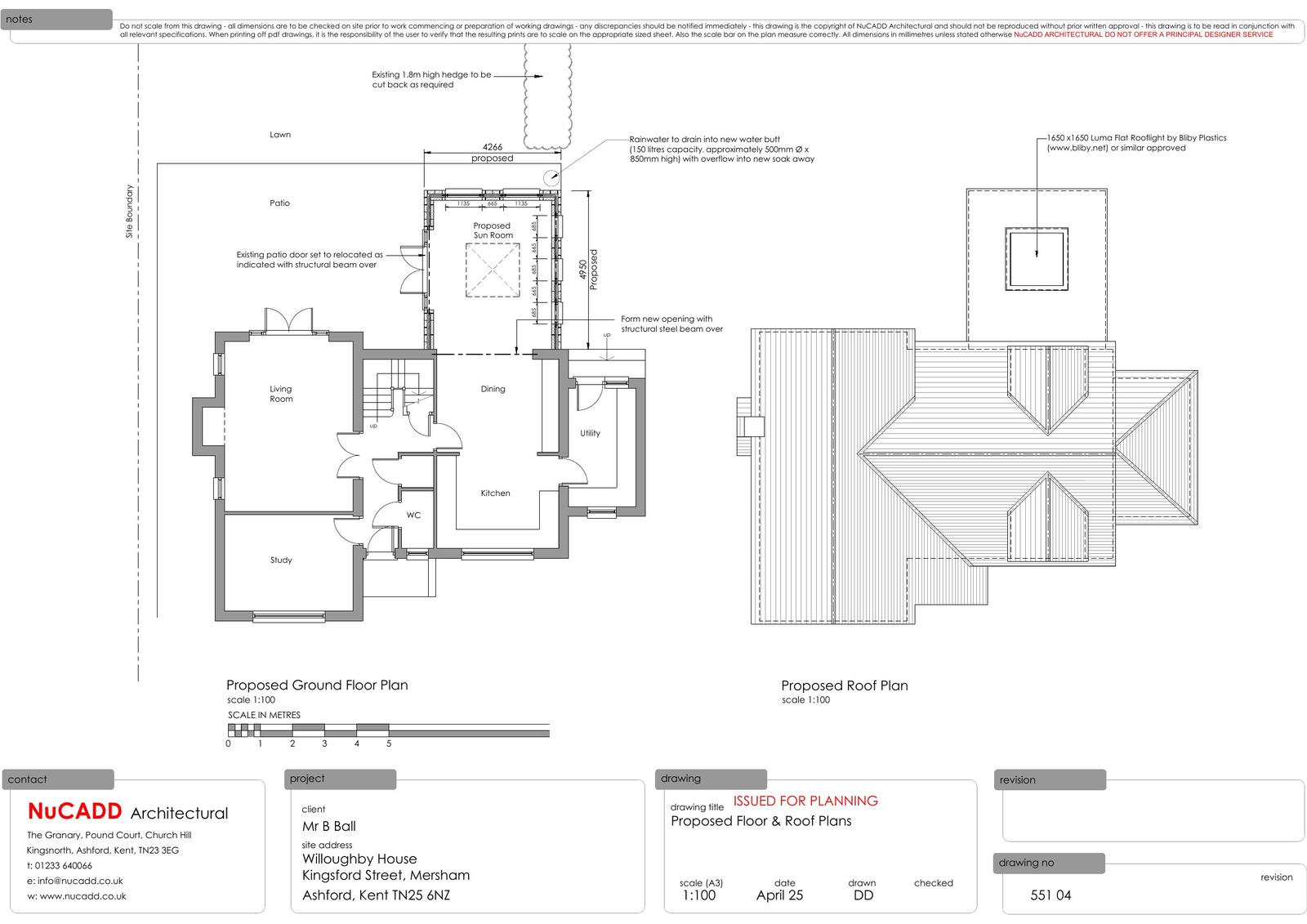
Application Reference PA/2025/0767 Site Address Willoughby House, Kingsford Street, Mersham, TN25 6NZ Proposal Proposed single storey extension with rooflight to rear elevation Date Valid 22/4/2025 Application Status Decision Made Decision Approve with Conditions

Documents

Uncategorised
Archived · Original link
Uncategorised
Archived · Original link
Uncategorised
Archived · Original link
Uncategorised
Archived · Original link
Uncategorised
Archived · Original link
Uncategorised
Archived · Original link
Uncategorised
Archived · Original link
Uncategorised
Archived · Original link
Uncategorised
Archived · Original link
Uncategorised
Archived · Original link

Have your say

Your comment matters. Councils must consider every representation that raises material planning considerations.

Write a comment